
2 bedroom semi-detached house for sale
Red Admiral Close, Wymondham

- PROPERTY TYPE
Semi-Detached
- BEDROOMS
2
- BATHROOMS
1
- SIZE
595 sq ft
55 sq m
- TENUREDescribes how you own a property. There are different types of tenure - freehold, leasehold, and commonhold.Read more about tenure in our glossary page.
Freehold
Key features
- No Chain
- Semi-Detached House In A Quiet Cul-De-Sac Position
- Fitted Kitchen With Integrated Appliances
- Spacious Living/Dining Room With French Doors Leading To Rear Garden
- Two Double Bedrooms
- Updated Three Piece Bathroom
- Driveway Parking, Detached Garage & Private Enclosed Rear Garden
- Suitable For Owner Occupiers Or Investors (Tenants In Situ)
Description
IN SUMMARY
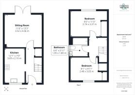
NO CHAIN. Sitting towards the top of this QUIET CLOSE with a DRIVEWAY and GARAGE to the side of the home, this SEMI-DETACHED HOUSE offers the ideal INVESTMENT OPPORTUNITY or the perfect first time purchase with a well proportioned living space partnered with a PRIVATE REAR GARDEN all within walking distance to all local amenities and schooling. The ground floor is occupied by a fitted kitchen benefitting from INTEGRATED COOKING APPLIANCES and a large SITTING ROOM backing onto the rear garden leaving room for both a sitting and dining room suite if desired. From the first floor landing each of the TWO DOUBLE BEDROOMS can be accessed as well as a MODERNISED THREE PIECE BATHROOM suite. The rear garden is FULLY ENCLOSED and retains PRIVACY due to its position while a DRIVEWAY sits to the side of the home giving OFF ROAD PARKING leading towards a DETACHED BRICK GARAGE.
SETTING THE SCENE
The property is positioned within a tucked-away section at the end of this quiet close and benefits from a low maintenance frontage comprising of slate and shingle planting beds with a paved pathway to the front entrance which is accompanied by a tiled and pitched awning above. A tandem driveway runs along side the property providing parking for multiple vehicles with access to the detached brick garage coming directly ahead through an up and over door and garage and to the right hand side through a timber swinging gate.
THE GRAND TOUR
Upon entering, the central hallway provides access to the ground floor accommodation, under stair storage and stairs to the first floor. The fitted kitchen offers a range of wall and base mounted storage units with tiled splashbacks, integrated oven and hob with extractor above, wall mounted gas boiler and additional space for further appliances including a washing machine and fridge freezer. To the rear of the property, the spacious sitting room benefits from French doors opening directly onto the garden, allowing plenty of natural light and offering flexibility for both sitting and dining arrangements.
The first floor landing leads to two double bedrooms, both offering good floor space and built-in storage. The larger rear bedroom benefits from double fitted wardrobes, while the front bedroom also features built-in wardrobe storage. The modern three piece bathroom suite is positioned centrally and comprises a bath with shower over, vanity storage unit and heated towel rail.
FIND US
Postcode : NR18 0XW
What3Words : ///format.lengthen.shells
VIRTUAL TOUR
View our virtual tour for a full 360 degree of the interior of the property.
EPC Rating: D
Garden
THE GREAT OUTDOORS
The fully enclosed rear garden offers a private outdoor space with a combination of patio, lawn and raised decking areas, creating flexible seating and entertaining zones throughout the year. The decking area is positioned to make the most of the afternoon and evening sunshine, while the lawn provides additional space for planting or family use. Access to both the driveway and detached garage is available via a side gate and rear uPVC door.
Disclaimer
Anti-Money Laundering (AML) Fee Statement:
To comply with HMRC's regulations on Anti-Money Laundering (AML), we are legally required to conduct AML checks on every purchaser once a sale is agreed. We use a government-approved electronic identity verification service to ensure compliance, accuracy, and security. This is approved by the Government as part of the Digital Identity and Attributes Trust Framework (DIATF). The cost of anti-money laundering (AML) checks are £50 including VAT per person, payable in advance after an offer has been accepted. This fee is mandatory to comply with HMRC regulations and must be paid before a memorandum of sale can be issued. Please note that the fee is non-refundable.
General Disclaimer:
Whilst every care has been taken to prepare these sales particulars, they are for guidance purposes only. All measurements are approximate are for general guidance purposes only.
Brochures
Property Brochure- COUNCIL TAXA payment made to your local authority in order to pay for local services like schools, libraries, and refuse collection. The amount you pay depends on the value of the property.Read more about council Tax in our glossary page.
- Band: B
- PARKINGDetails of how and where vehicles can be parked, and any associated costs.Read more about parking in our glossary page.
- Yes
- GARDENA property has access to an outdoor space, which could be private or shared.
- Private garden
- ACCESSIBILITYHow a property has been adapted to meet the needs of vulnerable or disabled individuals.Read more about accessibility in our glossary page.
- Ask agent
Red Admiral Close, Wymondham
Add an important place to see how long it'd take to get there from our property listings.
__mins driving to your place
Get an instant, personalised result:
- Show sellers you’re serious
- Secure viewings faster with agents
- No impact on your credit score
Your mortgage
Notes
Staying secure when looking for property
Ensure you're up to date with our latest advice on how to avoid fraud or scams when looking for property online.
Visit our security centre to find out moreDisclaimer - Property reference 784404d9-f15d-44b2-b40a-b989f757b72e. The information displayed about this property comprises a property advertisement. Rightmove.co.uk makes no warranty as to the accuracy or completeness of the advertisement or any linked or associated information, and Rightmove has no control over the content. This property advertisement does not constitute property particulars. The information is provided and maintained by Starkings & Watson, Wymondham. Please contact the selling agent or developer directly to obtain any information which may be available under the terms of The Energy Performance of Buildings (Certificates and Inspections) (England and Wales) Regulations 2007 or the Home Report if in relation to a residential property in Scotland.
*This is the average speed from the provider with the fastest broadband package available at this postcode. The average speed displayed is based on the download speeds of at least 50% of customers at peak time (8pm to 10pm). Fibre/cable services at the postcode are subject to availability and may differ between properties within a postcode. Speeds can be affected by a range of technical and environmental factors. The speed at the property may be lower than that listed above. You can check the estimated speed and confirm availability to a property prior to purchasing on the broadband provider's website. Providers may increase charges. The information is provided and maintained by Decision Technologies Limited. **This is indicative only and based on a 2-person household with multiple devices and simultaneous usage. Broadband performance is affected by multiple factors including number of occupants and devices, simultaneous usage, router range etc. For more information speak to your broadband provider.
Map data ©OpenStreetMap contributors.





