
Vickers Lane, Seaton Carew, Hartlepool

- PROPERTY TYPE
Semi-Detached
- BEDROOMS
3
- BATHROOMS
2
- SIZE
Ask agent
- TENUREDescribes how you own a property. There are different types of tenure - freehold, leasehold, and commonhold.Read more about tenure in our glossary page.
Freehold
Key features
- Modern Semi-Detached Property
- Popular Part Of Seaton Carew
- Accommodation Over Three Floors
- THREE DOUBLE BEDROOMS
- Full Width Kitchen/Diner
- Modern Bathroom, En-Suite & Guest WC
- Gas Central Heating & uPVC Double Glazing
- Double Drive & South Facing Rear Garden
- Close To The Seafront
- Ideal Purchase For Family Requirements
Description
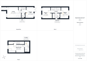
Ground Floor -
Entrance Porch - Accessed via double glazed entrance door, fitted with modern laminate flooring, single radiator, door through to:
Front Lounge - 3.58m x 4.47m (11'9 x 14'8) - A good size lounge with matching laminate flooring, uPVC double glazed window to the front aspect, useful under stairs storage cupboard, wall mounted television point, double radiator.
Inner Hall - Matching laminate flooring, spindled staircase to the first floor with fitted carpet, access to kitchen and guest cloakroom/WC.
Guest Cloakroom/Wc - 1.30m x 1.14m (4'3 x 3'9) - Fitted with a two piece white suite comprising: wall mounted wash hand basin with chrome dual taps and tiled splashback, low level WC, matching laminate flooring, extractor fan, single radiator.
Kitchen/Diner - 3.61m x 2.39m (11'10 x 7'10) - Fitted with a modern range of units to base and wall level with brushed stainless steel handles and contrasting work surfaces incorporating an inset one and a half bowl single drainer stainless steel sink unit with mixer tap, built-in electric oven with four ring gas hob above, both finished in brushed stainless steel with extractor hood over, attractive tiling to splashback, integrated fridge/freezer, recess for washing machine, modern laminate flooring, uPVC double glazed window to the rear aspect, concealed gas central heating boiler, uPVC double glazed French doors to the rear garden, double radiator.
First Floor -
Landing - Fitted carpet, single radiator, staircase giving access to the second floor.
Bedroom Two - 3.61m x 2.67m (11'10 x 8'9) - Two uPVC double glazed windows to the front aspect, fitted carpet, single radiator.
Bedroom Three - 3.61m x 2.39m (11'10 x 7'10) - uPVC double glazed window overlooking the rear garden, fitted carpet, single radiator.
Family Bathroom/Wc - 1.68m x 2.41m (5'6 x 7'11) - Fitted with a three piece white suite and chrome fittings comprising: panelled bath with dual taps, pedestal wash hand basin with dual taps, low level WC, tiled splashback, 'tile' effect vinyl flooring, extractor fan, uPVC double glazed frosted window to the side aspect, single radiator.
Second Floor -
Landing - Built-in storage cupboard, access to the master bedroom.
Bedroom One - 2.59m x 5.11m (8'6 x 16'9) - A good size master bedroom with uPVC double glazed 'dormer' style window to the front aspect, bespoke wardrobes, fitted carpet, single radiator, access to:
En-Suite Shower Room/Wc - 3.40m x 1.52m (11'2 x 5') - Fitted with a three piece suite and chrome fittings comprising: corner shower cubicle with chrome frame, glass panelled door and chrome shower, pedestal wash hand basin with chrome dual taps, low level WC, tiling to splashback, being full height to shower level, extractor fan, double glazed 'Velux' style window, double radiator.
Externally - The property features a low maintenance front, with a double drive allowing useful off street parking. A gate to the side leads through to the south facing rear garden which should, again, prove to be low maintenance with patio, artificial turf, fenced boundaries and bar included.
Nb - Floorplans and title plans are for illustrative purposes only. All measurements, walls, doors, window fittings and appliances, their sizes and locations, are approximate only. They cannot be regarded as being a representation by the seller, nor their agent.
Brochures
Vickers Lane, Seaton Carew, HartlepoolBrochure- COUNCIL TAXA payment made to your local authority in order to pay for local services like schools, libraries, and refuse collection. The amount you pay depends on the value of the property.Read more about council Tax in our glossary page.
- Band: C
- PARKINGDetails of how and where vehicles can be parked, and any associated costs.Read more about parking in our glossary page.
- Driveway
- GARDENA property has access to an outdoor space, which could be private or shared.
- Yes
- ACCESSIBILITYHow a property has been adapted to meet the needs of vulnerable or disabled individuals.Read more about accessibility in our glossary page.
- Ask agent
Vickers Lane, Seaton Carew, Hartlepool
Add an important place to see how long it'd take to get there from our property listings.
__mins driving to your place
Get an instant, personalised result:
- Show sellers you’re serious
- Secure viewings faster with agents
- No impact on your credit score


Your mortgage
Notes
Staying secure when looking for property
Ensure you're up to date with our latest advice on how to avoid fraud or scams when looking for property online.
Visit our security centre to find out moreDisclaimer - Property reference 34441774. The information displayed about this property comprises a property advertisement. Rightmove.co.uk makes no warranty as to the accuracy or completeness of the advertisement or any linked or associated information, and Rightmove has no control over the content. This property advertisement does not constitute property particulars. The information is provided and maintained by Smith & Friends Estate Agents, Hartlepool. Please contact the selling agent or developer directly to obtain any information which may be available under the terms of The Energy Performance of Buildings (Certificates and Inspections) (England and Wales) Regulations 2007 or the Home Report if in relation to a residential property in Scotland.
*This is the average speed from the provider with the fastest broadband package available at this postcode. The average speed displayed is based on the download speeds of at least 50% of customers at peak time (8pm to 10pm). Fibre/cable services at the postcode are subject to availability and may differ between properties within a postcode. Speeds can be affected by a range of technical and environmental factors. The speed at the property may be lower than that listed above. You can check the estimated speed and confirm availability to a property prior to purchasing on the broadband provider's website. Providers may increase charges. The information is provided and maintained by Decision Technologies Limited. **This is indicative only and based on a 2-person household with multiple devices and simultaneous usage. Broadband performance is affected by multiple factors including number of occupants and devices, simultaneous usage, router range etc. For more information speak to your broadband provider.
Map data ©OpenStreetMap contributors.






