
4 bedroom semi-detached house for sale
Highfell Rise, Keighley, BD22

- PROPERTY TYPE
Semi-Detached
- BEDROOMS
4
- BATHROOMS
2
- SIZE
Ask agent
- TENUREDescribes how you own a property. There are different types of tenure - freehold, leasehold, and commonhold.Read more about tenure in our glossary page.
Freehold
Key features
- Awaiting EPC
- Superbly Presented Semi-Detached Family Home
- Four Bedrooms & Master En-Suite
- Conservatory
- Modern Fitted Kitchen & Bathroom
- Drive & Under House Garage
- Solar Panels Installed
- Pleasant Rear Garden & Decking With Open Outlook
Description
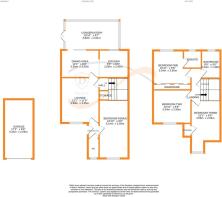
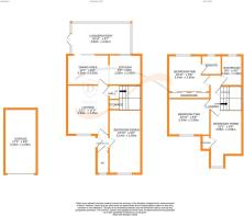
Viewing is essential to fully appreciate this superbly presented four bedroom semi-detached family home situated in this popular residential location with open outlook to the rear. The well proportioned accommodation comprises of an entrance hall giving access to a cloaks WC. The fourth bedroom is on this level measuring approximately 16ft10 in length and having double glazed window to the front and radiator. The lounge has an electric fire, radiator, double glazed window to the front. The dining kitchen has a range of modern base and wall mounted units, integrated double oven, hob, extractor fan, breakfast island, double glazed sliding doors into the conservatory which in turn has double glazed door leading to the rear garden. To the first floor there are three further double bedrooms, the master having an en-suite shower room with shower cubicle, WC, wash hand basin. The house bathroom has a modern three piece suite comprising of a bath with shower over, WC, wash hand basin, chrome heated towel rail, double glazed window to the rear. externally an electric power point, a driveway leads to an under house garage with an electric door, there is a pleasant rear garden with raised decking area, open outlook to the rear. Solar panels installed, Awaiting EPC.
Brochures
Brochure 1Brochure 2- COUNCIL TAXA payment made to your local authority in order to pay for local services like schools, libraries, and refuse collection. The amount you pay depends on the value of the property.Read more about council Tax in our glossary page.
- Band: C
- PARKINGDetails of how and where vehicles can be parked, and any associated costs.Read more about parking in our glossary page.
- Yes
- GARDENA property has access to an outdoor space, which could be private or shared.
- Yes
- ACCESSIBILITYHow a property has been adapted to meet the needs of vulnerable or disabled individuals.Read more about accessibility in our glossary page.
- Ask agent
Energy performance certificate - ask agent
Highfell Rise, Keighley, BD22
Add an important place to see how long it'd take to get there from our property listings.
__mins driving to your place
Get an instant, personalised result:
- Show sellers you’re serious
- Secure viewings faster with agents
- No impact on your credit score
Your mortgage
Notes
Staying secure when looking for property
Ensure you're up to date with our latest advice on how to avoid fraud or scams when looking for property online.
Visit our security centre to find out moreDisclaimer - Property reference 29934701. The information displayed about this property comprises a property advertisement. Rightmove.co.uk makes no warranty as to the accuracy or completeness of the advertisement or any linked or associated information, and Rightmove has no control over the content. This property advertisement does not constitute property particulars. The information is provided and maintained by Day & Co Estate Agents Limited, Keighley. Please contact the selling agent or developer directly to obtain any information which may be available under the terms of The Energy Performance of Buildings (Certificates and Inspections) (England and Wales) Regulations 2007 or the Home Report if in relation to a residential property in Scotland.
*This is the average speed from the provider with the fastest broadband package available at this postcode. The average speed displayed is based on the download speeds of at least 50% of customers at peak time (8pm to 10pm). Fibre/cable services at the postcode are subject to availability and may differ between properties within a postcode. Speeds can be affected by a range of technical and environmental factors. The speed at the property may be lower than that listed above. You can check the estimated speed and confirm availability to a property prior to purchasing on the broadband provider's website. Providers may increase charges. The information is provided and maintained by Decision Technologies Limited. **This is indicative only and based on a 2-person household with multiple devices and simultaneous usage. Broadband performance is affected by multiple factors including number of occupants and devices, simultaneous usage, router range etc. For more information speak to your broadband provider.
Map data ©OpenStreetMap contributors.





