Commercial property for sale
The Old Court House, Leek, Staffordshire
- PROPERTY TYPE
Commercial Property
- SIZE
Ask agent
Key features
- Freehold mixed-use building in a prominent High Street position
- Full planning permission granted for 9 residential apartments (upper floors)
- Two commercial units on the ground floor
- Opportunity to retain income while implementing development
- Well suited to investors, owner occupiers or developer investors
- Central town location close to shops, amenities and public transport
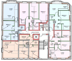
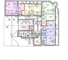
Description
The Approval:
Change of use and conversion of the unoccupied first and second floor accommodation to provide nine residential apartments, together with two occupied commercial units at ground floor level.
The approved scheme will re-purpose the upper floor space for residential use, incorporating a ground-floor entrance hall, stair enclosure, required circulation corridors, and shared access to a flat rooftop courtyard amenity space.
All works are entirely containedwithin the existing footprint and fabric of the external walls and roof of The Old Court House.
The Current Site:
The Old Court House is an attractive former civic building occupying a prominent position on the High Street. The property benefits from a strong street presence, period architectural features, and an established commercial frontage at ground floor level.
The ground floor is currently occupied by two commercial units, trading as The Post Office and The Napoli Restaurant, both of which are included within the sale.
The first and second floors were previously used as office accommodation and are now vacant.
The scheme does not provide any private car parking spaces on site.
Location, Transport & Amenities:
Train Station:
Stoke-on-Trent mainline services accessible within driving distance (Leek station proposed reinstatement)
Bus & Road:
Good local bus services and strong road connectivity via the A53
Shopping:
Immediate access to High Street retail, supermarkets, and local services
Eating & Drinking:
Wide selection of cafés, pubs, and restaurants within walking distance
Documents Available Upon Request:
Brochure
Approval with conditions
GDV & Comparables
Contact The Land Team
The Old Court House, Leek, Staffordshire
NEAREST STATIONS
Distances are straight line measurements from the centre of the postcode- Congleton Station7.8 miles
Notes
Disclaimer - Property reference bc1ae2eb-b5d0-4976-a1ab-c3e0808142ab. The information displayed about this property comprises a property advertisement. Rightmove.co.uk makes no warranty as to the accuracy or completeness of the advertisement or any linked or associated information, and Rightmove has no control over the content. This property advertisement does not constitute property particulars. The information is provided and maintained by Allen Heritage, Shirley. Please contact the selling agent or developer directly to obtain any information which may be available under the terms of The Energy Performance of Buildings (Certificates and Inspections) (England and Wales) Regulations 2007 or the Home Report if in relation to a residential property in Scotland.
Map data ©OpenStreetMap contributors.









