4 bedroom semi-detached house for sale
West View, Letchworth Garden City, SG6

- PROPERTY TYPE
Semi-Detached
- BEDROOMS
4
- BATHROOMS
2
- SIZE
Ask agent
Key features
- Leasehold - 99 years reamining.
- Council Tax Band B.
- Spacious dual aspect lounge.
- Fitted kitchen with integrated oven and hob.
- Modern ground floor shower room.
- Bedroom One & Two share a 'Jack & Jill' en-suite shower room.
- Double glazed windows and gas central heating.
Description
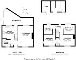
Four bedroom semi detached home located within walking distance of popular schools, the train station and the town centre. On the ground floor is a fitted kitchen with an integrated oven & hob, dual aspect lounge and shower room. Upstairs there are three bedrooms and an extra room that could be used as either a home office or fourth bedroom. The first two bedrooms share a 'Jack & Jill' shower room. Outside there is a large rear garden with a large outbuilding formerly used as kennels,
Entrance Hall
Stairs leading to the first floor.
Lounge
16' 0" x 11' 7" (4.88m x 3.53m)
Dual aspect with double glazed windows to the front and rear aspects. Laminate floor. Radiator. Tv point.
Kitchen
11' 7" x 10' 5" (3.53m x 3.17m)
Fitted in a range of matching white high gloss units providing ample storage space. Single drainer sink unit with mixer tap. Integrated double oven and hob. Tiled floor and walls. Space for a fridge/freezer. Plumbing for a washing machine. Double glazed window to the rear aspect. Door to the rear.
Conservatory
Timber framed with door leading to the garden.
Ground Floor Shower Room
Modern suite comprising a low level wc, wash basin with a cupboard under and a large walk in shower with glass screen. Heated chrome towel rail. Tiled walls and floor. Double glazed window to the front aspect.
Landing
Access to boarded loft space via a fold away ladder. Double glazed window to the rear aspect.
Bedroom One
11' 7" x 8' 2" (3.53m x 2.49m)
Double glazed window to the front aspect. Radiator. Door to the shared en-suite shower room.
Bedroom Two
8' 10" x 8' 2" (2.69m x 2.49m)
Double glazed window to the front aspect. Radiator. Door to the shared en-suite shower room.
Bedroom Three
8' 10" x 7' 6" (2.69m x 2.29m)
Double glazed window to the rear aspect. Radiator.
Bedroom Four/Home Office
7' 6" x 6' 5" (2.29m x 1.96m)
Double glazed window to the rear aspect. Radiator.
Jack and Jill Shower Room
A 'Jack and Jill' facility with access from bedroom One & Bedroom Two. Comprising a low level wc and a shower. Tiled walls. Extractor.
Front Garden
Laid to lawn with pathway to the front door. Gated access to the rear garden.
Rear Garden
A large rear garden laid mainly to lawn with hedge and wire fence borders. The second section of the garden houses a large outbuilding which was once uses as kennels for dogs. This could easily be adapted to make a home office or gym.
Agents Note
Leasehold 125 years from February 2000 with 99 years remaining.
Brochures
Brochure 1Brochure 2- COUNCIL TAXA payment made to your local authority in order to pay for local services like schools, libraries, and refuse collection. The amount you pay depends on the value of the property.Read more about council Tax in our glossary page.
- Band: B
- PARKINGDetails of how and where vehicles can be parked, and any associated costs.Read more about parking in our glossary page.
- Ask agent
- GARDENA property has access to an outdoor space, which could be private or shared.
- Yes
- ACCESSIBILITYHow a property has been adapted to meet the needs of vulnerable or disabled individuals.Read more about accessibility in our glossary page.
- Ask agent
West View, Letchworth Garden City, SG6
Add an important place to see how long it'd take to get there from our property listings.
__mins driving to your place
Get an instant, personalised result:
- Show sellers you’re serious
- Secure viewings faster with agents
- No impact on your credit score
About Country Properties, Letchworth Garden City
7 Howard Park Corner, Letchworth Garden City, SG6 1PQ



Your mortgage
Notes
Staying secure when looking for property
Ensure you're up to date with our latest advice on how to avoid fraud or scams when looking for property online.
Visit our security centre to find out moreDisclaimer - Property reference 29919353. The information displayed about this property comprises a property advertisement. Rightmove.co.uk makes no warranty as to the accuracy or completeness of the advertisement or any linked or associated information, and Rightmove has no control over the content. This property advertisement does not constitute property particulars. The information is provided and maintained by Country Properties, Letchworth Garden City. Please contact the selling agent or developer directly to obtain any information which may be available under the terms of The Energy Performance of Buildings (Certificates and Inspections) (England and Wales) Regulations 2007 or the Home Report if in relation to a residential property in Scotland.
*This is the average speed from the provider with the fastest broadband package available at this postcode. The average speed displayed is based on the download speeds of at least 50% of customers at peak time (8pm to 10pm). Fibre/cable services at the postcode are subject to availability and may differ between properties within a postcode. Speeds can be affected by a range of technical and environmental factors. The speed at the property may be lower than that listed above. You can check the estimated speed and confirm availability to a property prior to purchasing on the broadband provider's website. Providers may increase charges. The information is provided and maintained by Decision Technologies Limited. **This is indicative only and based on a 2-person household with multiple devices and simultaneous usage. Broadband performance is affected by multiple factors including number of occupants and devices, simultaneous usage, router range etc. For more information speak to your broadband provider.
Map data ©OpenStreetMap contributors.




