
Main Road, Harwich

- PROPERTY TYPE
Apartment
- BEDROOMS
2
- BATHROOMS
1
- SIZE
Ask agent
Key features
- Popular Gated Development
- Ground Floor Apartment
- 2 Double Bedrooms
- Close to Shops, Beach & Railway Station
- Open Plan Kitchen/Living Area
- Modern Bathroom
- Underfloor Heating
- Allocated Off Road Parking
- Communal Roof Terrace
- Ideal First Buy/Investment Opportunity
Description
With underfloor heating, allocated parking and the additional benefit of a communal outside area/roof terrace to enjoy!
Leasehold: 143 years remaining
Council Tax Band: B
EPC: C
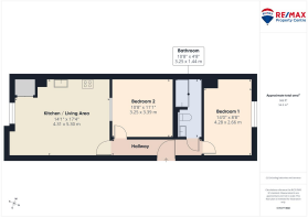
Entrance Hallway - Intercom system, doors leading to all rooms
Kitchen/Living Room - 5.30 x 4.31 (17'4" x 14'1") - Fitted with a modern range of wall and base units, stainless steel sink & drainer with mixer tap, Built in oven, hob and extractor, spaces for washing machine, fridge/freezer and dishwasher, built in storage cupboard housing boiler, window to side aspect (south facing)
Bedroom 1 - 4.28 x 2.66 (14'0" x 8'8") - Opaque window to side aspect
Bedroom 2 - 3.39 x 3.25 (11'1" x 10'7") - With opaque internal window to side aspect
Bathroom - 3.25 x 1.44 (10'7" x 4'8") - Modern suite comprising:- Panelled bath with wall mounted shower, low level WC, vanity sink with mixer tap, chrome wall mounted towel radiator, part tiled walls
Parking/Communal Areas: - Residents are welcome to use the communal roof terrace with views across the Stour estuary
One allocated parking space, plus shared visitors spaces available
Brochures
Main Road, HarwichBrochure- COUNCIL TAXA payment made to your local authority in order to pay for local services like schools, libraries, and refuse collection. The amount you pay depends on the value of the property.Read more about council Tax in our glossary page.
- Band: B
- PARKINGDetails of how and where vehicles can be parked, and any associated costs.Read more about parking in our glossary page.
- Off street,Communal
- GARDENA property has access to an outdoor space, which could be private or shared.
- Ask agent
- ACCESSIBILITYHow a property has been adapted to meet the needs of vulnerable or disabled individuals.Read more about accessibility in our glossary page.
- Ask agent
Main Road, Harwich
Add an important place to see how long it'd take to get there from our property listings.
__mins driving to your place
Get an instant, personalised result:
- Show sellers you’re serious
- Secure viewings faster with agents
- No impact on your credit score
Your mortgage
Notes
Staying secure when looking for property
Ensure you're up to date with our latest advice on how to avoid fraud or scams when looking for property online.
Visit our security centre to find out moreDisclaimer - Property reference 34443782. The information displayed about this property comprises a property advertisement. Rightmove.co.uk makes no warranty as to the accuracy or completeness of the advertisement or any linked or associated information, and Rightmove has no control over the content. This property advertisement does not constitute property particulars. The information is provided and maintained by Remax Property Centre, Harwich. Please contact the selling agent or developer directly to obtain any information which may be available under the terms of The Energy Performance of Buildings (Certificates and Inspections) (England and Wales) Regulations 2007 or the Home Report if in relation to a residential property in Scotland.
*This is the average speed from the provider with the fastest broadband package available at this postcode. The average speed displayed is based on the download speeds of at least 50% of customers at peak time (8pm to 10pm). Fibre/cable services at the postcode are subject to availability and may differ between properties within a postcode. Speeds can be affected by a range of technical and environmental factors. The speed at the property may be lower than that listed above. You can check the estimated speed and confirm availability to a property prior to purchasing on the broadband provider's website. Providers may increase charges. The information is provided and maintained by Decision Technologies Limited. **This is indicative only and based on a 2-person household with multiple devices and simultaneous usage. Broadband performance is affected by multiple factors including number of occupants and devices, simultaneous usage, router range etc. For more information speak to your broadband provider.
Map data ©OpenStreetMap contributors.





