
4 bedroom detached house for sale
Rose Hill Rise, Bessacarr, Doncaster

- PROPERTY TYPE
Detached
- BEDROOMS
4
- BATHROOMS
2
- SIZE
Ask agent
- TENUREDescribes how you own a property. There are different types of tenure - freehold, leasehold, and commonhold.Read more about tenure in our glossary page.
Freehold
Description
Finished with a high quality and very stylish interior befitting of any glossy magazine, this period detached house offers ‘turn key’ presentation and therefore needs to be viewed. The 4 bedroom house is located just off Bawtry Road, on Rose Hill, a very desirable leafy suburb. It has a modern central heating system, new pvc double glazing (installed 2024) and comprises: Entrance portico into a large stylish hall, 3 separate reception rooms, a large modern open plan dining kitchen with a feature island and bi-folds onto the rear garden, utility and wc. A period staircase with a stage landing and full height feature window continues to the first floor landing and gives access to 4 bedrooms of which there are 3 doubles and a good single, the main bedroom has a modern en-suite shower room off, plus there is a full house bathroom which includes a second shower enclosure. Outside you approach the property via a luxurious drive-on, drive-off semi-circular block paved driveway, with an attached garage, all screened by maturing trees. The rear garden has been landscaped too, there are stone paved patios, shaded corners and a large lawn, all with a very private wooded backdrop. VIEWING ESSENTIAL.
Accommodation - Double opening doors lead into a period style portico with chequer board effect tiled flooring, exposed rustic brickwork on display which leads to a glazed door which gives access into the entrance hall.
Entrance Hall - A beautiful hall finished with a parquet style herringbone laid oak floor, a beautiful staircase leading to the first floor accommodation with spindle banister rail and a built in understairs storage cupboard, a double panel central heating radiator, ornate cornicing and central ceiling lights.
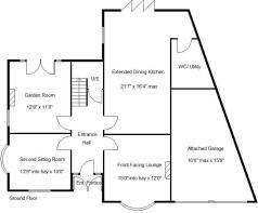
Lounge - 4.57m into bay x 3.66m (15'0" into bay x 12'0") - An attractive front facing reception room, it has a broad pvc double glazed bay window to the front, a feature pvc double glazed window ( with a black exterior and white interior, finished with period fittings including monkey tail style handles, found throughout the remainder of the home) a period style fireplace incorporating a log burner set on to a tiled hearth, real wood flooring, ornate cornicing, picture rail and a ceiling light.
Dining Room - 4.19m into bay x 3.05m (13'9" into bay x 10'0") - A second separate reception room, it has real wood flooring, two pvc double glazed windows including a feature bay window to the side with a curved radiator, period style panelling to half wall height, a ceiling light point and ornate cornicing.
Second Sitting Room - 3.86m x 3.35m (12'8" x 11'0") - A beautiful room, it has two pvc double glazed double opening doors which give access on to the property's patio and garden, a further pvc double glazed window to the side, real wood flooring, decorative cornicing, period built-in cabinet with shelving and storage beneath.
Extended Dining Island Kitchen - 6.58m x 4.98m max (21'7" x 16'4" max ) - This is probably better demonstrated by the photographs and floorplan. A beautiful open plan living space including bi-fold doors which lead directly onto the rear garden. The kitchen has been all smartly fitted with a range of modern high and low level units finished with a granite work surface and under mounted sink including a mixer tap. There is a five ring gas hob including wok burner with extractor style hood, twin ovens, integrated dishwasher and an integrated fridge and freezer. All finished with tiled flooring with an inlaid carpet within the dining area, a pvc double glazed window to the side, two central heating radiators, inset feature ceiling lighting with further newton style pendant lighting. A door from here leads into a ground floor wc/utility.
Ground Floor Wc/ Utility - This has a deep recess with plumbing for an automatic washing machine, room for a tumble dryer, fridges/freezers etc. There is a low flush wc, wash basin set into a vanity cabinet and a chrome style towel rail/radiator.
Stage & First Floor Landing - This has a tall pvc double glazed window with an outlook over the property's rear garden, a spindled banister rail and continues up to the first floor landing, where there is an access point into loft space, a central light space with an ornate ceiling rose, ornate cornicing and doors to the bedrooms and bathroom.
Main Bedroom - 3.71m x 3.66m (12'2" x 12'0") - A large front facing double bedroom, it has a pvc double glazed window to the front, a central heating radiator, period style fireplace, ornate cornicing, inset spot lighting and a central ceiling light.
En Suite Shower Room - All smartly finished with a modern white suite comprising of a shower enclosure with a thermostatic shower including a rainfall style shower head, a wash hand basin, low flush wc and tiling to the four walls and a pvc double glazed window.
Bedroom 2 - 3.96m x 3.66m (13'0" x 12'0") - A lovely sized second double bedroom with a pvc double glazed window with an outlook over the property's rear garden, a period style fireplace, ornate cornicing, ornate ceiling rose, inset spot lighting to the ceiling and central heating radiator.
Bedroom 3 - 3.35m x 3.05m (11'0" x 10'0") - A comfortable sized third bedroom, as evidenced by the room measurements, this has the benefit of a dual aspect with double glazed windows to the front and side elevations, period style panelling to one feature wall, a central heating radiator, ornate cornicing, ceiling rose and a ceiling light.
Bedroom 4 - 3.35m x 1.93m (11'0" x 6'4") - This has a pvc double glazed window with an outlook to the rear, a central heating radiator, ornate cornicing and a central ceiling light.
House Bathroom - Beautifully finished with contemporary style white four piece suite comprising of a double ended bath, a pedestal wash hand basin, low flush wc and a separate shower enclosure with mains thermostatic shower including rainfall shower head. There is tiling to the four walls, a co-ordinating floor tile, inset spot lighting to the ceiling and a pvc double glazed window.
Outside - Outside the property has a semi circular drive with a ‘drive-on drive-off type block paved drive providing easy turning and ample parking which in turn leads to an attached garage. It has a feature flower border stocked with a variety of shrubs and plants, fencing and hedging to the perimeters.
Attached Garage - With up and over door and power and light laid on.
Rear Garden - A beautiful mature garden, enclosed with timber fencing and hedging to the perimeters. It has maturing trees along the boundaries which provide screening and privacy during the summer months. A large paved patio and sitting area extends across the rear elevation, which opens on to a central lawn with shaped flower beds and borders, several paved seating areas including decorative flower beds and borders.
Agents Notes: - TENURE - FREEHOLD. The owner has informed us the property is Freehold.
DOUBLE GLAZING - New PVC double glazing, installed 2024, black exterior and white interior finish.
HEATING - The property has a gas radiator central heating system fitted.
COUNCIL TAX - This property is Band F.
VIEWING - By prior telephone appointment with horton knights estate agents.
MEASUREMENTS - Please note all measurements are approximate and for guidance purposes only, with a six inch tolerance. Therefore please do NOT rely upon them for carpet measurements, furniture and the like. Similarly, the floor plan is designed as a visual reference and is NOT a scale drawing.
PROPERTY PARTICULARS - We endeavour to make our property particulars accurate and reliable, however if there is a point that is especially important to you, please contact ourselves prior to exchange of contracts, so that we may further clarify that point. We DO NOT give any warranty to the suitability of any part, including fixtures and fittings of this property, prospective buyers are kindly asked to take specific advice from their professional advisors.
OPENING HOURS - Monday - Friday 9:00 - 5:30 Saturday 9:00 - 3:00 Sunday
INDEPENDENT MORTGAGE ADVICE - With so many mortgage options to choose from, how do you know your getting the best deal? Quite simply...YOU DON'T. Talk to an expert. We offer uncomplicated impartial advice. Call us today: .
FREE VALUATIONS - If you need to sell a house then please take advantage of our FREE VALUATION service, contact our Doncaster Office for a prompt and efficient service.
Brochures
Rose Hill Rise, Bessacarr, DoncasterBrochure- COUNCIL TAXA payment made to your local authority in order to pay for local services like schools, libraries, and refuse collection. The amount you pay depends on the value of the property.Read more about council Tax in our glossary page.
- Band: F
- PARKINGDetails of how and where vehicles can be parked, and any associated costs.Read more about parking in our glossary page.
- Yes
- GARDENA property has access to an outdoor space, which could be private or shared.
- Yes
- ACCESSIBILITYHow a property has been adapted to meet the needs of vulnerable or disabled individuals.Read more about accessibility in our glossary page.
- Ask agent
Rose Hill Rise, Bessacarr, Doncaster
Add an important place to see how long it'd take to get there from our property listings.
__mins driving to your place
Get an instant, personalised result:
- Show sellers you’re serious
- Secure viewings faster with agents
- No impact on your credit score



Your mortgage
Notes
Staying secure when looking for property
Ensure you're up to date with our latest advice on how to avoid fraud or scams when looking for property online.
Visit our security centre to find out moreDisclaimer - Property reference 34444961. The information displayed about this property comprises a property advertisement. Rightmove.co.uk makes no warranty as to the accuracy or completeness of the advertisement or any linked or associated information, and Rightmove has no control over the content. This property advertisement does not constitute property particulars. The information is provided and maintained by Horton Knights, Doncaster. Please contact the selling agent or developer directly to obtain any information which may be available under the terms of The Energy Performance of Buildings (Certificates and Inspections) (England and Wales) Regulations 2007 or the Home Report if in relation to a residential property in Scotland.
*This is the average speed from the provider with the fastest broadband package available at this postcode. The average speed displayed is based on the download speeds of at least 50% of customers at peak time (8pm to 10pm). Fibre/cable services at the postcode are subject to availability and may differ between properties within a postcode. Speeds can be affected by a range of technical and environmental factors. The speed at the property may be lower than that listed above. You can check the estimated speed and confirm availability to a property prior to purchasing on the broadband provider's website. Providers may increase charges. The information is provided and maintained by Decision Technologies Limited. **This is indicative only and based on a 2-person household with multiple devices and simultaneous usage. Broadband performance is affected by multiple factors including number of occupants and devices, simultaneous usage, router range etc. For more information speak to your broadband provider.
Map data ©OpenStreetMap contributors.






