2 bedroom apartment for sale
206 Archway Road, London, N6

- PROPERTY TYPE
Apartment
- BEDROOMS
2
- BATHROOMS
2
- SIZE
1,118 sq ft
104 sq m
Key features
- A delightful and unique 2 bedroom apartment
- 1,118 Sq Ft (104 SQ M
- A bright 23' reception room
- Underfloor heating
- Highgate Station approximately 0.3 miles away
- Green open spaces of Waterlow Park within walking distance.
Description
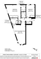
This third floor apartment measures in the region of 1,118 Sq Ft (104 SQ M) and offers well planned and spacious accommodation.
As you enter the apartment you are greeted with a welcoming entrance hallway with built in cloaks cupboards, this leads through to a bright 23' reception room with a semi-circular bay window. In turn the reception room leads into a well-appointed kitchen.
Furthermore, the 18' dual aspect, principal bedroom suite provides for built in wardrobes and a modern and contemporary en-suite shower room, whilst the second double bedroom has built in wardrobes and use of a lovely, tiled family bathroom.
Additional benefits include underfloor heating, wide plank, strip wood flooring and wonderful views of the London Skyline.
The building is conveniently placed for the transport links offered by Highgate Station which is approximately 0.3 miles away. Highgate High Street is approximately 0.5 miles away with its wonderful array of shops, restaurants and vibrant cafes. The wide green open spaces of Waterlow Park are also within walking distance.
Service Charge: £3,000pa
Ground Rent: £500pa
Lease remaining: 141 years
Council Tax: E
- COUNCIL TAXA payment made to your local authority in order to pay for local services like schools, libraries, and refuse collection. The amount you pay depends on the value of the property.Read more about council Tax in our glossary page.
- Band: E
- PARKINGDetails of how and where vehicles can be parked, and any associated costs.Read more about parking in our glossary page.
- Ask agent
- GARDENA property has access to an outdoor space, which could be private or shared.
- Ask agent
- ACCESSIBILITYHow a property has been adapted to meet the needs of vulnerable or disabled individuals.Read more about accessibility in our glossary page.
- Ask agent
Energy performance certificate - ask agent
206 Archway Road, London, N6
Add an important place to see how long it'd take to get there from our property listings.
__mins driving to your place
Get an instant, personalised result:
- Show sellers you’re serious
- Secure viewings faster with agents
- No impact on your credit score
Your mortgage
Notes
Staying secure when looking for property
Ensure you're up to date with our latest advice on how to avoid fraud or scams when looking for property online.
Visit our security centre to find out moreDisclaimer - Property reference JOW260016. The information displayed about this property comprises a property advertisement. Rightmove.co.uk makes no warranty as to the accuracy or completeness of the advertisement or any linked or associated information, and Rightmove has no control over the content. This property advertisement does not constitute property particulars. The information is provided and maintained by Jonathan Arron Residential, London. Please contact the selling agent or developer directly to obtain any information which may be available under the terms of The Energy Performance of Buildings (Certificates and Inspections) (England and Wales) Regulations 2007 or the Home Report if in relation to a residential property in Scotland.
*This is the average speed from the provider with the fastest broadband package available at this postcode. The average speed displayed is based on the download speeds of at least 50% of customers at peak time (8pm to 10pm). Fibre/cable services at the postcode are subject to availability and may differ between properties within a postcode. Speeds can be affected by a range of technical and environmental factors. The speed at the property may be lower than that listed above. You can check the estimated speed and confirm availability to a property prior to purchasing on the broadband provider's website. Providers may increase charges. The information is provided and maintained by Decision Technologies Limited. **This is indicative only and based on a 2-person household with multiple devices and simultaneous usage. Broadband performance is affected by multiple factors including number of occupants and devices, simultaneous usage, router range etc. For more information speak to your broadband provider.
Map data ©OpenStreetMap contributors.




