
10 bedroom semi-detached house for sale
Promenade, Bridlington

- PROPERTY TYPE
Semi-Detached
- BEDROOMS
10
- BATHROOMS
9
- SIZE
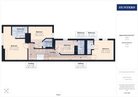
3,116 sq ft
289 sq m
- TENUREDescribes how you own a property. There are different types of tenure - freehold, leasehold, and commonhold.Read more about tenure in our glossary page.
Freehold
Key features
- Substantial Seven Bedroom Guest House With Three Bedroom Owner's Accomodation
- Exciting Business Opportunity
- Beautifully Presented Throughout
- Sea Views
- Rear Yard
- Off-Road Parking
- A Stone's Throw From Bridlington's North Beach
- Located In The Heart Of Bridlington
Description
This well-established property offers generous and versatile accommodation arranged to suit both lifestyle and business needs. The guest house provides seven well-proportioned letting bedrooms, offering comfortable and inviting spaces for visitors, many of which enjoy pleasant natural light and a welcoming atmosphere that encourages repeat trade. The layout has been thoughtfully configured to ensure smooth day-to-day operation while maintaining privacy between guest and owner areas.
The self-contained owner’s accommodation is a standout feature, comprising three bedrooms, office space, along with its own two reception rooms to provide a comfortable retreat separate from the guest areas, — ideal for owner-operators seeking a healthy work-life balance.
To the front, the property benefits from appealing sea views, adding to its guest appeal and enhancing its marketing potential as a coastal destination. The inclusion of off-road parking further elevates the property’s desirability, offering convenience for both owners and guests — a valuable asset in a seaside location.
The property also feature a private yard to the rear with a summer house, ideal for enjoying warmer evenings. Or for gym enthusiasts it would work as the perfect space to work out.
This is a superb turnkey lifestyle business opportunity, equally suited to experienced hospitality operators or those seeking a change of pace in a sought-after coastal setting. The property combines income potential, generous living accommodation, and an enviable position close to the seafront and local amenities.
Hmrc Disclaimer - Bridlington - Should you wish to proceed with an offer on this property we are obliged by HMRC to conduct mandatory Anti Money Laundering Checks. We outsource these checks to our compliance partners at Kotini and they charge a fee for this service.
Brochures
Promenade, Bridlington- COUNCIL TAXA payment made to your local authority in order to pay for local services like schools, libraries, and refuse collection. The amount you pay depends on the value of the property.Read more about council Tax in our glossary page.
- Band: A
- PARKINGDetails of how and where vehicles can be parked, and any associated costs.Read more about parking in our glossary page.
- Driveway
- GARDENA property has access to an outdoor space, which could be private or shared.
- Yes
- ACCESSIBILITYHow a property has been adapted to meet the needs of vulnerable or disabled individuals.Read more about accessibility in our glossary page.
- Ask agent
Energy performance certificate - ask agent
Promenade, Bridlington
Add an important place to see how long it'd take to get there from our property listings.
__mins driving to your place
Get an instant, personalised result:
- Show sellers you’re serious
- Secure viewings faster with agents
- No impact on your credit score
Your mortgage
Notes
Staying secure when looking for property
Ensure you're up to date with our latest advice on how to avoid fraud or scams when looking for property online.
Visit our security centre to find out moreDisclaimer - Property reference 34445360. The information displayed about this property comprises a property advertisement. Rightmove.co.uk makes no warranty as to the accuracy or completeness of the advertisement or any linked or associated information, and Rightmove has no control over the content. This property advertisement does not constitute property particulars. The information is provided and maintained by Hunters, Bridlington. Please contact the selling agent or developer directly to obtain any information which may be available under the terms of The Energy Performance of Buildings (Certificates and Inspections) (England and Wales) Regulations 2007 or the Home Report if in relation to a residential property in Scotland.
*This is the average speed from the provider with the fastest broadband package available at this postcode. The average speed displayed is based on the download speeds of at least 50% of customers at peak time (8pm to 10pm). Fibre/cable services at the postcode are subject to availability and may differ between properties within a postcode. Speeds can be affected by a range of technical and environmental factors. The speed at the property may be lower than that listed above. You can check the estimated speed and confirm availability to a property prior to purchasing on the broadband provider's website. Providers may increase charges. The information is provided and maintained by Decision Technologies Limited. **This is indicative only and based on a 2-person household with multiple devices and simultaneous usage. Broadband performance is affected by multiple factors including number of occupants and devices, simultaneous usage, router range etc. For more information speak to your broadband provider.
Map data ©OpenStreetMap contributors.









