1 Broadgate, London, EC2M 2QS
- SIZE AVAILABLE
20,000-39,653 sq ft
1,858-3,684 sq m
- SECTOR
Office to lease
- USE CLASSUse class orders: B1 Business
B1
Lease details
- Lease available date:
- Now
- Lease type:
- Long term
Key features
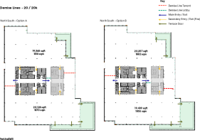
- The floorplate can be split in a number of ways from 20,000 sqft+
- 8th floor has two large private terraces totalling a combined area of 4,448 sqft
- Designed by AHMM, exceptional workspace, delivered to the highest specification
- BREEAM Outstanding, WELL Platinum and EPC A, NABERS 5.0
- Pedestrianised public realm on three sides, including access to the main 1 Broadgate entrance on Finsbury Avenue
- Positioned in the heart of the 32 acre Broadgate campus with doorstop access to worldclass retail, green space, culture and events
- Unrivalled connectivity with only a few seconds walk to Crossrail at Liverpool St station
Description
1 Broadgate is a brand new development being delivered by British Land & GIC. The building comprises 500,000 sq ft of workspace and 130,00 sq ft of new retail amenity: Broadgate Central which will introduce 29 new shops and six restaurants offering a curated blend of retail and dining experiences.
The building PC'd in June 2025.
The floor will be delivered in a Shell & Floor specification.
Salient points as follows:
* BREEAM Outstanding
* EPC A
* Highly specified end of trip facilities
* 2.8m floor to ceiling height
* Occupancy density of 1:8m2
Location
Located in the south west corner of Broadgate adjacent to Liverpool Street Station and the access to the Elizabeth Line
Brochures
1 Broadgate, London, EC2M 2QS
NEAREST STATIONS
Distances are straight line measurements from the centre of the postcode- Liverpool Street Station0.1 miles
- Moorgate Station0.2 miles
- Shoreditch High Street Station0.5 miles
Notes
Disclaimer - Property reference 332498-2. The information displayed about this property comprises a property advertisement. Rightmove.co.uk makes no warranty as to the accuracy or completeness of the advertisement or any linked or associated information, and Rightmove has no control over the content. This property advertisement does not constitute property particulars. The information is provided and maintained by JLL, City Offices. Please contact the selling agent or developer directly to obtain any information which may be available under the terms of The Energy Performance of Buildings (Certificates and Inspections) (England and Wales) Regulations 2007 or the Home Report if in relation to a residential property in Scotland.
Map data ©OpenStreetMap contributors.






