
Finsbury Street, York

- PROPERTY TYPE
Terraced
- BEDROOMS
2
- BATHROOMS
1
- SIZE
Ask agent
- TENUREDescribes how you own a property. There are different types of tenure - freehold, leasehold, and commonhold.Read more about tenure in our glossary page.
Freehold
Key features
- INVESTMENT PROPERTY - TENANTED - Achieving £950pcm
- Lounge with decorative fire
- Two Double Bedrooms
- Ground Floor Bathroom
- South Bank Area
- On Street Parking
- Short Riverside Walk/Cycle Through Rowntree Park To City Centre,
- Period Terrace Property
- Council Tax Band B
- EPC Rating D
Description
Offered with no forward chain, call Quantum to secure your viewing.
EPC Rating D
Council Tax Band B
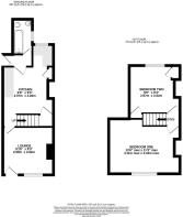
Entrance - Into lounge. Part glazed UPVC door with top light.
Lounge - 2.82m x 3.00m (9'3 x 9'10) - UPVC window. Radiator. Decorative fireplace with surround and hearth. Built in cupboard housing meters. Door to inner lobby.
Inner Lobby - Stairs leading to the first floor. Door to Kitchen.
Kitchen - 2.82m x 2.97m (9'3 x 9'9) - Fitted with a range of wall and base units complemented by co-ordinating work tops. Space for cooker. Extractor hood over. Sink unit. Plumbing for washing machine. UPVC window. Radiator. Built in cupboards. Under-stairs storage.
Rear Lobby - Door to side access. Door to bathroom.
Bathroom - 2.18m x 1.24m (7'2 x 4'1) - Fitted with a three piece suite comprising bath with shower over, wash hand basin and toilet. Opaque UPVC window. Radiator.
Bedroom One - 4.11m x 3.43m max (13'6 x 11'3 max) - UPVC window. Radiator.
Bedroom Two - 2.82m x 2.97m (9'3 x 9'9) - UPVC window. Radiator. Stair-head. Cupboard housing boiler. Additional built-in cupboard.
Outside - To the rear of the property is an enclosed walled courtyard with outbuilding.
Material Information - This information has been obtained from our Vendor/ Landlord, through local information, and verified sources where available. Every effort has been made to ensure this information is accurate and clear.
Council Tax Band of the property is B. The Local Authority is the City of York Council
The property Electricity Supplier is Northern Power Grid.
Water is supplied by Yorkshire Water. The property is connected to the main sewage system operated by Yorkshire Water.
The property has a combi boiler which supplies the heating and hot water.
The broadband and mobile phone signal can be checked via the Ofcom checker facility at checker.ofcom.org.uk
Additional Information - The property is currently tenanted on a fixed term 12 month AST which commenced on the 19th September 2025 - 18th September 2026
Landlord gas safety record in date until 26/03/2026
Electrical installation Certificate in date until 06/05/2027
Rental amount achieved per month £950pcm.
Deposit held within a secure scheme.
Property managed by Quantum Estate Agency
Anti - Money Laundering Compliance - We are are legally required to conduct Anti Money Laundering checks on all purchasers, sellers, and anyone related to a sale. These checks become mandatory when a seller accepts a purchaser's offer on a property. Anti-Money Laundering checks are valid for 6 months from the date they are completed. You will need to pay for new checks should this expire. We use a supplier SmartSearch in order to carry out these checks. There is a non-refundable charge of £30 + VAT per purchaser and any related money. This fee must be paid before we can issue a memorandum of sale to solicitors and is non-refundable.
Brochures
Finsbury Street, York- COUNCIL TAXA payment made to your local authority in order to pay for local services like schools, libraries, and refuse collection. The amount you pay depends on the value of the property.Read more about council Tax in our glossary page.
- Band: B
- PARKINGDetails of how and where vehicles can be parked, and any associated costs.Read more about parking in our glossary page.
- Ask agent
- GARDENA property has access to an outdoor space, which could be private or shared.
- Ask agent
- ACCESSIBILITYHow a property has been adapted to meet the needs of vulnerable or disabled individuals.Read more about accessibility in our glossary page.
- Ask agent
Finsbury Street, York
Add an important place to see how long it'd take to get there from our property listings.
__mins driving to your place
Get an instant, personalised result:
- Show sellers you’re serious
- Secure viewings faster with agents
- No impact on your credit score
Affordability
Notes
Staying secure when looking for property
Ensure you're up to date with our latest advice on how to avoid fraud or scams when looking for property online.
Visit our security centre to find out moreDisclaimer - Property reference 34446492. The information displayed about this property comprises a property advertisement. Rightmove.co.uk makes no warranty as to the accuracy or completeness of the advertisement or any linked or associated information, and Rightmove has no control over the content. This property advertisement does not constitute property particulars. The information is provided and maintained by Quantum Estate Agents, York. Please contact the selling agent or developer directly to obtain any information which may be available under the terms of The Energy Performance of Buildings (Certificates and Inspections) (England and Wales) Regulations 2007 or the Home Report if in relation to a residential property in Scotland.
*This is the average speed from the provider with the fastest broadband package available at this postcode. The average speed displayed is based on the download speeds of at least 50% of customers at peak time (8pm to 10pm). Fibre/cable services at the postcode are subject to availability and may differ between properties within a postcode. Speeds can be affected by a range of technical and environmental factors. The speed at the property may be lower than that listed above. You can check the estimated speed and confirm availability to a property prior to purchasing on the broadband provider's website. Providers may increase charges. The information is provided and maintained by Decision Technologies Limited. **This is indicative only and based on a 2-person household with multiple devices and simultaneous usage. Broadband performance is affected by multiple factors including number of occupants and devices, simultaneous usage, router range etc. For more information speak to your broadband provider.
Map data ©OpenStreetMap contributors.








