
4 bedroom detached house for sale
Marconi Close, Helston

- PROPERTY TYPE
Detached
- BEDROOMS
4
- BATHROOMS
2
- SIZE
Ask agent
- TENUREDescribes how you own a property. There are different types of tenure - freehold, leasehold, and commonhold.Read more about tenure in our glossary page.
Freehold
Description
On the ground floor you enter into a spacious hallway with doors leading to two useful storage cupboards, the kitchen, bedroom, the living/dining room and stairs to the first floor. From the kitchen a door leads to the utility area and garage. From the living/dining room stairs lead to the lower floor where a study area and bedroom can be found, both having access to the rear garden.
On the first floor are two double bedrooms, storage cupboard and a family bathroom.
Outside, to the front is a low maintenance landscaped garden with driveway parking and a garage. To the rear is a decked area with hot tub, patio area to the side and lawned area which backs onto woodland.
The historic market town of Helston stands at the gateway of the Lizard Peninsula which is Britain's most southerly point, which gives access to some of the most dramatic coastal scenery and beaches the UK has to offer. The coastal and inland villages are most picturesque which add to the overall charm of this delightful and highly regarded peninsula. Helston has an eclectic array of individual shops, well regarded schools (both primary and secondary) sports centre, doctor's surgeries, pharmacies and a cinema. The area boasts some outstanding walks and scenery nearby, eg Helston's boating lake through the National Trust land towards the outstanding Loe Pool and Loe Bar with the sea nearby.
Directions
What3words: potato.tolerable.ears
Council Tax Band: D
Tenure: Freehold
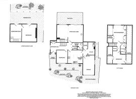
(ALL DIMENSIONS AND FLOOR PLANS ARE APPROXIMATE)
Entrance hall
A generous cupboard ideal for storing coats and shoes. Another storage cupboard used as an airing cupboard. Wooden stairs to the first floor. Tiled floor. Radiator. Doors to the kitchen, living/dining room, shower room and bedroom.
Kitchen
3.886m x 3.607m
A lovely light kitchen with a selection of base and wall cupboards and drawers finished in white gloss with Corian work surfaces incorporating a stainless steel sink and drainer with flexi hose tap, induction hob and built in extractor over. Integrated fridge/freezer and double oven. A central island providing more cupboard space. Radiator. Double glazed window overlooking the front garden. Door to utility room.
Utility
Storage cupboard. Work surface with stainless steel sink and drainer with mixer tap. Space and plumbing for washing machine. Boiler. Heated towel rail. Door to garage.
Garage
5.41m x 2.972m
Double glazed window to the side. Door to the side. Consumer unit. Power and light.
Bedroom 4
3.63m x 3.02m
Currently used a dining room. Double glazed window to the front. Wood floor. Radiator.
Shower Room
A modern shower room with separate shower, deluge shower head and flexi shower attachment. WC. Wash hand basin with mixer tap and storage drawers below. Extractor fan. Heated towel radiator. Tiled floor.
Lounge/diner
7.11m x 4.83m
A south facing and light room with sliding patio doors leading out onto the balcony with views over the garden and countryside views beyond the trees. Wood burner. Double glazed window to the rear. Stairs to the lower floor.
Study
A study area with double glazed patio door leading to the rear garden and hot tub area. Wood effect floor. Storage cupboard. Radiator. Door to bedroom.
Bedroom 2
4.78m x 3.33m
A generous room with wood effect flooring. Radiator. Double glazed patio doors to the rear garden.
Landing
Storage cupboard. Doors to two bedrooms and the family bathroom. Loft hatch (no ladder or boarding).
Bedroom 1
4.88m x 2.69m
A naturally lit room with double glazed window to the rear with views of trees and countryside beyond. Lots of built-in wardrobe cupboards aswell as eaves storage. Radiator.
Bedroom 3
3.632m x 3.327m
Double glazed window to the front. Radiator. Eaves storage.
Bathroom
A tiled room with a 'P' shaped bath with shower screen and shower attachment. Wash hand basin with mixer tap and storage drawers below. WC. Three frosted double glazed windows. Heated towel radiator. Extractor fan.
Anti Money Laundering Regulations - BUYERS
Please note it is a legal requirement that we require verified ID and proof of funds from purchasers before instructing a sale, together with your instructed solicitors.
Brochures
Brochure- COUNCIL TAXA payment made to your local authority in order to pay for local services like schools, libraries, and refuse collection. The amount you pay depends on the value of the property.Read more about council Tax in our glossary page.
- Band: D
- PARKINGDetails of how and where vehicles can be parked, and any associated costs.Read more about parking in our glossary page.
- Garage,Driveway
- GARDENA property has access to an outdoor space, which could be private or shared.
- Rear garden
- ACCESSIBILITYHow a property has been adapted to meet the needs of vulnerable or disabled individuals.Read more about accessibility in our glossary page.
- Ask agent
Marconi Close, Helston
Add an important place to see how long it'd take to get there from our property listings.
__mins driving to your place
Get an instant, personalised result:
- Show sellers you’re serious
- Secure viewings faster with agents
- No impact on your credit score
Your mortgage
Notes
Staying secure when looking for property
Ensure you're up to date with our latest advice on how to avoid fraud or scams when looking for property online.
Visit our security centre to find out moreDisclaimer - Property reference RS0062. The information displayed about this property comprises a property advertisement. Rightmove.co.uk makes no warranty as to the accuracy or completeness of the advertisement or any linked or associated information, and Rightmove has no control over the content. This property advertisement does not constitute property particulars. The information is provided and maintained by Olivers Estate Agents, Cornwall. Please contact the selling agent or developer directly to obtain any information which may be available under the terms of The Energy Performance of Buildings (Certificates and Inspections) (England and Wales) Regulations 2007 or the Home Report if in relation to a residential property in Scotland.
*This is the average speed from the provider with the fastest broadband package available at this postcode. The average speed displayed is based on the download speeds of at least 50% of customers at peak time (8pm to 10pm). Fibre/cable services at the postcode are subject to availability and may differ between properties within a postcode. Speeds can be affected by a range of technical and environmental factors. The speed at the property may be lower than that listed above. You can check the estimated speed and confirm availability to a property prior to purchasing on the broadband provider's website. Providers may increase charges. The information is provided and maintained by Decision Technologies Limited. **This is indicative only and based on a 2-person household with multiple devices and simultaneous usage. Broadband performance is affected by multiple factors including number of occupants and devices, simultaneous usage, router range etc. For more information speak to your broadband provider.
Map data ©OpenStreetMap contributors.







