
3 bedroom semi-detached house for sale
Redfield Road, Midsomer Norton

- PROPERTY TYPE
Semi-Detached
- BEDROOMS
3
- BATHROOMS
1
- SIZE
893 sq ft
83 sq m
- TENUREDescribes how you own a property. There are different types of tenure - freehold, leasehold, and commonhold.Read more about tenure in our glossary page.
Freehold
Key features
- No onward sales chain!
- Potential to extend (STPP)
- High ceilings
- Character features
- Large garden
- Driveway parking
Description
Full of character features, this home would make a great family property to grow into and enjoy.
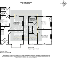
In brief the accommodation consists of entrance porch and hallway, lounge, dining room, kitchen, w/c and store to the ground floor. To the first floor are three bedrooms and family bathroom.
The rooms are spacious and benefit from high ceilings, original doors and that sense of character. This is a comfortable home that has plenty of potential to improve, yet a great house as it is.
The lounge is located to the front complete with bay window with enough space for multiple sofas. The dining room is to the rear of the property and has patio doors leading into the rear garden and opens into the kitchen.
The kitchen itself compact, yet modern.
The property has the potential of extensions (STPP), due to a large garden. The rear of the property is primed ready for either singular or double storey extensions providing a large kitchen/diner/family room and subsequent second floor.
To the first floor, there are two great sized double bedrooms and a smaller single room.
Like the kitchen, the bathroom is a compact space yet of modern design.
Externally to front is driveway parking accessed by a shared driveway with the neighbour. Side access leads from the drive up into the rear garden.
This is the selling point! The garden is large and at present a blank canvass. Fully enclosed for safety of children and pets, this is a rare find so central in Midsomer Norton.
This property is a clean, tidy and ready to move into home. A great purchase option for an array of buyers, but perfect for those with a bit of imagination.
Brochures
Redfield Road, Midsomer NortonBrochure- COUNCIL TAXA payment made to your local authority in order to pay for local services like schools, libraries, and refuse collection. The amount you pay depends on the value of the property.Read more about council Tax in our glossary page.
- Band: C
- PARKINGDetails of how and where vehicles can be parked, and any associated costs.Read more about parking in our glossary page.
- Driveway
- GARDENA property has access to an outdoor space, which could be private or shared.
- Yes
- ACCESSIBILITYHow a property has been adapted to meet the needs of vulnerable or disabled individuals.Read more about accessibility in our glossary page.
- Ask agent
Redfield Road, Midsomer Norton
Add an important place to see how long it'd take to get there from our property listings.
__mins driving to your place
Get an instant, personalised result:
- Show sellers you’re serious
- Secure viewings faster with agents
- No impact on your credit score



Your mortgage
Notes
Staying secure when looking for property
Ensure you're up to date with our latest advice on how to avoid fraud or scams when looking for property online.
Visit our security centre to find out moreDisclaimer - Property reference 34447660. The information displayed about this property comprises a property advertisement. Rightmove.co.uk makes no warranty as to the accuracy or completeness of the advertisement or any linked or associated information, and Rightmove has no control over the content. This property advertisement does not constitute property particulars. The information is provided and maintained by Bath Stone Property, Midsomer Norton. Please contact the selling agent or developer directly to obtain any information which may be available under the terms of The Energy Performance of Buildings (Certificates and Inspections) (England and Wales) Regulations 2007 or the Home Report if in relation to a residential property in Scotland.
*This is the average speed from the provider with the fastest broadband package available at this postcode. The average speed displayed is based on the download speeds of at least 50% of customers at peak time (8pm to 10pm). Fibre/cable services at the postcode are subject to availability and may differ between properties within a postcode. Speeds can be affected by a range of technical and environmental factors. The speed at the property may be lower than that listed above. You can check the estimated speed and confirm availability to a property prior to purchasing on the broadband provider's website. Providers may increase charges. The information is provided and maintained by Decision Technologies Limited. **This is indicative only and based on a 2-person household with multiple devices and simultaneous usage. Broadband performance is affected by multiple factors including number of occupants and devices, simultaneous usage, router range etc. For more information speak to your broadband provider.
Map data ©OpenStreetMap contributors.





