2 bedroom flat for rent
Dingley Place, Old Street, EC1V

Letting details
- Let available date:
- 11/03/2026
- Deposit:
- £6,923A deposit provides security for a landlord against damage, or unpaid rent by a tenant.Read more about deposit in our glossary page.
- Min. Tenancy:
- Ask agent How long the landlord offers to let the property for.Read more about tenancy length in our glossary page.
- Let type:
- Short term
- Furnish type:
- Furnished
- Council Tax:
- Ask agent
- PROPERTY TYPE
Flat
- BEDROOMS
2
- BATHROOMS
2
- SIZE
1,270 sq ft
118 sq m
Key features
- SHORT LET - all utilities included
- Authentic loft with exposed brickwork
- Two bedroom, two bathroom with lift access
- Offered furnished
- Over 1250 sq/ft
- Available mid March
- Deposit Amount: £6923.08
- Council Tax Band - F
Description
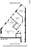
Located on the second floor with convenient lift access, the apartment spans approximately 1,270 square feet and makes a bold first impression with its wide entrance hall. The main living area is a generous, open-plan space characterised by exposed brickwork, original cast-iron columns and expansive wood flooring—elements that underscore the property's genuine warehouse identity. The reception area flows into a fully integrated kitchen, ideal for entertaining or relaxed daily living.
The apartment offers excellent proportions throughout, including two large double bedrooms. The principal bedroom benefits from an en suite bathroom, while a second full bathroom serves guests and the second bedroom. High ceilings and large windows further enhance the sense of space and light, creating an airy and inviting interior that speaks to both style and substance.
Dingley Place enjoys exceptional transport connections. Old Street station (Northern Line and National Rail) is just a short walk away, offering direct access to the City, King's Cross, and London Bridge. Nearby bus routes and cycle lanes also provide swift links to Shoreditch, Angel, and the West End, making this location ideal for commuters and creatives alike.
Positioned on the border of Clerkenwell and Shoreditch, the apartment sits at the intersection of some of London’s most dynamic neighbourhoods. From the Michelin-starred dining options and boutique shops of Clerkenwell to the nightlife and culture of Shoreditch and Hoxton, the area offers a rich mix of amenities. With Whitecross Street Market around the corner and the green spaces of Shoreditch Park nearby, this is a vibrant, well-connected location with something for everyone.
- COUNCIL TAXA payment made to your local authority in order to pay for local services like schools, libraries, and refuse collection. The amount you pay depends on the value of the property.Read more about council Tax in our glossary page.
- Band: F
- PARKINGDetails of how and where vehicles can be parked, and any associated costs.Read more about parking in our glossary page.
- Allocated
- GARDENA property has access to an outdoor space, which could be private or shared.
- Ask agent
- ACCESSIBILITYHow a property has been adapted to meet the needs of vulnerable or disabled individuals.Read more about accessibility in our glossary page.
- Ask agent
Dingley Place, Old Street, EC1V
Add an important place to see how long it'd take to get there from our property listings.
__mins driving to your place
About Urban Spaces, Loft Living & Unique Properties
Urban Spaces, 1st Floor, Standon House, 21 Mansell Street, E1 8AA



Notes
Staying secure when looking for property
Ensure you're up to date with our latest advice on how to avoid fraud or scams when looking for property online.
Visit our security centre to find out moreDisclaimer - Property reference PB11151. The information displayed about this property comprises a property advertisement. Rightmove.co.uk makes no warranty as to the accuracy or completeness of the advertisement or any linked or associated information, and Rightmove has no control over the content. This property advertisement does not constitute property particulars. The information is provided and maintained by Urban Spaces, Loft Living & Unique Properties. Please contact the selling agent or developer directly to obtain any information which may be available under the terms of The Energy Performance of Buildings (Certificates and Inspections) (England and Wales) Regulations 2007 or the Home Report if in relation to a residential property in Scotland.
*This is the average speed from the provider with the fastest broadband package available at this postcode. The average speed displayed is based on the download speeds of at least 50% of customers at peak time (8pm to 10pm). Fibre/cable services at the postcode are subject to availability and may differ between properties within a postcode. Speeds can be affected by a range of technical and environmental factors. The speed at the property may be lower than that listed above. You can check the estimated speed and confirm availability to a property prior to purchasing on the broadband provider's website. Providers may increase charges. The information is provided and maintained by Decision Technologies Limited. **This is indicative only and based on a 2-person household with multiple devices and simultaneous usage. Broadband performance is affected by multiple factors including number of occupants and devices, simultaneous usage, router range etc. For more information speak to your broadband provider.
Map data ©OpenStreetMap contributors.




