Hempstead Road, Hempstead, Gillingham, Kent

- PROPERTY TYPE
Detached
- BEDROOMS
6
- BATHROOMS
4
- SIZE
Ask agent
- TENUREDescribes how you own a property. There are different types of tenure - freehold, leasehold, and commonhold.Read more about tenure in our glossary page.
Freehold
Key features
- A substantial and extended family home offering flexible accommodation over three floors
- Impressive 30ft lounge with a cosy feature wood burner
- Spacious 31ft dining/family area perfect for entertaining
- Luxury fitted bathroom and en-suites
- Close to local amenities, schools and motorway links
Description
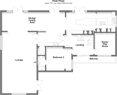
Room sizes:
- Entrance Hall: 14'3 x 9'7 (4.35m x 2.92m)
- Store Room
- Boot Room: 12'5 x 8'8 (3.79m x 2.64m)
- Utility Room: 9'8 x 8'0 (2.95m x 2.44m)
- Landing: 13'3 x 9'9 (4.04m x 2.97m)
- Balcony
- Cloakroom
- Study/Play Room: 10'5 x 10'4 (3.18m x 3.15m)
- Bedroom 3: 12'7 x 11'8 (3.84m x 3.56m)
- En-Suite Shower Room
- Kitchen/Breakfast Area: 23'7 x 11'6 (7.19m x 3.51m)
- Dining/Family Area: 31'2 x 18'8 at widest point (9.51m x 5.69m)
- Lounge: 30'5 x 16'5 (9.28m x 5.01m)
- Landing: 23'7 x 9'6 at widest point (7.19m x 2.90m)
- Bedroom 1: 13'9 x 11'3 (4.19m x 3.43m)
- Juliette Balcony
- Dressing Area: 11'3 x 9'2 (3.43m x 2.80m)
- En-Suite Wet Room: 10'2 at widest point x 9'7 maximum (3.10m x 2.92m)
- Bedroom 2: 16'5 x 9'4 (5.01m x 2.85m)
- En-Suite Shower Room: 8'2 x 6'0 (2.49m x 1.83m)
- Bedroom 4: 12'1 x 9'9 (3.69m x 2.97m)
- Bedroom 5: 11'5 x 9'7 (3.48m x 2.92m)
- Bedroom 6: 13'2 x 9'1 (4.02m x 2.77m)
- Dressing Room: 16'1 x 7'6 (4.91m x 2.29m)
- Full Family Bathroom: 10'6 x 6'8 (3.20m x 2.03m)
- Front Garden
- Front Decking Area: 40'0 at widest point x 31'0 (12.20m x 9.46m)
- Rear Garden
- Garage: 13'5 x 10'1 (4.09m x 3.08m)
- Front Driveway
- Gated Side/Rear Driveway
The information provided about this property does not constitute or form part of an offer or contract, nor may it be regarded as representations. All interested parties must verify accuracy and your solicitor must verify tenure/lease information, fixtures & fittings and, where the property has been extended/converted, planning/building regulation consents. All dimensions are approximate and quoted for guidance only as are floor plans which are not to scale and their accuracy cannot be confirmed. Reference to appliances and/or services does not imply that they are necessarily in working order or fit for the purpose.
If buying to rent, please check if Local Authority licensing schemes apply before proceeding. Legal advice should be taken to verify fixtures/fittings, planning, alterations and/or lease details. Appliances & services are untested, dimensions are approximate and floor plans are not to scale.
We are pleased to offer our customers a range of additional services to help them with moving home. None of these services are obligatory and you are free to use service providers of your choice. Current regulations require all estate agents to inform their customers of the fees they earn for recommending third party services. If you choose to use a service provider recommended by Wards, details of all referral fees can be found at the link below. If you decide to use any of our services, please be assured that this will not increase the fees you pay to our service providers, which remain as quoted directly to you.
Brochures
Full PDF brochureExplore this property in 3D Virtual RealityReferral feesPrivacy policy- COUNCIL TAXA payment made to your local authority in order to pay for local services like schools, libraries, and refuse collection. The amount you pay depends on the value of the property.Read more about council Tax in our glossary page.
- Band: G
- PARKINGDetails of how and where vehicles can be parked, and any associated costs.Read more about parking in our glossary page.
- Garage,Off street
- GARDENA property has access to an outdoor space, which could be private or shared.
- Front garden,Back garden
- ACCESSIBILITYHow a property has been adapted to meet the needs of vulnerable or disabled individuals.Read more about accessibility in our glossary page.
- Ask agent
Hempstead Road, Hempstead, Gillingham, Kent
Add an important place to see how long it'd take to get there from our property listings.
__mins driving to your place
Affordability
Get an instant, personalised result:
- Show sellers you’re serious
- Secure viewings faster with agents
- No impact on your credit score
Notes
Staying secure when looking for property
Ensure you're up to date with our latest advice on how to avoid fraud or scams when looking for property online.
Visit our security centre to find out moreDisclaimer - Property reference 11338700. The information displayed about this property comprises a property advertisement. Rightmove.co.uk makes no warranty as to the accuracy or completeness of the advertisement or any linked or associated information, and Rightmove has no control over the content. This property advertisement does not constitute property particulars. The information is provided and maintained by Wards, Rainham. Please contact the selling agent or developer directly to obtain any information which may be available under the terms of The Energy Performance of Buildings (Certificates and Inspections) (England and Wales) Regulations 2007 or the Home Report if in relation to a residential property in Scotland.
*This is the average speed from the provider with the fastest broadband package available at this postcode. The average speed displayed is based on the download speeds of at least 50% of customers at peak time (8pm to 10pm). Fibre/cable services at the postcode are subject to availability and may differ between properties within a postcode. Speeds can be affected by a range of technical and environmental factors. The speed at the property may be lower than that listed above. You can check the estimated speed and confirm availability to a property prior to purchasing on the broadband provider's website. Providers may increase charges. The information is provided and maintained by Decision Technologies Limited. **This is indicative only and based on a 2-person household with multiple devices and simultaneous usage. Broadband performance is affected by multiple factors including number of occupants and devices, simultaneous usage, router range etc. For more information speak to your broadband provider.
Map data ©OpenStreetMap contributors.








