
Northen Grove, West Didsbury

- PROPERTY TYPE
Terraced
- BEDROOMS
3
- BATHROOMS
2
- SIZE
Ask agent
- TENUREDescribes how you own a property. There are different types of tenure - freehold, leasehold, and commonhold.Read more about tenure in our glossary page.
Freehold
Key features
- Attractive Period Victorian Terrace
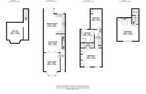
- Spacious Accommodation Over Four Floors Measuring 1632 Sq Ft
- Large Bay Fronted Living Room, Generous Sitting Room and Modern Fitted Open Plan Dining/Kitchen
- Three Excellent Sized Double Bedrooms
- Contemporary En-Suite Shower Room and Stylish Four Piece Bathroom Suite
- Off Road Parking and South Facing Rear Private Garden
- Situated in the Heart of West Didsbury and a Stone's Throw from Burton Road
- Offered to the Market with No Vendor Chain
Description
DESCRIPTION
Internally the property comprises: welcoming entrance hallway, a bay fronted living room with an attractive feature fireplace and double doors which open on to the second reception room. The sitting room is complete with a further feature fireplace, access to the cellars and the modern open plan dining kitchen with an array of integrated appliances and bi-fold doors overlooking the rear courtyard garden.
To the first floor there are two good sized bedrooms. To the front of the property there is an impressive primary bedroom with an abundance of natural light and a stylish three piece en-suite shower room. A contemporary four piece bathroom suite serves both other bedrooms.
To the second floor you are greeted by a large double bedroom with a large skylight and ample eaves storage. The cellar is ideal for storage and could be converted to further living accommodation (STPP).
Externally there is off road parking to the front. To the rear there is a Southerly facing courtyard garden with walled boundaries and access to a large croft which provides private space for children as well as a communal area for community BBQ events. Situated in a sought after location and one of the more desirable roads in West Didsbury. Offered to the market with No Vendor Chain.
Brochures
5a Northen Grove.pdf- COUNCIL TAXA payment made to your local authority in order to pay for local services like schools, libraries, and refuse collection. The amount you pay depends on the value of the property.Read more about council Tax in our glossary page.
- Band: D
- PARKINGDetails of how and where vehicles can be parked, and any associated costs.Read more about parking in our glossary page.
- Yes
- GARDENA property has access to an outdoor space, which could be private or shared.
- Yes
- ACCESSIBILITYHow a property has been adapted to meet the needs of vulnerable or disabled individuals.Read more about accessibility in our glossary page.
- Ask agent
Northen Grove, West Didsbury
Add an important place to see how long it'd take to get there from our property listings.
__mins driving to your place
Get an instant, personalised result:
- Show sellers you’re serious
- Secure viewings faster with agents
- No impact on your credit score

Affordability
Notes
Staying secure when looking for property
Ensure you're up to date with our latest advice on how to avoid fraud or scams when looking for property online.
Visit our security centre to find out moreDisclaimer - Property reference 1041376. The information displayed about this property comprises a property advertisement. Rightmove.co.uk makes no warranty as to the accuracy or completeness of the advertisement or any linked or associated information, and Rightmove has no control over the content. This property advertisement does not constitute property particulars. The information is provided and maintained by Gascoigne Halman, Didsbury. Please contact the selling agent or developer directly to obtain any information which may be available under the terms of The Energy Performance of Buildings (Certificates and Inspections) (England and Wales) Regulations 2007 or the Home Report if in relation to a residential property in Scotland.
*This is the average speed from the provider with the fastest broadband package available at this postcode. The average speed displayed is based on the download speeds of at least 50% of customers at peak time (8pm to 10pm). Fibre/cable services at the postcode are subject to availability and may differ between properties within a postcode. Speeds can be affected by a range of technical and environmental factors. The speed at the property may be lower than that listed above. You can check the estimated speed and confirm availability to a property prior to purchasing on the broadband provider's website. Providers may increase charges. The information is provided and maintained by Decision Technologies Limited. **This is indicative only and based on a 2-person household with multiple devices and simultaneous usage. Broadband performance is affected by multiple factors including number of occupants and devices, simultaneous usage, router range etc. For more information speak to your broadband provider.
Map data ©OpenStreetMap contributors.





