
3 bedroom end of terrace house for sale
Dovedale Crescent, Southgate West

- PROPERTY TYPE
End of Terrace
- BEDROOMS
3
- BATHROOMS
2
- SIZE
Ask agent
- TENUREDescribes how you own a property. There are different types of tenure - freehold, leasehold, and commonhold.Read more about tenure in our glossary page.
Freehold
Description
Astons are pleased to offer this refurbished three/four bedroom end of terrace house. The property has been improved by the current owners and now benefits from a refitted kitchen/dining room, a refitted white bathroom suite and refitted separate cloakroom.
The house further benefits from a an additional reception room which could be a sitting room, office or potentially a fourth bedroom. The property has gas fired radiator heating, double glazed windows and neutral decor throughout. Outside the house has a driveway to the front with parking for three cars with an EV charging port, garage, ad an enclosed garden with side access.
The property is ideally situated within the popular Southgate West area and is close to the town centre, amenities and transport links.
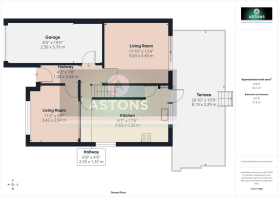
Hallway - Part double glazed front door, radiator, stairs to the first floor, doors to:
Sitting Room/Bedroom Four - Double glazed window to the front, radiator, wood effect flooring, coving.
Kitchen/Dining Room - Refitted range of base and eye level units with work surfaces over and matching splash backs, inset sink unit with a mixer tap and drainer, built in eye level stainless steel oven and microwave over, five ring gas hob with an extractor hood above, space for a washing machine, dishwasher and an American style fridge/freezer, larder cupboard, under stairs cupboard, coving, double glazed windows to the rear and side, double glazed door to the garden.
Lounge - Double glazed patio doors to the rear, radiator.
Landing - Cupboard housing the gas fired boiler, storage cupboard, coving, doors to:
Bedroom One - Double glazed window to the front, radiator, built in wardrobe.
Bedroom Two - Double glazed window to the rear, radiator, coving.
Bedroom Three - Double glazed window to the front, built in cupboard, radiator, coving, recessed space.
Bathroom - Refitted white suite comprising a panel enclosed bath with a waterfall style mixer tap and shower attachment with a fixed and separate hand held head, hand bsin with a vanity unit and mixer tap, wc with a concealed cistern, tiled walls, tiled floor, obscured double glazed window, extractor fan, heated towel rail, access to the loft space, recessed down lighters.
Separate Wc - White suite comprising a wc, hand basin with a mixer tap, obscured double glazed window, tiled walls.
To The Front - There is a driveway to the front of the house which offers parking three cars, EV charging port, leading to the garage, lawned area to the side.
Garage - With an up and over door, power and light, personal door to the house.
Rear Garden - Paved patio area to the rear of the house, lawned area with fence enclosed borders, side access gate.
Anti Money Laundering - In accordance with the requirements of the Anti Money Laundering Act 2022, Astons Sales and Lettings Ltd. mandates that prospective purchaser(s) who have an offer accepted on one of our properties undergo identification verification. To facilitate this, we utilise MoveButler, an online platform for identity verification. The cost for each identification check is £20, including VAT charged by MoveButler at the point of onboarding, per individual (or company) listed as a purchaser in the memorandum of sale. This fee is non-refundable, regardless of the circumstances.
Disclaimer - Please note in accordance with the Property Misdescriptions Act, measurements are approximate and cannot be guaranteed. No testing of services or appliances included has taken place. No checking of tenure or boundaries has been made. We are unaware whether alterations to the property have necessary regulations or approvals.
Referral Fees - We offer our customers a range of additional services, none of which are obligatory, and you are free to use service providers of your choice.
Should you choose a provider recommended by Astons, we will receive the following fees with the addition of VAT at the prevailing rate
Conveyancing - Lewis & Dick £200 per transaction
Mortgages - Finance Planning Group procurement fees from mortgage lenders which vary by lender. Customers will receive confirmation of these fees upon instruction and again as soon as the exact amounts are known.
Brochures
Dovedale Crescent, Southgate WestBrochure- COUNCIL TAXA payment made to your local authority in order to pay for local services like schools, libraries, and refuse collection. The amount you pay depends on the value of the property.Read more about council Tax in our glossary page.
- Band: D
- PARKINGDetails of how and where vehicles can be parked, and any associated costs.Read more about parking in our glossary page.
- Yes
- GARDENA property has access to an outdoor space, which could be private or shared.
- Yes
- ACCESSIBILITYHow a property has been adapted to meet the needs of vulnerable or disabled individuals.Read more about accessibility in our glossary page.
- Ask agent
Energy performance certificate - ask agent
Dovedale Crescent, Southgate West
Add an important place to see how long it'd take to get there from our property listings.
__mins driving to your place
Get an instant, personalised result:
- Show sellers you’re serious
- Secure viewings faster with agents
- No impact on your credit score
Your mortgage
Notes
Staying secure when looking for property
Ensure you're up to date with our latest advice on how to avoid fraud or scams when looking for property online.
Visit our security centre to find out moreDisclaimer - Property reference 34449102. The information displayed about this property comprises a property advertisement. Rightmove.co.uk makes no warranty as to the accuracy or completeness of the advertisement or any linked or associated information, and Rightmove has no control over the content. This property advertisement does not constitute property particulars. The information is provided and maintained by Astons, Crawley. Please contact the selling agent or developer directly to obtain any information which may be available under the terms of The Energy Performance of Buildings (Certificates and Inspections) (England and Wales) Regulations 2007 or the Home Report if in relation to a residential property in Scotland.
*This is the average speed from the provider with the fastest broadband package available at this postcode. The average speed displayed is based on the download speeds of at least 50% of customers at peak time (8pm to 10pm). Fibre/cable services at the postcode are subject to availability and may differ between properties within a postcode. Speeds can be affected by a range of technical and environmental factors. The speed at the property may be lower than that listed above. You can check the estimated speed and confirm availability to a property prior to purchasing on the broadband provider's website. Providers may increase charges. The information is provided and maintained by Decision Technologies Limited. **This is indicative only and based on a 2-person household with multiple devices and simultaneous usage. Broadband performance is affected by multiple factors including number of occupants and devices, simultaneous usage, router range etc. For more information speak to your broadband provider.
Map data ©OpenStreetMap contributors.







