
3 bedroom detached bungalow for sale
Green Meadows, Main Road, Glen Vine

- PROPERTY TYPE
Detached Bungalow
- BEDROOMS
3
- BATHROOMS
1
- SIZE
Ask agent
- TENUREDescribes how you own a property. There are different types of tenure - freehold, leasehold, and commonhold.Read more about tenure in our glossary page.
Ask agent
Key features
- Highly desirable detached and extended family home in the village of Glen Vine
- Situated in a sought after position bordering a field to the rear and there are superb countryside aspects
- Located in a convenient location with easy reach of the popular local primary and the various amenities of the neighbouring village of Crosby which include, shop, public house and coffee shop
- The property provides a front row seat for the famous TT & MGP races
- Well presented accommodation throughout
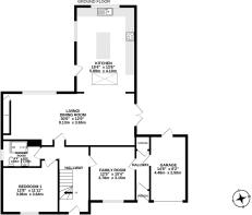
- Impressive 30ft open plan living dining room with log burner and a square opening through to a modern stylish kitchen extension with island and breakfast bar
- Additional family room which is currently set up as a home bar and hobbies room
- 3 Bedrooms, 1 is on the ground floor and the 2 first floor bedrooms enjoy a range of eaves storage and there is a modern stylish shower room
- Extensive driveway providing off-road parking for multiple cars and access to the integral garage
- Externally there is a decking area to the side of the property with pergola and a south facing lawned garden to the rear which borders a feild
Description
This highly desirable detached and extended family home is located in the popular village of Glen Vine, enjoying a sought-after position with superb countryside aspects and an open field bordering the rear of the property. Set within a convenient location, the home is within easy reach of the well-regarded local primary school and the amenities of the neighbouring village of Crosby, including a shop, public house, and coffee shop.
The property also offers a rare and exciting feature, providing a front-row seat for the world-famous TT and MGP races, making it particularly appealing to motorsport enthusiasts.
The accommodation is well presented throughout and offers a flexible layout ideal for modern family living. A standout feature is the impressive 30ft open-plan living and dining room, complete with a log burner and a square opening leading through to a stylish modern kitchen extension featuring an island and breakfast bar. An additional family room, currently arranged as a home bar and hobbies room, further enhances the versatility of the living space.
There are three bedrooms, including a ground floor bedroom offering flexibility for guests or multi-generational living. The two first floor bedrooms benefit from useful eaves storage and there is a ground floor stylish shower room.
Externally, the property boasts an extensive driveway providing off-road parking for multiple vehicles, along with access to the integral garage. To the side of the property is a decking area with pergola, ideal for outdoor dining and entertaining, while the south-facing rear garden is mainly laid to lawn and enjoys an open outlook over the adjoining field, creating a peaceful and private outdoor space.
Inclusions All fitted floor coverings, blinds, curtains and light fittings
Appliances Double oven, 4 ring induction hob, dishwasher, washer machine and a fridge
Tenure Freehold
Rates Treasury tel -
Heating Oil
Windows uPVC and majority are triple glazed windows
- COUNCIL TAXA payment made to your local authority in order to pay for local services like schools, libraries, and refuse collection. The amount you pay depends on the value of the property.Read more about council Tax in our glossary page.
- Ask agent
- PARKINGDetails of how and where vehicles can be parked, and any associated costs.Read more about parking in our glossary page.
- Yes
- GARDENA property has access to an outdoor space, which could be private or shared.
- Yes
- ACCESSIBILITYHow a property has been adapted to meet the needs of vulnerable or disabled individuals.Read more about accessibility in our glossary page.
- Ask agent
Energy performance certificate - ask agent
Green Meadows, Main Road, Glen Vine
Add an important place to see how long it'd take to get there from our property listings.
__mins driving to your place
Get an instant, personalised result:
- Show sellers you’re serious
- Secure viewings faster with agents
- No impact on your credit score
Your mortgage
Notes
Staying secure when looking for property
Ensure you're up to date with our latest advice on how to avoid fraud or scams when looking for property online.
Visit our security centre to find out moreDisclaimer - Property reference 7114. The information displayed about this property comprises a property advertisement. Rightmove.co.uk makes no warranty as to the accuracy or completeness of the advertisement or any linked or associated information, and Rightmove has no control over the content. This property advertisement does not constitute property particulars. The information is provided and maintained by Garforth Gray, Isle of Man. Please contact the selling agent or developer directly to obtain any information which may be available under the terms of The Energy Performance of Buildings (Certificates and Inspections) (England and Wales) Regulations 2007 or the Home Report if in relation to a residential property in Scotland.
*This is the average speed from the provider with the fastest broadband package available at this postcode. The average speed displayed is based on the download speeds of at least 50% of customers at peak time (8pm to 10pm). Fibre/cable services at the postcode are subject to availability and may differ between properties within a postcode. Speeds can be affected by a range of technical and environmental factors. The speed at the property may be lower than that listed above. You can check the estimated speed and confirm availability to a property prior to purchasing on the broadband provider's website. Providers may increase charges. The information is provided and maintained by Decision Technologies Limited. **This is indicative only and based on a 2-person household with multiple devices and simultaneous usage. Broadband performance is affected by multiple factors including number of occupants and devices, simultaneous usage, router range etc. For more information speak to your broadband provider.
Map data ©OpenStreetMap contributors.






