
3 bedroom semi-detached house for sale
Fitch's Crescent, Maldon

- PROPERTY TYPE
Semi-Detached
- BEDROOMS
3
- BATHROOMS
1
- SIZE
Ask agent
- TENUREDescribes how you own a property. There are different types of tenure - freehold, leasehold, and commonhold.Read more about tenure in our glossary page.
Freehold
Key features
- Three Bedroom End Terrace House
- Large Conservatory
- Established Gardens with Summer House
- Walking Distance to Maldon Town
Description
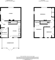
David Martin Estate Agents are delighted to offer for sale this well-presented three-bedroom end-terraced house in the popular town of Maldon, close to a wide range of shops, schools, and local amenities, and within walking distance of the Maldon Promenade. The property offers family accommodation comprising an entrance hall, lounge, kitchen with access to a large conservatory with double doors to the rear garden, and a ground-floor bathroom, with three bedrooms on the first floor, the principal bedroom featuring fitted wardrobes. Externally, the property benefits from off-road parking, an established enclosed rear garden, a decked covered seating area, and a large summer house with a bar. Viewing is highly recommended to fully appreciate the space, setting, and quality of finish this property offers.
ENTRANCE HALL Entrance to the property is made via a part glazed entrance door to side aspect to entrance hall, stairs rising to first floor landing, radiator, door to:
LOUNGE 15' 4" x 10' (4.67m x 3.05m) A spacious living room with feature fireplace, radiator, being well lit by windows to front and side aspect.
KITCHEN 10' 2" x 9' 6" (3.1m x 2.9m) Being comprehensively fitted with a range of units comprising of single sink unit inset to worksurface with drawers and cupboards under, matching range of eye level wall mounted units, gas hob with extractor over and electric oven inset to remain, storage cupboard, splash tiling, space for fridge/freezer, dishwasher and washing machine, window and half glazed door connecting to conservatory.
CONSERVATORY 12' 6" x 10' 2" (3.81m x 3.1m) Windows to rear and side aspect and fully glazed double doors to rear.
BATHROOM Stylish white suite comprising of pedestal wash hand basin, low flush WC, panel bath with shower over, heated towel rail, fully tiled, window to side aspect.
LANDING Door to:
BEDROOM ONE 15' x 10' 5" (4.57m x 3.18m) Windows to front and side aspect, radiator, fitted wardrobes.
BEDROOM TWO 10' 10" x 6' 10" (3.3m x 2.08m) Windows to rear and side aspect, radiator, fitted wardrobe.
BEDROOM THREE 8' 5" x 8' 0" (2.57m x 2.44m) Window to rear aspect, radiator, storage cupboard housing gas fired boiler.
OUTSIDE To the front of the property there is a driveway providing off road parking with side access to rear garden.
REAR GARDEN Rear garden being well enclosed by panel fencing the garden is mainly laid to lawn with flower beds and shrub borders, paved patio to the rear of the property, with additional covered raised decked seating area to the side of the garden, outside tap and light, storage shed situated to the bottom of the plot.
SUMMER HOUSE 18' 00" x 10' 08" (5.49m x 3.25m) Timber Garden room with power and light connected, laminate flooring, built in bar, windows and door to front.
AGENTS NOTE The vendors have advised us that the property is being sold Chain Free.
Brochures
(DM) 6 Page Portr...- COUNCIL TAXA payment made to your local authority in order to pay for local services like schools, libraries, and refuse collection. The amount you pay depends on the value of the property.Read more about council Tax in our glossary page.
- Band: B
- PARKINGDetails of how and where vehicles can be parked, and any associated costs.Read more about parking in our glossary page.
- Off street
- GARDENA property has access to an outdoor space, which could be private or shared.
- Yes
- ACCESSIBILITYHow a property has been adapted to meet the needs of vulnerable or disabled individuals.Read more about accessibility in our glossary page.
- Ask agent
Energy performance certificate - ask agent
Fitch's Crescent, Maldon
Add an important place to see how long it'd take to get there from our property listings.
__mins driving to your place
Get an instant, personalised result:
- Show sellers you’re serious
- Secure viewings faster with agents
- No impact on your credit score
Your mortgage
Notes
Staying secure when looking for property
Ensure you're up to date with our latest advice on how to avoid fraud or scams when looking for property online.
Visit our security centre to find out moreDisclaimer - Property reference 103487003547. The information displayed about this property comprises a property advertisement. Rightmove.co.uk makes no warranty as to the accuracy or completeness of the advertisement or any linked or associated information, and Rightmove has no control over the content. This property advertisement does not constitute property particulars. The information is provided and maintained by David Martin Estate Agents, Tiptree. Please contact the selling agent or developer directly to obtain any information which may be available under the terms of The Energy Performance of Buildings (Certificates and Inspections) (England and Wales) Regulations 2007 or the Home Report if in relation to a residential property in Scotland.
*This is the average speed from the provider with the fastest broadband package available at this postcode. The average speed displayed is based on the download speeds of at least 50% of customers at peak time (8pm to 10pm). Fibre/cable services at the postcode are subject to availability and may differ between properties within a postcode. Speeds can be affected by a range of technical and environmental factors. The speed at the property may be lower than that listed above. You can check the estimated speed and confirm availability to a property prior to purchasing on the broadband provider's website. Providers may increase charges. The information is provided and maintained by Decision Technologies Limited. **This is indicative only and based on a 2-person household with multiple devices and simultaneous usage. Broadband performance is affected by multiple factors including number of occupants and devices, simultaneous usage, router range etc. For more information speak to your broadband provider.
Map data ©OpenStreetMap contributors.





