
2 bedroom terraced house for sale
Ritchie Park, Johnstone, PA5

- PROPERTY TYPE
Terraced
- BEDROOMS
2
- BATHROOMS
1
- SIZE
Ask agent
- TENUREDescribes how you own a property. There are different types of tenure - freehold, leasehold, and commonhold.Read more about tenure in our glossary page.
Freehold
Key features
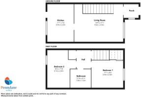
- Two good-sized bedrooms, offering flexibility for a home office, guest space or family living.
- Fresh décor throughout — recently refreshed walls and flooring create a contemporary, neutral backdrop to suit a range of furniture styles.
- Well-proportioned living space
- Kitchen area has a practical layout and offering good storage and workspace.
- Bathroom is neatly finished and in keeping with the overall fresh presentation.
- Positioned in a sought-after residential location with ease of access to local amenities, schools and transport links.
- Good sized rear garden
Description
534 Ritchie Park, Johnstone, PA5 8JP
Two-Bedroom Home | Freshly Decorated | Move-In Ready
Pennylane Homes are delighted to offer to the market this bright and spacious two-bedroom home nestled in the popular Ritchie Park development in Johnstone. Perfectly suited to first-time buyers, young professionals or those looking to downsize, this property offers a comfortable and freshly updated space ready to be made your own.
With its fresh décor and ready-to-go condition, this house represents a great opportunity for anyone looking for a move-in ready property in a well-connected and desirable area. The two-bedroom layout gives versatility for couples or small families. The excellent presentation ensures you can simply bring your furniture and settle in without the need for major works. The property further benefits from a good sized rear garden.
Location & Lifestyle
Located on a quiet residential street, this property enjoys the benefit of a friendly community feel while being within easy reach of Johnstone town centre and its range of shops, cafés and services. Good transport links make commuting to nearby centres straightforward. Green spaces and local schools are also well served in the area.
Don’t miss the chance to view this charming home. Contact us to arrange a viewing and see for yourself the fresh feel and thoughtful presentation of this property. With presentation like this, we expect a strong interest, so early viewing is recommended.
Please note: All information has been provided to the best of our knowledge and any prospective purchaser should satisfy themselves as to the property’s condition, layout and furnishings.
EPC Rating: C
- COUNCIL TAXA payment made to your local authority in order to pay for local services like schools, libraries, and refuse collection. The amount you pay depends on the value of the property.Read more about council Tax in our glossary page.
- Band: C
- PARKINGDetails of how and where vehicles can be parked, and any associated costs.Read more about parking in our glossary page.
- Ask agent
- GARDENA property has access to an outdoor space, which could be private or shared.
- Yes
- ACCESSIBILITYHow a property has been adapted to meet the needs of vulnerable or disabled individuals.Read more about accessibility in our glossary page.
- Ask agent
Energy performance certificate - ask agent
Ritchie Park, Johnstone, PA5
Add an important place to see how long it'd take to get there from our property listings.
__mins driving to your place
Get an instant, personalised result:
- Show sellers you’re serious
- Secure viewings faster with agents
- No impact on your credit score
Your mortgage
Notes
Staying secure when looking for property
Ensure you're up to date with our latest advice on how to avoid fraud or scams when looking for property online.
Visit our security centre to find out moreDisclaimer - Property reference e5e0db6d-cbef-4fc9-96ea-73de66c8eb06. The information displayed about this property comprises a property advertisement. Rightmove.co.uk makes no warranty as to the accuracy or completeness of the advertisement or any linked or associated information, and Rightmove has no control over the content. This property advertisement does not constitute property particulars. The information is provided and maintained by Penny Lane Homes Ltd, Johnstone. Please contact the selling agent or developer directly to obtain any information which may be available under the terms of The Energy Performance of Buildings (Certificates and Inspections) (England and Wales) Regulations 2007 or the Home Report if in relation to a residential property in Scotland.
*This is the average speed from the provider with the fastest broadband package available at this postcode. The average speed displayed is based on the download speeds of at least 50% of customers at peak time (8pm to 10pm). Fibre/cable services at the postcode are subject to availability and may differ between properties within a postcode. Speeds can be affected by a range of technical and environmental factors. The speed at the property may be lower than that listed above. You can check the estimated speed and confirm availability to a property prior to purchasing on the broadband provider's website. Providers may increase charges. The information is provided and maintained by Decision Technologies Limited. **This is indicative only and based on a 2-person household with multiple devices and simultaneous usage. Broadband performance is affected by multiple factors including number of occupants and devices, simultaneous usage, router range etc. For more information speak to your broadband provider.
Map data ©OpenStreetMap contributors.





