
3 bedroom detached house for sale
Tennis Court Road, Paulton

- PROPERTY TYPE
Detached
- BEDROOMS
3
- BATHROOMS
1
- SIZE
Ask agent
- TENUREDescribes how you own a property. There are different types of tenure - freehold, leasehold, and commonhold.Read more about tenure in our glossary page.
Freehold
Key features
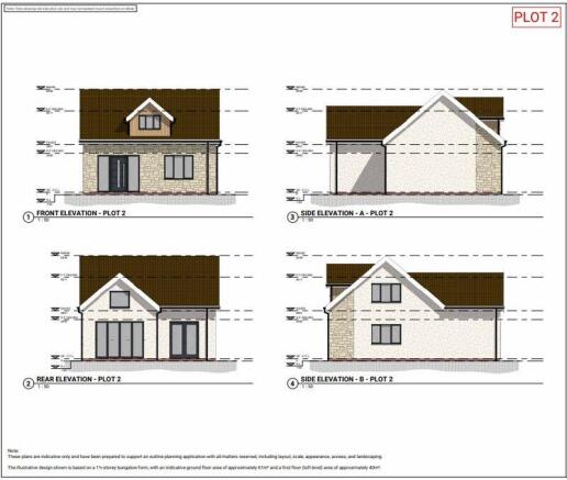
- Outline planning permission granted for two detached dwellings
- 1950's detached bungalow with only one owner from its build
- Set on a large corner plot with untended gardens
- Bungalow requiring either significant renovation or demolition
- Offered for sale with no chain
Description
This detached 1950's built bungalow offers either a significant renovation project for a prospective buyer or also has had outline planning permission granted for the erection of two detached dwellings on the plot after the demolition of the existing property. The bungalow itself needs full renovation, including some likely structural works but has good size accommodation and large untended gardens surrounding the property and a garage.
For further details regarding the outline planning permission please visit the BANES planning portal with the reference number. 25/02592/OUT. All appointments are strictly to be arranged with the selling agent.
Tennis Court Road is situated on the southern outskirts of the village and is close to open countryside. A popular, well regarded Infant and Primary school, swimming pool and village park/recreation areas are a five minute walk and the village centre with a good selection of local shops is a ten minute walk. Bath city centre is 10 miles away and Bristol city centre is 14 miles, making this a great commuter choice. Public footpaths and countryside walks are also right on the doorstep.
Brochures
Property BrochureFull Details- COUNCIL TAXA payment made to your local authority in order to pay for local services like schools, libraries, and refuse collection. The amount you pay depends on the value of the property.Read more about council Tax in our glossary page.
- Band: D
- PARKINGDetails of how and where vehicles can be parked, and any associated costs.Read more about parking in our glossary page.
- Yes
- GARDENA property has access to an outdoor space, which could be private or shared.
- Yes
- ACCESSIBILITYHow a property has been adapted to meet the needs of vulnerable or disabled individuals.Read more about accessibility in our glossary page.
- Ask agent
Tennis Court Road, Paulton
Add an important place to see how long it'd take to get there from our property listings.
__mins driving to your place
Get an instant, personalised result:
- Show sellers you’re serious
- Secure viewings faster with agents
- No impact on your credit score
About Sam Chivers Estate Agents, Midsomer Norton
Unit 1, Radstock Road, Midsomer Norton, Radstock, BA3 2AA


Your mortgage
Notes
Staying secure when looking for property
Ensure you're up to date with our latest advice on how to avoid fraud or scams when looking for property online.
Visit our security centre to find out moreDisclaimer - Property reference 12223202. The information displayed about this property comprises a property advertisement. Rightmove.co.uk makes no warranty as to the accuracy or completeness of the advertisement or any linked or associated information, and Rightmove has no control over the content. This property advertisement does not constitute property particulars. The information is provided and maintained by Sam Chivers Estate Agents, Midsomer Norton. Please contact the selling agent or developer directly to obtain any information which may be available under the terms of The Energy Performance of Buildings (Certificates and Inspections) (England and Wales) Regulations 2007 or the Home Report if in relation to a residential property in Scotland.
*This is the average speed from the provider with the fastest broadband package available at this postcode. The average speed displayed is based on the download speeds of at least 50% of customers at peak time (8pm to 10pm). Fibre/cable services at the postcode are subject to availability and may differ between properties within a postcode. Speeds can be affected by a range of technical and environmental factors. The speed at the property may be lower than that listed above. You can check the estimated speed and confirm availability to a property prior to purchasing on the broadband provider's website. Providers may increase charges. The information is provided and maintained by Decision Technologies Limited. **This is indicative only and based on a 2-person household with multiple devices and simultaneous usage. Broadband performance is affected by multiple factors including number of occupants and devices, simultaneous usage, router range etc. For more information speak to your broadband provider.
Map data ©OpenStreetMap contributors.





