St. Catherines Drive, Faversham, Kent, ME13
- PROPERTY TYPE
Land
- SIZE
Ask agent
Key features
- Detailed Planning for Three Detached Houses
- Level and Cleared site
- Popular Town of Faversham
- Set in an Established Residential Area
- Efficient Detached Family Homes
- Gardens and Parking
- Suitable for Self-Build or Commercial Build
- SAMM’s Payment Made
Description
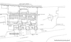
An excellent development opportunity comprising a parcel of land with planning permission granted for three well-proportioned, detached houses.
Located in this popular residential area of Faversham, amongst well-kept family homes, is this surplus garden site with detailed planning permission. Granted under ref 25/500593 by Swale District Council the permission allows for three detached self-build homes, with all the necessary SAMMS payments already made to allow this consent to be implemented. However, there is scope to also develop this site as a commercial development project subject to discussions over CIL and Ecological obligations.
Comprising of two house types both designs allow for 3 x beds, 2 x bathrooms and well laid out family living spaces. Every house will enjoy surface parking and sensible rear gardens within the established site. With efficient sizes and established resale values in the immediate area the site also has the benefit of being within an established built-up area; so services should be readily available (subject to suitable checks being made by the purchaser).
Planning reference - 25/500593/FULL
Erection of 3 no. 3-bedroom detached houses with parking and access.
Plot 1 - 1,240 sq.ft
Plot 2 - 1,440 sq.ft
Plot 3 - 1,440 sq.ft
Location Summary
Faversham is a charming historic market town in Kent, known for its picturesque streets, independent shops, and rich maritime and brewing heritage. Nestled close to the Kent Downs and the Swale estuary, it offers beautiful countryside walks alongside excellent rail links to London. With a vibrant community, popular weekly market, and a great selection of cafés, pubs, and schools, Faversham combines traditional character with modern convenience.
Identification checks
Should a purchaser(s) have an offer accepted on a property marketed by Miles & Barr, they will need to undertake an identification check. This is done to meet our obligation under Anti Money Laundering Regulations (AML) and is a legal requirement. We use a specialist third party service to verify your identity. The cost of these checks is £60 inc. VAT per purchase, which is paid in advance, when an offer is agreed and prior to a sales memorandum being issued. This charge is non-refundable under any circumstances.
St. Catherines Drive, Faversham, Kent, ME13
NEAREST STATIONS
Distances are straight line measurements from the centre of the postcode- Faversham Station0.2 miles
- Selling Station3.1 miles
- Teynham Station4.0 miles
Notes
Disclaimer - Property reference MFS260022. The information displayed about this property comprises a property advertisement. Rightmove.co.uk makes no warranty as to the accuracy or completeness of the advertisement or any linked or associated information, and Rightmove has no control over the content. This property advertisement does not constitute property particulars. The information is provided and maintained by Miles & Barr, Faversham. Please contact the selling agent or developer directly to obtain any information which may be available under the terms of The Energy Performance of Buildings (Certificates and Inspections) (England and Wales) Regulations 2007 or the Home Report if in relation to a residential property in Scotland.
Map data ©OpenStreetMap contributors.





