
3 bedroom detached house for sale
Pippin Place, Kingsbridge

- PROPERTY TYPE
Detached
- BEDROOMS
3
- BATHROOMS
2
- SIZE
Ask agent
- TENUREDescribes how you own a property. There are different types of tenure - freehold, leasehold, and commonhold.Read more about tenure in our glossary page.
Freehold
Key features
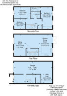
- Newly built detached 3-storey property
- Superb open plan kitchen/dining/sitting room
- Contemporary kitchen with numerous integrated appliances
- Tandem garage with utility area and cloakroom
- Private rear garden and patio
- Off road parking for 2/3 vehicles
- Countryside views
Description
Located above town on the new Applegate Development is this spacious detached property with accommodation arranged over 3 floors. The house boasts a range of appealing features, has a well-maintained neutral interior, is bright, clean, and modern throughout, offering a homely and stylish living space.
The accommodation comprises tandem garage with utility area and cloakroom on the ground floor. A superb open plan kitchen/dining/sitting room on the first floor and 3 bedrooms, a family bathroom and ensuite shower room on the first floor.
There is off-street parking for a couple of vehicles in front of the integral garage as well as a charming lawned rear garden and patio area perfect for outdoor relaxation.
The property also benefits from lovely country views and is just a short drive or walk into town adding to its overall appeal.
Situation
The friendly market town of Kingsbridge provides a good range of shops, restaurants/pubs, 2 supermarkets, cinema, leisure centre with indoor swimming, numerous sports and fitness facilities, medical centre, community hospital, library and churches, primary school and a community college. Close by there are boat moorings, quays and slipways at the head of the estuary. The area has an abundance of sandy beaches and coastal and countryside walks, with the popular sailing towns of Dartmouth and Salcombe within easy reach.
Brochures
6 Pippin Place - Brochure- COUNCIL TAXA payment made to your local authority in order to pay for local services like schools, libraries, and refuse collection. The amount you pay depends on the value of the property.Read more about council Tax in our glossary page.
- Band: E
- PARKINGDetails of how and where vehicles can be parked, and any associated costs.Read more about parking in our glossary page.
- Yes
- GARDENA property has access to an outdoor space, which could be private or shared.
- Yes
- ACCESSIBILITYHow a property has been adapted to meet the needs of vulnerable or disabled individuals.Read more about accessibility in our glossary page.
- Ask agent
Pippin Place, Kingsbridge
Add an important place to see how long it'd take to get there from our property listings.
__mins driving to your place
Get an instant, personalised result:
- Show sellers you’re serious
- Secure viewings faster with agents
- No impact on your credit score
Your mortgage
Notes
Staying secure when looking for property
Ensure you're up to date with our latest advice on how to avoid fraud or scams when looking for property online.
Visit our security centre to find out moreDisclaimer - Property reference XXP-89271611. The information displayed about this property comprises a property advertisement. Rightmove.co.uk makes no warranty as to the accuracy or completeness of the advertisement or any linked or associated information, and Rightmove has no control over the content. This property advertisement does not constitute property particulars. The information is provided and maintained by Marchand Petit, Kingsbridge. Please contact the selling agent or developer directly to obtain any information which may be available under the terms of The Energy Performance of Buildings (Certificates and Inspections) (England and Wales) Regulations 2007 or the Home Report if in relation to a residential property in Scotland.
*This is the average speed from the provider with the fastest broadband package available at this postcode. The average speed displayed is based on the download speeds of at least 50% of customers at peak time (8pm to 10pm). Fibre/cable services at the postcode are subject to availability and may differ between properties within a postcode. Speeds can be affected by a range of technical and environmental factors. The speed at the property may be lower than that listed above. You can check the estimated speed and confirm availability to a property prior to purchasing on the broadband provider's website. Providers may increase charges. The information is provided and maintained by Decision Technologies Limited. **This is indicative only and based on a 2-person household with multiple devices and simultaneous usage. Broadband performance is affected by multiple factors including number of occupants and devices, simultaneous usage, router range etc. For more information speak to your broadband provider.
Map data ©OpenStreetMap contributors.





