
4 bedroom detached house for sale
Trentham Fields, New Inn Lane, ST4

- PROPERTY TYPE
Detached
- BEDROOMS
4
- BATHROOMS
3
- SIZE
1,575 sq ft
146 sq m
- TENUREDescribes how you own a property. There are different types of tenure - freehold, leasehold, and commonhold.Read more about tenure in our glossary page.
Freehold
Key features
- Beautifully balanced four-bedroom detached home with warm, inviting living spaces
- Elegant kitchen/family room opening onto the garden via bifold doors
- Formal dining room and spacious lounge for versatile, relaxed living
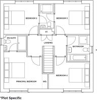
- Main bedroom with en-suite; Jack & Jill bathroom shared between bedrooms two and three
- Detached double garage and generous garden ideal for family life and entertaining
Description
Birch is the very essence of welcoming family living, refined yet relaxed, beautifully proportioned, and designed to nurture the everyday with a touch of elegance.
The ground floor is a celebration of togetherness. The expansive kitchen and family area forms a natural gathering point, where cooking, conversation and quiet moments blend effortlessly. Bifold doors open the space to the outdoors, letting the home breathe and inviting fresh air and sunshine inside.
A formal dining room offers an elegant backdrop for celebrations and long, memorable evenings with family and friends. Meanwhile, the separate lounge provides a tranquil escape, a place to unwind, to read, to rest.
A utility room, cloakroom and generous storage allow the home’s function to support its beauty.
Upstairs, the main bedroom offers a peaceful haven, complete with a stylish en-suite and fitted wardrobes. Bedrooms two and three share a Jack & Jill shower room, a thoughtful, family-friendly detail and the fourth double bedroom provides further flexibility.
The main bathroom, with both bath and separate shower, ensures comfort for busy mornings and restful evenings alike.
With its detached double garage, landscaped garden and sustainable build qualities, Birch is a home that blends ease with aspiration, a place designed not just for living, but for living well.
Soft, warm, and wonderfully adaptable — Birch is a home that settles into your life as if it’s always been part of it.
Garden
Enclosed rear garden and front garden - Orientation will vary on plot
Parking - Driveway
Driveway Parking and a double garage with space for at least 2 vehicles
- COUNCIL TAXA payment made to your local authority in order to pay for local services like schools, libraries, and refuse collection. The amount you pay depends on the value of the property.Read more about council Tax in our glossary page.
- Ask agent
- PARKINGDetails of how and where vehicles can be parked, and any associated costs.Read more about parking in our glossary page.
- Driveway
- GARDENA property has access to an outdoor space, which could be private or shared.
- Private garden
- ACCESSIBILITYHow a property has been adapted to meet the needs of vulnerable or disabled individuals.Read more about accessibility in our glossary page.
- Ask agent
Energy performance certificate - ask agent
Trentham Fields, New Inn Lane, ST4
Add an important place to see how long it'd take to get there from our property listings.
__mins driving to your place
Get an instant, personalised result:
- Show sellers you’re serious
- Secure viewings faster with agents
- No impact on your credit score

Your mortgage
Notes
Staying secure when looking for property
Ensure you're up to date with our latest advice on how to avoid fraud or scams when looking for property online.
Visit our security centre to find out moreDisclaimer - Property reference b7310fd3-4f15-47bd-8ba0-5b4c7dde8e1b. The information displayed about this property comprises a property advertisement. Rightmove.co.uk makes no warranty as to the accuracy or completeness of the advertisement or any linked or associated information, and Rightmove has no control over the content. This property advertisement does not constitute property particulars. The information is provided and maintained by James Du Pavey, Stone. Please contact the selling agent or developer directly to obtain any information which may be available under the terms of The Energy Performance of Buildings (Certificates and Inspections) (England and Wales) Regulations 2007 or the Home Report if in relation to a residential property in Scotland.
*This is the average speed from the provider with the fastest broadband package available at this postcode. The average speed displayed is based on the download speeds of at least 50% of customers at peak time (8pm to 10pm). Fibre/cable services at the postcode are subject to availability and may differ between properties within a postcode. Speeds can be affected by a range of technical and environmental factors. The speed at the property may be lower than that listed above. You can check the estimated speed and confirm availability to a property prior to purchasing on the broadband provider's website. Providers may increase charges. The information is provided and maintained by Decision Technologies Limited. **This is indicative only and based on a 2-person household with multiple devices and simultaneous usage. Broadband performance is affected by multiple factors including number of occupants and devices, simultaneous usage, router range etc. For more information speak to your broadband provider.
Map data ©OpenStreetMap contributors.






