
3 bedroom terraced house for sale
Priory Road, Ramsgate

- PROPERTY TYPE
Terraced
- BEDROOMS
3
- BATHROOMS
1
- SIZE
Ask agent
- TENUREDescribes how you own a property. There are different types of tenure - freehold, leasehold, and commonhold.Read more about tenure in our glossary page.
Freehold
Key features
- Terraced house
- Three bedrooms
- Council tax band: b
- Westcliff area
- Close to bus routes
- Close to shops
- Add your own stamp
- Architectural features
- Epc rating: e
- Freehold
Description
The property offers a flexible and well-proportioned layout, including a downstairs office, which could easily be used as a ground-floor bedroom if required, making it ideal for a range of buyers and lifestyles. The accommodation is generous throughout and retains a number of beautiful original period features, adding character and charm, while also providing a blank canvas for a purchaser to personalise and make their own.
Upstairs, there are three bedrooms along with a family bathroom, while to the rear of the property is a mostly lawned garden, perfect for relaxing, entertaining, or family use.
Ideally positioned, the home is just a short distance from local shops, a well-regarded local pub, and bus routes, with the added benefit of being close to the scenic promenade walks of Ramsgate Harbour and Westcliff coastline.
This property would suit a first-time buyer, growing family, or anyone looking for a character home in a convenient and desirable location.
An early viewing is highly recommended to fully appreciate the space, flexibility, and potential on offer.
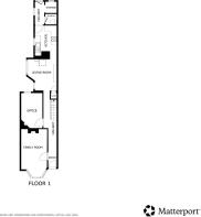
Entrance
Via front door into;
Hallway
Wooden floor boards, skirting, radiator, dado rails.
Lounge
16'06 x 9'0 (5.03m x 2.74m)
Bay window to front, wooden floor boards, original marble fireplace, radiator, power points, meter cupboard.
Office Room
11'11 x 7'02 (3.63m x 2.18m)
Window to rear, laminate flooring, skirting, power points, radiator.
Dining Room
13'0 x 10'0 (3.96m x 3.05m)
Windows to side, skirting, cupboards, power points, wooden floor boards, access to under stair storage., radiator.
Kitchen
8'10 x 7'07 (2.69m x 2.31m)
Sash windows to side, space and plumbing for washing machine, integrated oven, four burner gas hob, tiled splash backs, tiled flooring, stainless steel sink with mixer taps, power points, radiator.
Utility Area
7'03 x 3'05 (2.21m x 1.04m)
Tiled flooring, frosted window to side.
Downstairs Toilet
4'0 x 3'03 (1.22m x 0.99m)
Tiled flooring, low level w/c, sink with mixers taps.
Storage Room
3'07 x 3'10 (1.09m x 1.17m)
Window to rear.
Stairs To First Floor
Stairs leading to;
Landing
Storage cupboard. Wooden floor boards.
Separate Toilet
4'07 x 2'11 (1.4m x 0.89m)
Frosted window to side. Low level W/C. Tiled flooring.
Bathroom
8'03 x 4'05 (2.51m x 1.35m)
Frosted window to side, bath with shower attachment's over head, tiled flooring, radiator, sink with taps.
Bedroom Three
10'0 x 7'04 (3.05m x 2.24m)
Window to rear, carpeted, radiator, power points.
Bedroom Two
12'0 x 7'02 (3.66m x 2.18m)
Window to rear. Carpeted, skirting, power points, fireplace.
Bedroom One
Bay window to front, wooden floor boards, power points, skirting, fireplace.
Front Garden
Courtyard area ideal for storage of bins.
Rear Garden
Mostly laid to lawn. Gate to rear.
Brochures
Full Property Details- COUNCIL TAXA payment made to your local authority in order to pay for local services like schools, libraries, and refuse collection. The amount you pay depends on the value of the property.Read more about council Tax in our glossary page.
- Ask agent
- PARKINGDetails of how and where vehicles can be parked, and any associated costs.Read more about parking in our glossary page.
- Ask agent
- GARDENA property has access to an outdoor space, which could be private or shared.
- Yes
- ACCESSIBILITYHow a property has been adapted to meet the needs of vulnerable or disabled individuals.Read more about accessibility in our glossary page.
- Ask agent
Priory Road, Ramsgate
Add an important place to see how long it'd take to get there from our property listings.
__mins driving to your place
Get an instant, personalised result:
- Show sellers you’re serious
- Secure viewings faster with agents
- No impact on your credit score
Your mortgage
Notes
Staying secure when looking for property
Ensure you're up to date with our latest advice on how to avoid fraud or scams when looking for property online.
Visit our security centre to find out moreDisclaimer - Property reference COOKEANDCO_6983. The information displayed about this property comprises a property advertisement. Rightmove.co.uk makes no warranty as to the accuracy or completeness of the advertisement or any linked or associated information, and Rightmove has no control over the content. This property advertisement does not constitute property particulars. The information is provided and maintained by Cooke & Co, Broadstairs. Please contact the selling agent or developer directly to obtain any information which may be available under the terms of The Energy Performance of Buildings (Certificates and Inspections) (England and Wales) Regulations 2007 or the Home Report if in relation to a residential property in Scotland.
*This is the average speed from the provider with the fastest broadband package available at this postcode. The average speed displayed is based on the download speeds of at least 50% of customers at peak time (8pm to 10pm). Fibre/cable services at the postcode are subject to availability and may differ between properties within a postcode. Speeds can be affected by a range of technical and environmental factors. The speed at the property may be lower than that listed above. You can check the estimated speed and confirm availability to a property prior to purchasing on the broadband provider's website. Providers may increase charges. The information is provided and maintained by Decision Technologies Limited. **This is indicative only and based on a 2-person household with multiple devices and simultaneous usage. Broadband performance is affected by multiple factors including number of occupants and devices, simultaneous usage, router range etc. For more information speak to your broadband provider.
Map data ©OpenStreetMap contributors.









