Land Adjacent to Timbers Lodge, Ashtead, Surrey
- PROPERTY TYPE
Plot
- SIZE
12,800 sq ft
1,189 sq m
Key features
- Sought After Location
- Development Opportunity - Planning Approved
- 4 x Semi Detached Homes
- Site Area 0.30 Acre
Description
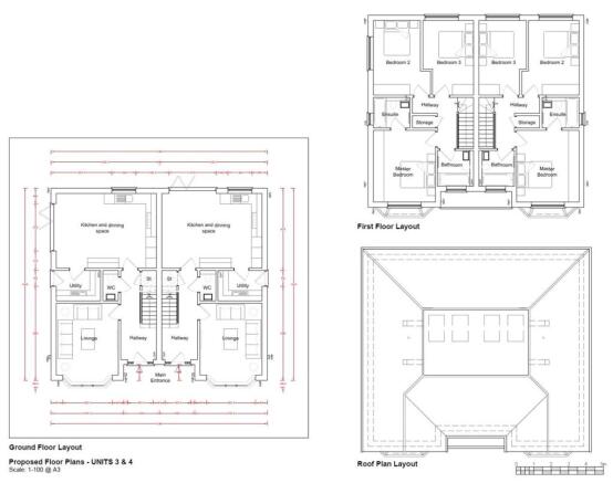
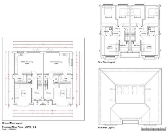
Freehold land adjacent to Timbers Lodge, situated just of Leatherhead Road in Ashtead, with planning permission to construct four homes.
The site currently forms part of the grounds for Timbers Lodge, and will be sold as a separate title, extending to approx. 0.30 acre. Planning is approved for, two pairs of semi detached properties, each measuring 1,260 sq.ft over two floors. Total GIA 5,040 sq.ft.
Positioned on the sought-after Ottways Lane/Leatherhead junction in the heart of Ashtead, this site offers an exceptional opportunity for developers seeking a prime Surrey location with strong demand for high-quality homes. Ashtead is an established, affluent village with excellent schools, extensive green spaces and fast commuter connections into London, making it highly desirable for family buyers and professionals alike. The area consistently achieves robust sales values, particularly for premium residential schemes, ensuring strong market absorption and attractive exit potential for well-designed developments. scl-land
Brochures
Land Adjacent to Timbers Lodge, Ashtead, SurreyBrochureLand Adjacent to Timbers Lodge, Ashtead, Surrey
NEAREST STATIONS
Distances are straight line measurements from the centre of the postcode- Ashtead Station0.8 miles
- Leatherhead Station1.4 miles
- Epsom Station2.4 miles
Notes
Disclaimer - Property reference 34454907. The information displayed about this property comprises a property advertisement. Rightmove.co.uk makes no warranty as to the accuracy or completeness of the advertisement or any linked or associated information, and Rightmove has no control over the content. This property advertisement does not constitute property particulars. The information is provided and maintained by Shaw & Co, Heston. Please contact the selling agent or developer directly to obtain any information which may be available under the terms of The Energy Performance of Buildings (Certificates and Inspections) (England and Wales) Regulations 2007 or the Home Report if in relation to a residential property in Scotland.
Map data ©OpenStreetMap contributors.




