Leisure facility for sale
47-49 Dorset Road, London, SW8 1EX
- SIZE AVAILABLE
6,490 sq ft
603 sq m
- SECTOR
Leisure facility for sale
- USE CLASSUse class orders: sui_generis_1
sui_generis_1
Key features
- Self-contained Detached Freehold building - ‘Island Site’.
- Freehold Sale £2,000,000 – on the basis of Vacant Possession
- Prominent Return frontage onto Dorset Road with vehicular access
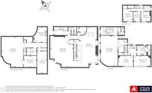
- Total GIA Building Area - 6490 sq ft – configured across Basement, Ground, First and Second Floors
- Mixed class use- sui generis & C3 residential
- Self-contained commercial building with open-plan areas and ancillary rooms
- Significant development potential, including scope for additional floors (STP)
- Suitable for a wide range of uses, including community, office, leisure, medical, educational & residential redevelopment (STP)
Description
The property comprises a self-contained freehold building arranged over Basement, Ground, First and Second Floors. Historically a public house and more recently used for community, event and function-room purposes, the building is ideal for owner occupiers, investors and developers. The self contained detached building occupies a prominent corner plot, benefitting from generous site depth, an extensive footprint and strong frontage visibility. The internal layout and overall structure make the building suitable for a wide variety of commercial and social uses. Given the building footprint and existing built form, the property offers development potential.
Basement: 1,636 sq ft – Used as kitchen, storage, ancillary rooms, plant and service areas.
Ground Floor: 1,937 sq ft - Open-plan hall, lobby and bar area with separate male and female toilets.
First Floor: 1,496 sq ft - Function room/hall, terrace, kitchen & living room with an additional W/C.
Second Floor: 517 sq ft – Living accommodation.
Gated ground floor external area: 904 sq ft - Secure external area suitable for leisure use, deliveries & parking.
Total Site Area : 6490 sq ft
Location
The property offers excellent connectivity being within just a 10 minute walk of both Oval and Nine Elms stations, with numerous bus routes serving the area with connections to Vauxhall, Clapham, Stockwell, and Nine Elms.
Located within a predominantly residential area, 47–49 Dorset Road is on the junction of on Dorset Road & Meadow Road. Dorset Road connects to the A3 (Clapham Road).
Energy Performance Certificates
EPCBrochures
47-49 Dorset Road, London, SW8 1EX
NEAREST STATIONS
Distances are straight line measurements from the centre of the postcode- Nine Elms Station0.3 miles
- Oval Station0.4 miles
- Vauxhall Station0.4 miles
Notes
Disclaimer - Property reference 349834-1. The information displayed about this property comprises a property advertisement. Rightmove.co.uk makes no warranty as to the accuracy or completeness of the advertisement or any linked or associated information, and Rightmove has no control over the content. This property advertisement does not constitute property particulars. The information is provided and maintained by Stirling Ackroyd, Commercial. Please contact the selling agent or developer directly to obtain any information which may be available under the terms of The Energy Performance of Buildings (Certificates and Inspections) (England and Wales) Regulations 2007 or the Home Report if in relation to a residential property in Scotland.
Map data ©OpenStreetMap contributors.






