Crescent Road, Woolwich, London, SE18

- PROPERTY TYPE
Flat
- BEDROOMS
2
- BATHROOMS
1
- SIZE
Ask agent
Key features
- Victorian Conversion
- Two Bedrooms
- Ground Floor Flat
- Large Private Garden
- Gas Central Heating
- Double Glazed
- Close to Woolwich Rail Links
- No Forward Chain
Description
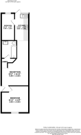
Charming Ground Floor 2-Bedroom Garden Apartment on Crescent Road, SE18
Guide Price £300,000 - £325,000 Leasehold. Nestled on the ever-popular Crescent Road in Plumstead SE18, this delightful two-bedroom ground floor apartment offers a stylish and practical living space within a beautifully converted period terraced house. Ideally suited for first-time buyers, downsizers, or investors alike, the property boasts a combination of character and modern comfort in a prime South East London location.
Step inside to find a spacious reception room with plenty of natural light, a well-equipped modern fitted kitchen, two well-proportioned double bedrooms, and a sleek three-piece family bathroom. One of the standout features of this home is its exceptionally large private rear garden, a rare find in London and perfect for outdoor dining, entertaining or simply relaxing in the warmer months.
Additional benefits include gas central heating, double glazing throughout, and generous storage options.
📍 Superb Location & Lifestyle
Situated just moments from both Plumstead Common and Woolwich Common, residents can enjoy an abundance of open green spaces, ideal for leisurely walks, weekend picnics or outdoor fitness. Crescent Road is a quiet residential street yet within easy reach of local shops, supermarkets, cafés and eateries.
🚆 Excellent Transport Connectivity
Woolwich Arsenal Station – offering DLR, National Rail and the Elizabeth Line for fast journeys to Canary Wharf, London Bridge, Liverpool Street, Tottenham Court Road, Heathrow, and beyond
Easy access to local bus routes, the Thames Clipper riverboat service, and Woolwich Ferry
Ideal for commuters and those working in Central London, Docklands or the City
Key Features:
Ground floor period conversion apartment
Two double bedrooms
Large private rear garden
Modern kitchen & bathroom
Gas central heating & double glazing
Close to parks, shops and amenities
Excellent transport links via DLR, Elizabeth Line & National Rail
Opportunities to secure a garden flat in this desirable location are rare. An early internal viewing is highly recommended to truly appreciate the space and lifestyle on offer.
📞 Contact us today to arrange your viewing and avoid missing out.
- COUNCIL TAXA payment made to your local authority in order to pay for local services like schools, libraries, and refuse collection. The amount you pay depends on the value of the property.Read more about council Tax in our glossary page.
- Band: B
- PARKINGDetails of how and where vehicles can be parked, and any associated costs.Read more about parking in our glossary page.
- Ask agent
- GARDENA property has access to an outdoor space, which could be private or shared.
- Yes
- ACCESSIBILITYHow a property has been adapted to meet the needs of vulnerable or disabled individuals.Read more about accessibility in our glossary page.
- Ask agent
Crescent Road, Woolwich, London, SE18
Add an important place to see how long it'd take to get there from our property listings.
__mins driving to your place
Get an instant, personalised result:
- Show sellers you’re serious
- Secure viewings faster with agents
- No impact on your credit score

Affordability
Notes
Staying secure when looking for property
Ensure you're up to date with our latest advice on how to avoid fraud or scams when looking for property online.
Visit our security centre to find out moreDisclaimer - Property reference 10730892. The information displayed about this property comprises a property advertisement. Rightmove.co.uk makes no warranty as to the accuracy or completeness of the advertisement or any linked or associated information, and Rightmove has no control over the content. This property advertisement does not constitute property particulars. The information is provided and maintained by hi-residential, South East London. Please contact the selling agent or developer directly to obtain any information which may be available under the terms of The Energy Performance of Buildings (Certificates and Inspections) (England and Wales) Regulations 2007 or the Home Report if in relation to a residential property in Scotland.
*This is the average speed from the provider with the fastest broadband package available at this postcode. The average speed displayed is based on the download speeds of at least 50% of customers at peak time (8pm to 10pm). Fibre/cable services at the postcode are subject to availability and may differ between properties within a postcode. Speeds can be affected by a range of technical and environmental factors. The speed at the property may be lower than that listed above. You can check the estimated speed and confirm availability to a property prior to purchasing on the broadband provider's website. Providers may increase charges. The information is provided and maintained by Decision Technologies Limited. **This is indicative only and based on a 2-person household with multiple devices and simultaneous usage. Broadband performance is affected by multiple factors including number of occupants and devices, simultaneous usage, router range etc. For more information speak to your broadband provider.
Map data ©OpenStreetMap contributors.




