
Burrs Road, Clacton-On-Sea

- PROPERTY TYPE
Semi-Detached Bungalow
- BEDROOMS
2
- BATHROOMS
1
- SIZE
Ask agent
- TENUREDescribes how you own a property. There are different types of tenure - freehold, leasehold, and commonhold.Read more about tenure in our glossary page.
Freehold
Key features
- Semi-Detached Bungalow
- Two Bedrooms
- Sun Room
- Off Road Parking
- Spacious Rear Garden
- Amenities Nearby
Description
Looking for a beautifully presented bungalow in the sought-after area of Great Clacton? This charming two-bedroom home offers generous living space, impressive outdoor areas, and ample off-road parking — perfect for comfortable, single-level living.
Step inside to discover a bright and welcoming interior, finished to a high standard throughout. The spacious kitchen/diner provides the ideal setting for family meals and entertaining, while the inviting living areas flow effortlessly into an additional sun room — a wonderful spot to relax and enjoy views of the garden all year round.
Outside, the property truly shines. The ample off-road parking ensures convenience for multiple vehicles, while the spacious rear garden offers fantastic potential for outdoor dining, gardening, or simply unwinding in a private setting. With well-proportioned bedrooms and a layout designed for both practicality and comfort, this bungalow is perfectly suited to downsizers, small families, or anyone seeking peaceful coastal living.
Homes in Great Clacton of this quality are always in demand. Contact us today to arrange your viewing and see everything this superb bungalow has to offer.
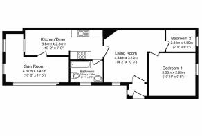
Lounge
14'0" x 13'0" (4.27m x 3.96m)
Kitchen
18'0" x 7'0" (5.49m x 2.13m)
Sun Room
15'0" x 12'0" (4.57m x 3.66m)
L - Shaped
Bedroom One
12'0" x 9'0" (3.66m x 2.74m)
Bedroom Two
7'0" x 5'0" (2.13m x 1.52m)
Shower Room
Disclaimer
haart Estate Agents also offer a professional, ARLA accredited Lettings and Management Service. If you are considering renting your property in order to purchase, are looking at buy to let or would like a free review of your current portfolio then please call the Lettings Branch Manager on the number shown above.
haart Estate Agents is the seller's agent for this property. Your conveyancer is legally responsible for ensuring any purchase agreement fully protects your position. We make detailed enquiries of the seller to ensure the information provided is as accurate as possible. Please inform us if you become aware of any information being inaccurate.
Brochures
Material InformationBrochure- COUNCIL TAXA payment made to your local authority in order to pay for local services like schools, libraries, and refuse collection. The amount you pay depends on the value of the property.Read more about council Tax in our glossary page.
- Ask agent
- PARKINGDetails of how and where vehicles can be parked, and any associated costs.Read more about parking in our glossary page.
- Yes
- GARDENA property has access to an outdoor space, which could be private or shared.
- Yes
- ACCESSIBILITYHow a property has been adapted to meet the needs of vulnerable or disabled individuals.Read more about accessibility in our glossary page.
- Ask agent
Burrs Road, Clacton-On-Sea
Add an important place to see how long it'd take to get there from our property listings.
__mins driving to your place
Get an instant, personalised result:
- Show sellers you’re serious
- Secure viewings faster with agents
- No impact on your credit score
Affordability
Notes
Staying secure when looking for property
Ensure you're up to date with our latest advice on how to avoid fraud or scams when looking for property online.
Visit our security centre to find out moreDisclaimer - Property reference 0022_HRT002221179. The information displayed about this property comprises a property advertisement. Rightmove.co.uk makes no warranty as to the accuracy or completeness of the advertisement or any linked or associated information, and Rightmove has no control over the content. This property advertisement does not constitute property particulars. The information is provided and maintained by haart, Clacton. Please contact the selling agent or developer directly to obtain any information which may be available under the terms of The Energy Performance of Buildings (Certificates and Inspections) (England and Wales) Regulations 2007 or the Home Report if in relation to a residential property in Scotland.
*This is the average speed from the provider with the fastest broadband package available at this postcode. The average speed displayed is based on the download speeds of at least 50% of customers at peak time (8pm to 10pm). Fibre/cable services at the postcode are subject to availability and may differ between properties within a postcode. Speeds can be affected by a range of technical and environmental factors. The speed at the property may be lower than that listed above. You can check the estimated speed and confirm availability to a property prior to purchasing on the broadband provider's website. Providers may increase charges. The information is provided and maintained by Decision Technologies Limited. **This is indicative only and based on a 2-person household with multiple devices and simultaneous usage. Broadband performance is affected by multiple factors including number of occupants and devices, simultaneous usage, router range etc. For more information speak to your broadband provider.
Map data ©OpenStreetMap contributors.






