
3 bedroom detached house for sale
Galloway Drive, Market Drayton, Shropshire

- PROPERTY TYPE
Detached
- BEDROOMS
3
- BATHROOMS
2
- SIZE
Ask agent
Key features
- Brand new Shared Ownership homes
- Up to £4,000 purchasing incentive^
- Parking
- Available immediately
- En suite
- Good travel connections
- Easy access to local amenities and town centre
Description
This brand new home is available to buy from as little as £116,000 with a 40% share!
Situated in the charming town of Market Drayton, the development emphasises sustainability and community, featuring green open spaces and a children's play area, all set within a 23-acre site. Each home is crafted to provide comfort and style, making Montgomery Place an ideal choice for those seeking a blend of countryside, tranquillity and contemporary living.
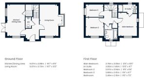
Built to ‘The Derwent’ design, this detached home features a large kitchen/diner room, a cloakroom and a separate living room. Upstairs there are three bedrooms (en suite to bedroom one) and a family bathroom. Externally is parking and a garden.
Local Area & Amenities
Market Drayton, nestled in Shropshire's picturesque countryside, is renowned for its rich history and vibrant community. The town hosts a traditional weekly market every Wednesday, a tradition dating back to 1245. Residents can enjoy the scenic Shropshire Union Canal, perfect for leisurely walks and cycling. The town is also famous for its gingerbread, a delicacy produced locally since the 18th century. Essential amenities, including shops, cafes, and healthcare facilities, are readily available, ensuring convenience for all residents.
Travel Connections
Montgomery Place offers excellent connectivity to surrounding towns and cities. The A53 provides direct routes to Stoke-on-Trent, Shrewsbury, and Newcastle-under-Lyme. While Market Drayton no longer has its own railway station, nearby stations in Whitchurch and Crewe offer regular services to major destinations, including Birmingham and Manchester. Local bus services further enhance accessibility, making commuting straightforward for residents.
PRICING & AFFORDABILITY
Approximate Size 962 sq ft
Full Market Value: £290,000
40% Share Price: £116,000 (rent £398.75pcm)
60% Share Price: £174,000 (rent £265.83pcm)
75% Share Price: £217,500 (rent £166.15pcm)
Minimum 5% Mortgage Deposit (40% share): £5,800
Approximate Service Charges: £73.18 pcm*
Shared Ownership Lease: 990 years
Council Tax Band: TBC
ELIGIBILITY
Shared Ownership gives first time buyers and those that do not currently own a home the opportunity to purchase a share in a new build or resales leasehold property. The purchaser pays a mortgage on the share they own and pays rent to a housing association on the remaining share. The combined mortgage and rent is usually less than you’d expect to pay if you bought a similar property outright although this is not a guarantee.
At Montgomery Place you can buy a minimum 40% share of your home (the maximum you can buy initially is 75%). When you’re ready, you can buy more shares until you own 100% of your home.
To be eligible for shared ownership you would need to meet the following criteria:
• Your annual household income does not exceed £80,000.
• You have a deposit of at least 5% of the share value
• You do not own another property or have your name on the deeds or a mortgage for a property worldwide.
• This will be your only residence.
• You are a permanent UK resident or have indefinite right to remain.
Please note the minimum share you can purchase can vary depending on your financial situation and you may be asked to purchase a larger share, should your personal circumstances permit.
^ Terms and conditions apply. Please speak to a sales representative for more information. Incentives can be altered or withdrawn at any time prior to exchange of contracts.
*Service charges are estimated and may subject to change. Rent and service charges will be reviewed annually by your housing provider, usually on 1st April each year.
**These photos are for information purposes only and may not represent a true likeness for the units being sold. They may have been taken from earlier phases or similar developments/house types and digitally furnished to represent how the home could be laid out; the final colours/appearance/specification may differ from the images and are not plot specific. We advise applicants to make their own investigations on future development in the area. We would suggest contacting the local authority for more information.
- COUNCIL TAXA payment made to your local authority in order to pay for local services like schools, libraries, and refuse collection. The amount you pay depends on the value of the property.Read more about council Tax in our glossary page.
- Band: TBC
- PARKINGDetails of how and where vehicles can be parked, and any associated costs.Read more about parking in our glossary page.
- Yes
- GARDENA property has access to an outdoor space, which could be private or shared.
- Yes
- ACCESSIBILITYHow a property has been adapted to meet the needs of vulnerable or disabled individuals.Read more about accessibility in our glossary page.
- Ask agent
Energy performance certificate - ask agent
Galloway Drive, Market Drayton, Shropshire
Add an important place to see how long it'd take to get there from our property listings.
__mins driving to your place
Get an instant, personalised result:
- Show sellers you’re serious
- Secure viewings faster with agents
- No impact on your credit score
Your mortgage
Notes
Staying secure when looking for property
Ensure you're up to date with our latest advice on how to avoid fraud or scams when looking for property online.
Visit our security centre to find out moreDisclaimer - Property reference SDO260145. The information displayed about this property comprises a property advertisement. Rightmove.co.uk makes no warranty as to the accuracy or completeness of the advertisement or any linked or associated information, and Rightmove has no control over the content. This property advertisement does not constitute property particulars. The information is provided and maintained by SOWN, Nationwide. Please contact the selling agent or developer directly to obtain any information which may be available under the terms of The Energy Performance of Buildings (Certificates and Inspections) (England and Wales) Regulations 2007 or the Home Report if in relation to a residential property in Scotland.
*This is the average speed from the provider with the fastest broadband package available at this postcode. The average speed displayed is based on the download speeds of at least 50% of customers at peak time (8pm to 10pm). Fibre/cable services at the postcode are subject to availability and may differ between properties within a postcode. Speeds can be affected by a range of technical and environmental factors. The speed at the property may be lower than that listed above. You can check the estimated speed and confirm availability to a property prior to purchasing on the broadband provider's website. Providers may increase charges. The information is provided and maintained by Decision Technologies Limited. **This is indicative only and based on a 2-person household with multiple devices and simultaneous usage. Broadband performance is affected by multiple factors including number of occupants and devices, simultaneous usage, router range etc. For more information speak to your broadband provider.
Map data ©OpenStreetMap contributors.





