
Land for sale
Beaconsfield Road, Tring, HP23
- PROPERTY TYPE
Land
- SIZE
11 sq ft
1 sq m
Description
KEY FEATURES:
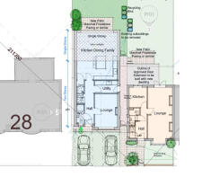
PLOT WITH PLANNING PERMISSION
• PLOT FOR STUNNING 3 BED DETACHED PROPERTY WITH FIRST FLOOR STUDY.
• THE NEW PROPERTY, CIRCA 147.5 M² OVER 3 FLOORS, OFFERS WELL-PLANNED ACCOMMODATION, INCLUDING:
• GROUND FLOOR: SEPARATE LOUNGE, LARGE KITCHEN/DINING ROOM, SEPARATE UTILITY ROOM, AND A WC.
• FIRST FLOOR: 2 DOUBLE BEDROOMS, INCLUDING BEDROOM 2 WITH AN EN SUITE, STUDY/BED 4, FAMILY BATHROOM.
• SECOND FLOOR: MASTER BEDROOM SUITE WITH EN SUITE BATH/SHOWER.
• THE PROPERTY ALSO BENEFITS FROM A LARGE LANDSCAPED GARDEN AND OFF ROAD PARKING.
ADDITIONAL NOTES:
• THE PROPERTY IS CURRENTLY TENANTED, AND ALL SITE VISITS MUST BE STRICTLY BY PRIOR ARRANGEMENT WITH THE AGENT.
Disclaimer
David Doyle Estate Agents (DD), for themselves and the vendors, give notice that: These particulars and floorplans are for general guidance only and do not form part of any offer or contract. All descriptions, dimensions, permissions, and other details are given in good faith but must be independently verified. Fixtures, fittings, services, plant and equipment noted were present at first inspection but have not been tested, and no warranty is given as to condition or suitability. Information on council tax, rates, or planning use is informal; purchasers or tenants must confirm with the Local Authority. No employee of DD has authority to make or give any representation or contract. DD accept no liability for loss arising from use of these particulars or from viewing the property. Prices are exclusive of VAT unless stated and are subject to contract. Some developments may have management charges; solicitors to confirm any liabilities.
Beaconsfield Road, Tring, HP23
NEAREST STATIONS
Distances are straight line measurements from the centre of the postcode- Tring Station2.3 miles
- Wendover Station3.8 miles
- Cheddington Station4.5 miles


Notes
Disclaimer - Property reference RX591887. The information displayed about this property comprises a property advertisement. Rightmove.co.uk makes no warranty as to the accuracy or completeness of the advertisement or any linked or associated information, and Rightmove has no control over the content. This property advertisement does not constitute property particulars. The information is provided and maintained by David Doyle Estate Agents, Boxmoor. Please contact the selling agent or developer directly to obtain any information which may be available under the terms of The Energy Performance of Buildings (Certificates and Inspections) (England and Wales) Regulations 2007 or the Home Report if in relation to a residential property in Scotland.
Map data ©OpenStreetMap contributors.







