
4 bedroom detached house for rent
Sandy Lane, Pamber Heath, RG26

Letting details
- Let available date:
- 08/04/2026
- Deposit:
- £4,609A deposit provides security for a landlord against damage, or unpaid rent by a tenant.Read more about deposit in our glossary page.
- Min. Tenancy:
- Ask agent How long the landlord offers to let the property for.Read more about tenancy length in our glossary page.
- Let type:
- Long term
- Furnish type:
- Unfurnished
- Council Tax:
- Ask agent
- PROPERTY TYPE
Detached
- BEDROOMS
4
- BATHROOMS
3
- SIZE
Ask agent
Key features
- Detached property
- Kitchen/dining room
- Large living room with patio doors leading to garden
- Study
- Utility room & cloakroom
- Master bedroom with walk in wardrobe and en-suite
- 3 Further double bedrooms one with en-suite
- Enclosed back garden with home office
- Driveway
- Outbuilding with bathroom and gym
Description
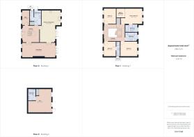
Belvoir are delighted to bring to the lettings market this extremely well presented detached house offering 4 bedrooms with additional annex potential.
The ground floor level comprises a hall, large lounge with feature fireplace and patio doors leading to the spacious landscaped rear garden, large kitchen/dining room with integrated appliances with include fridge, dishwasher, coffee machine, microwave oven and two further oven combinations and induction hob, utility room with ample storage space including integrated fridge, freezer, washing machine and water softener, downstairs cloakroom and fully furnished office/study.
The first floor comprises of a beautiful oak staircase leading to the spacious landing, master bedroom with air conditioning, walk-in wardrobe and en-suite shower room, one further double bedroom with en-suite shower room, two further double bedrooms and a large family bathroom.
The outside of the property comprises of a sizeable garden room, extra garden storage and private garden. To the front of the property the double garage has been converted to a gym with it's own bathroom, this could also be used as an annex if needed. There is large gravel driveway providing ample parking for approximately 5/6 cars.
Viewings highly recommended. EPC rating: B.
- COUNCIL TAXA payment made to your local authority in order to pay for local services like schools, libraries, and refuse collection. The amount you pay depends on the value of the property.Read more about council Tax in our glossary page.
- Band: F
- PARKINGDetails of how and where vehicles can be parked, and any associated costs.Read more about parking in our glossary page.
- Yes
- GARDENA property has access to an outdoor space, which could be private or shared.
- Private garden
- ACCESSIBILITYHow a property has been adapted to meet the needs of vulnerable or disabled individuals.Read more about accessibility in our glossary page.
- Ask agent
Sandy Lane, Pamber Heath, RG26
Add an important place to see how long it'd take to get there from our property listings.
__mins driving to your place
Notes
Staying secure when looking for property
Ensure you're up to date with our latest advice on how to avoid fraud or scams when looking for property online.
Visit our security centre to find out moreDisclaimer - Property reference P874. The information displayed about this property comprises a property advertisement. Rightmove.co.uk makes no warranty as to the accuracy or completeness of the advertisement or any linked or associated information, and Rightmove has no control over the content. This property advertisement does not constitute property particulars. The information is provided and maintained by Belvoir, Tadley. Please contact the selling agent or developer directly to obtain any information which may be available under the terms of The Energy Performance of Buildings (Certificates and Inspections) (England and Wales) Regulations 2007 or the Home Report if in relation to a residential property in Scotland.
*This is the average speed from the provider with the fastest broadband package available at this postcode. The average speed displayed is based on the download speeds of at least 50% of customers at peak time (8pm to 10pm). Fibre/cable services at the postcode are subject to availability and may differ between properties within a postcode. Speeds can be affected by a range of technical and environmental factors. The speed at the property may be lower than that listed above. You can check the estimated speed and confirm availability to a property prior to purchasing on the broadband provider's website. Providers may increase charges. The information is provided and maintained by Decision Technologies Limited. **This is indicative only and based on a 2-person household with multiple devices and simultaneous usage. Broadband performance is affected by multiple factors including number of occupants and devices, simultaneous usage, router range etc. For more information speak to your broadband provider.
Map data ©OpenStreetMap contributors.





