Jubilee Crescent, Needham Market

- PROPERTY TYPE
Apartment
- BEDROOMS
2
- BATHROOMS
2
- SIZE
Ask agent
Description
Needham Market:
Needham Market lies in the heart of Mid Suffolk between the towns of Bury St Edmunds and Ipswich. Facilities include butchers, bakers, post office, co-op supermarket and a number of individual shops. Needham Market also has a rail station with mainline connections to Ipswich and Stowmarket where in turn there are main line services to London Liverpool Street. The town also has the Needham Lake conservation area with a number of countryside walks and the county town of Ipswich is just eight miles away with all the social, shopping and leisure facilities.
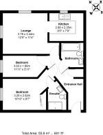
Entrance Hall:
Tiled floor, radiator and door to...
Living Room: (3.78 x 3.44 (12'4" x 11'3"))
Double glazed window to side, two radiators, built in cupboard space and opens to...
Kitchen: (2.88 x 2.35 (9'5" x 7'8"))
Stainless steel sink and drainer, work top splash back tiles, integrated oven and space for appliances.
Bedroom One: (3.29 x 2.62 (10'9" x 8'7"))
Double glazed window to side, radiator, built in wardrobe and blinds.
En-Suite:
Double shower cubicle, low level w/c and hand wash basin with vanity.
Bedroom Two: (3.63 x 1.80 (11'10" x 5'10"))
Double glazed window to side and radiator.
Bathroom:
Low level w/c, hand wash basin, paneled bath with shower over, spotlights and tiled walls.
AGENTS NOTE Ground rent - £364.72, Service charge £1471.96
- COUNCIL TAXA payment made to your local authority in order to pay for local services like schools, libraries, and refuse collection. The amount you pay depends on the value of the property.Read more about council Tax in our glossary page.
- Ask agent
- PARKINGDetails of how and where vehicles can be parked, and any associated costs.Read more about parking in our glossary page.
- Yes
- GARDENA property has access to an outdoor space, which could be private or shared.
- Ask agent
- ACCESSIBILITYHow a property has been adapted to meet the needs of vulnerable or disabled individuals.Read more about accessibility in our glossary page.
- Ask agent
Jubilee Crescent, Needham Market
Add an important place to see how long it'd take to get there from our property listings.
__mins driving to your place
Get an instant, personalised result:
- Show sellers you’re serious
- Secure viewings faster with agents
- No impact on your credit score
Your mortgage
Notes
Staying secure when looking for property
Ensure you're up to date with our latest advice on how to avoid fraud or scams when looking for property online.
Visit our security centre to find out moreDisclaimer - Property reference 100137004006. The information displayed about this property comprises a property advertisement. Rightmove.co.uk makes no warranty as to the accuracy or completeness of the advertisement or any linked or associated information, and Rightmove has no control over the content. This property advertisement does not constitute property particulars. The information is provided and maintained by Hamilton Smith, Needham Market. Please contact the selling agent or developer directly to obtain any information which may be available under the terms of The Energy Performance of Buildings (Certificates and Inspections) (England and Wales) Regulations 2007 or the Home Report if in relation to a residential property in Scotland.
*This is the average speed from the provider with the fastest broadband package available at this postcode. The average speed displayed is based on the download speeds of at least 50% of customers at peak time (8pm to 10pm). Fibre/cable services at the postcode are subject to availability and may differ between properties within a postcode. Speeds can be affected by a range of technical and environmental factors. The speed at the property may be lower than that listed above. You can check the estimated speed and confirm availability to a property prior to purchasing on the broadband provider's website. Providers may increase charges. The information is provided and maintained by Decision Technologies Limited. **This is indicative only and based on a 2-person household with multiple devices and simultaneous usage. Broadband performance is affected by multiple factors including number of occupants and devices, simultaneous usage, router range etc. For more information speak to your broadband provider.
Map data ©OpenStreetMap contributors.





