
Plot for sale
Bugbrooke, Northamptonshire
- PROPERTY TYPE
Plot
- SIZE
Ask agent
Key features
- Wonderful rural location
- Far reaching views
- Paddock land and spinney
- Existing agricultural buildings of iron stone and brick construction
- Designs in place for contemporary dwellings
Description
Description
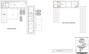
Prior approval was granted in 2024 to convert these attractive agricultural buildings into two separate dwellings. They are situated in a wonderful rural setting surrounded by open countryside and so benefit from far reaching views.
The larger, two storey barn is constructed mainly of ironstone and has the consent to be converted into a four bedroom dwelling with an open plan living space. To the east of this barn is a single storey, brick built barn with consent for a two bedroom dwelling, also with an open plan living space. In addition to the west of the iron stone barn is an open sided outbuilding which does feature within the prior approval plans.
Subject to revised planning consent, the barns might also offer an opportunity to create one single dwelling.
There are designated parking spaces with allocated gardens and patios. The total plot extends to circa 4.07 acres to include a paddock and spinney.
There is a public footpath that runs alongside the barns.
The planning reference is 2024 / 3670 / PA
Situation
The barns are located in a fantastic rural setting just outside the village of Bugbrooke. Located in the district of South Northamptonshire, the village is superbly located for rail and road transport links. Nearby is Long Buckby providing mainline train service to London in less than 60 minutes with the M1, M6 and A14 all within easy reach.
As well as the Grand Union canal meandering through the village, there is also a community centre with sports fields and the Millenium Green. There are three pubs – The Bakers Arms, The Five Bells and The Wharf as well as a community café. Also in this thriving village is a doctor’s surgery, pharmacy, post office, village shop, pet shop and various hairdressers and beauty parlours.
Further amenities with extensive shopping and leisure facilities can be found in Northampton, Towcester and Daventry.
Services
No services are currently connected.
The estimated fastest download speed currently achievable for the postcode area is around 1800 Mbps (data taken from checker.ofcom.org.uk on 07/01/2026). Actual service availability at the property or speeds received may be different.
We understand that the postcode area is likely to have current mobile coverage (data taken from checker.ofcom.org.uk on 07/01/2026). Please note that actual services available may be different depending on the particular circumstances, precise location and network outages.
Tenure
The property is to be sold freehold with vacant possession.
Method of sale
The property is offered for sale by Private Treaty method. However the vendor reserves the right to conclude the sale by an alternative method if required.
Local Authority
South Northamptonshire Council
Public rights of way, wayleaves and easements
The property is sold subject to all rights of way, wayleaves and easements whether or not they are defined in this brochure.
Planning
The selling agents will not provide advice/guidance on the planning history for the property/land. Interested parties are advised to make their own investigations. It is assumed that enquiries have been satisfied, prior to an offer being made.
Anti Money Laundering Regulations (AML)
In accordance with Anti Money Laundering Regulations (AML), we are required to request forms of identification and carry out due diligence on any parties connected to a successful offer. Should an offer be made on behalf of a business/company, AML due diligence will also be necessary. Proof/source of funding must be supplied, prior to offer acceptance.
Plans and boundaries
The plans within these particulars are based on Ordnance Survey data and provided for reference only. They are believed to be correct but accuracy is not guaranteed. The purchaser shall be deemed to have full knowledge of all boundaries and the extent of ownership. Neither the vendor nor the vendor’s agents will be responsible for defining the boundaries or the ownership thereof.
Viewings
Strictly by appointment through Fisher German LLP.
Directions
Postcode – NN7 3PH
what3words – ///scarred.drop.radiates
Brochures
ParticularsBugbrooke, Northamptonshire
NEAREST STATIONS
Distances are straight line measurements from the centre of the postcode- Northampton Station4.1 miles
Notes
Disclaimer - Property reference ADZ240617. The information displayed about this property comprises a property advertisement. Rightmove.co.uk makes no warranty as to the accuracy or completeness of the advertisement or any linked or associated information, and Rightmove has no control over the content. This property advertisement does not constitute property particulars. The information is provided and maintained by Fisher German, Covering South East. Please contact the selling agent or developer directly to obtain any information which may be available under the terms of The Energy Performance of Buildings (Certificates and Inspections) (England and Wales) Regulations 2007 or the Home Report if in relation to a residential property in Scotland.
Map data ©OpenStreetMap contributors.










