
High street retail property for rent
High Street, Gillingham, Kent, ME7
Letting details
- Let available date:
- Ask agent
- Let type:
- Long term
- Furnish type:
- Unfurnished
- PROPERTY TYPE
Retail Property (high street)
- BATHROOMS
2
- SIZE
1,737 sq ft
161 sq m
Key features
- Visable shop front location
- Gillingham high street
- Long term lease
Description
The shop has a highly visible frontage, making it ideal for a wide range well established businesses looking to expand in a thriving town centre location. Nearby businesses include Savers, B&M, Iceland, Greggs and Costa. The permitted use for the shop covers restaurants, takeaways, hot food shops, cafes, bars and retail. Further information on the class use can also be provided.
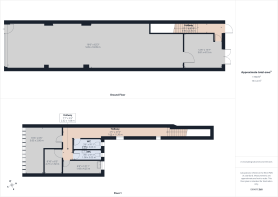
The public facing shop space is large and has the added benefit of a back room for privacy on the same floor. Rear access is also available on the ground floor via a loading bay which is heightened for ease of loading and unloading. On the second floor there is also two bathrooms and three other rooms which are perfect as staff break rooms, additional storage, or office spaces.
Gillingham high street is located in the heart of the Medway towns. The high street stretches from the train station, which has direct links to London, down to Green Street which is over 0.8 miles long. The high street has a mix of clothes shops, convenience stores, charity shops and coffee shops.
Rent - £23,950 PA
Energy Performance Certificates
EPC 1High Street, Gillingham, Kent, ME7
NEAREST STATIONS
Distances are straight line measurements from the centre of the postcode- Gillingham Station0.1 miles
- Chatham Station1.2 miles
- Rochester Station1.8 miles
Notes
Disclaimer - Property reference 00009091. The information displayed about this property comprises a property advertisement. Rightmove.co.uk makes no warranty as to the accuracy or completeness of the advertisement or any linked or associated information, and Rightmove has no control over the content. This property advertisement does not constitute property particulars. The information is provided and maintained by Island Homes, Kent. Please contact the selling agent or developer directly to obtain any information which may be available under the terms of The Energy Performance of Buildings (Certificates and Inspections) (England and Wales) Regulations 2007 or the Home Report if in relation to a residential property in Scotland.
Map data ©OpenStreetMap contributors.






