3 bedroom link detached house for sale
5 Princes Street, Innerleithen, EH44 6JT

- PROPERTY TYPE
Link Detached House
- BEDROOMS
3
- BATHROOMS
1
- SIZE
Ask agent
- TENUREDescribes how you own a property. There are different types of tenure - freehold, leasehold, and commonhold.Read more about tenure in our glossary page.
Freehold
Description
Accessed via the private front garden, the property opens into a spacious entrance hallway with a staircase to the upper floor which incorporates storage beneath. The dual aspect sitting room features a side window along with a large rear-facing window with charming views over the garden and Leithen Water, flooding the space with natural light and creating a relaxed ambiance, whilst also providing ample space for both lounge and dining options. The kitchen is fitted with a good range of both wall and base units, contrasting worktops, and a tiled splashback. Integrated appliances include a double electric oven, electric hob, and extractor fan, whilst space and provisions are provided for a washing machine, tumble dryer, and a dishwasher. A front facing window enjoys and outlook over the garden and Princes Street. Elsewhere on the ground floor, accessed via the entrance hallway, is a rear-facing conservatory with an external door leading to the rear garden, along with a convenient guest WC. The property offers three well-proportioned bedrooms, including two good sized double rooms enjoying views to the rear, one of which benefits from fitted wardrobes, along with a comfortable single bedroom to the front, featuring a walk-in storage cupboard. Completing the accommodation is the family bathroom, fitted with a WC, wash hand basin, and a panelled bath with an electric shower over, complemented by a front-facing opaque window that allows in the natural light.
Externally, set within an exceptionally sizeable plot, the property boasts private gardens to the front, side, and rear, offering huge potential for landscaping or extensions. At the front, a driveway provides off-street parking, alongside a large, paved area, decorative chipped area, and mature shrub borders. To the side, a large timber garage sits amid an extensive lawned and paved area, providing additional space to develop as required. The rear garden enjoys a fabulous, sunny west-facing aspect and is predominantly laid to lawn, complemented by a vast array of plantings and greenery. There are two greenhouses for the keen gardener, as well as an outdoor store and a timber shed for practical external storage. A standout feature is the lawned area along the banks of Leithen Water, providing the perfect opportunity to create a stunning outdoor space, ideal for alfresco dining and relaxing in a tranquil setting.
Location:
Situated in the picturesque and charming Borders town of Innerleithen, the main Border towns are easily reached while Edinburgh lies approximately thirty miles to the North. The town offers a good range of local shopping, medical centre, post office, hotels, restaurants, and cafes, as well as a primary school. The neighbouring town of Peebles offers further facilities including the local High School, Tesco and Sainsbury’s supermarkets, swimming pool, and leisure centre. Lying in the heart of the picturesque Tweed Valley, the town of Innerleithen makes both an ideal commuter choice and a central base for indulging in the various activities available nearby such as golf, fishing, hill walking, and horse riding, not to mention the world-renowned mountain biking centres of Innerleithen and Glentress being on the doorstep. In addition, Innerleithen and the wider area of the Borders has a thriving Arts Community, with many Art Galleries and a wide variety of arts and crafts activities for all ages. There is a multi-screen cinema in nearby in Galashiels and there are a number of local theatre and music groups, notably St Ronan’s Silver Band and Tweedvale Pipe Band.
Services:
Mains water and drainage. Mains electricity. Gas central heating. UPVC doubled glazed windows. Superfast broadband connection available.
Items to be Included:
All fitted floor coverings, light fittings, curtains, and blinds throughout, both integrated and free-standing kitchen appliances will be included in the sale of the property.
Council Tax and Local Authority:
For Council Tax purposes this property has been assessed as band category D. Amount payable for year 2025/2026 - £2,092,11. The local authority is Scottish Borders Council, Council Headquarters, Newtown St Boswells, Melrose, TD6 0SA Tel: .
Viewings:
Viewings of this property are strictly by appointment. For more information or to arrange an appointment, please contact JBM Estate Agents on .
Home Report:
A Home Report incorporating a Single Survey, Energy Performance Certificate and Property Questionnaire is available for parties genuinely interested in this property. Please contact us to request a copy.
EPC Rating:
The Energy Efficiency Rating for this property is D (63) with potential C (79).
Closing Date:
A closing date may be fixed, however, there is no requirement for the seller to fix a closing date when more than one interest is noted. JBM Estate Agents is entitled to accept their client’s instructions to accept an incoming offer without having a closing date and without giving other parties who may have noted interest an opportunity to offer. Prospective purchasers who have notified their interest through their lawyers to JBM Estate Agents, in writing, will be advised of a closing date if set unless the property has been sold previously.
Offers:
All offers must be submitted to the Selling Agents in Scottish legal form, either by email to or in writing to JBM Estate Agents, 10 Northgate, Peebles, EH45 8RS. The seller reserves the absolute discretion to accept or reject any offer received and is under no obligation to accept the highest or any offer. By law, all offers received will be intimated to the seller as soon as reasonably possible until formal conclusion of missives has taken place, unless the seller has provided specific written instructions not to pass on certain offers. Notwithstanding the receipt of an acceptable written offer, until missives are concluded, the seller and the Selling Agents reserve the right to continue marketing or re-market the property and to resume or conduct further viewings, particularly in the event of any delay by the purchaser in progressing the transaction. The purchaser or their solicitor will be notified in writing should the seller subsequently decide to place the property back on the market.
Important Note:
While we believe the information provided to be accurate, it is not guaranteed. All areas, measurements, and distances are approximate. The descriptions, photographs, and floorplans are intended for guidance only and are not necessarily comprehensive. It should not be assumed that the property remains exactly as photographed. Any error, omission, or misstatement shall not annul the sale, entitle any party to compensation, nor provide grounds for legal action. JBM Estate Agents have not tested any services, equipment, or facilities. Prospective purchasers are advised to satisfy themselves by inspection or otherwise and to seek their own professional advice. All descriptions and references to the property's condition are made in good faith. While every effort is made to ensure accuracy, please contact us to confirm any details of particular importance to you, especially if you are planning to travel a considerable distance.
Anti-Money Laundering Regulations:
JBM Estate Agents is a regulated estate agency business and is subject to the Money Laundering Regulations 2017, the Criminal Finances Act 2017, the Proceeds of Crime Act 2002 (POCA), the Economic Crime (Transparency and Enforcement) Act 2022, and other relevant legislation. We are required to comply with the guidelines set out by the regulator for the estate agency sector, HM Revenue & Customs (HMRC). In accordance with these requirements, we are legally obliged to carry out identity and source-of-funds checks on all property buyers. These checks are completed through an independent third-party verification provider and must be successfully concluded before an offer can be formally accepted or a property marked as “under offer.” All buyers are required to complete third-party AML verification, for which a non-refundable fee of £20 plus VAT (£24 in total) per individual applies. All information is handled securely and in accordance with current data protection legislation. JBM Estate Agents is registered for AML supervision with HMRC under registration number XBML , and we are legally required to report any evidence or suspicion of money laundering to the relevant authorities without notification.
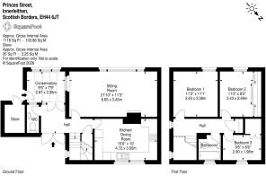
Sitting Room
21' 10'' x 11' 3'' (6.65m x 3.43m)
Kitchen
15' 6'' x 10' 0'' (4.72m x 3.05m)
Conservatory
9' 5'' x 7' 9'' (2.87m x 2.36m)
Bedroom 1
11' 3'' x 11' 1'' (3.43m x 3.38m)
Bedroom 2
11' 3'' x 8' 2'' (3.43m x 2.49m)
Bedroom 3
9' 6'' x 6' 6'' (2.90m x 1.98m)
Brochures
Property BrochureFull Details- COUNCIL TAXA payment made to your local authority in order to pay for local services like schools, libraries, and refuse collection. The amount you pay depends on the value of the property.Read more about council Tax in our glossary page.
- Band: D
- PARKINGDetails of how and where vehicles can be parked, and any associated costs.Read more about parking in our glossary page.
- Yes
- GARDENA property has access to an outdoor space, which could be private or shared.
- Yes
- ACCESSIBILITYHow a property has been adapted to meet the needs of vulnerable or disabled individuals.Read more about accessibility in our glossary page.
- Ask agent
5 Princes Street, Innerleithen, EH44 6JT
Add an important place to see how long it'd take to get there from our property listings.
__mins driving to your place
Get an instant, personalised result:
- Show sellers you’re serious
- Secure viewings faster with agents
- No impact on your credit score
Your mortgage
Notes
Staying secure when looking for property
Ensure you're up to date with our latest advice on how to avoid fraud or scams when looking for property online.
Visit our security centre to find out moreDisclaimer - Property reference 12486099. The information displayed about this property comprises a property advertisement. Rightmove.co.uk makes no warranty as to the accuracy or completeness of the advertisement or any linked or associated information, and Rightmove has no control over the content. This property advertisement does not constitute property particulars. The information is provided and maintained by JBM Estate Agents Limited, Peebles. Please contact the selling agent or developer directly to obtain any information which may be available under the terms of The Energy Performance of Buildings (Certificates and Inspections) (England and Wales) Regulations 2007 or the Home Report if in relation to a residential property in Scotland.
*This is the average speed from the provider with the fastest broadband package available at this postcode. The average speed displayed is based on the download speeds of at least 50% of customers at peak time (8pm to 10pm). Fibre/cable services at the postcode are subject to availability and may differ between properties within a postcode. Speeds can be affected by a range of technical and environmental factors. The speed at the property may be lower than that listed above. You can check the estimated speed and confirm availability to a property prior to purchasing on the broadband provider's website. Providers may increase charges. The information is provided and maintained by Decision Technologies Limited. **This is indicative only and based on a 2-person household with multiple devices and simultaneous usage. Broadband performance is affected by multiple factors including number of occupants and devices, simultaneous usage, router range etc. For more information speak to your broadband provider.
Map data ©OpenStreetMap contributors.




