Plot for sale
Hillend, Twyning, Tewkesbury, Gloucestershire, GL20
- PROPERTY TYPE
Plot
- SIZE
Ask agent
Description
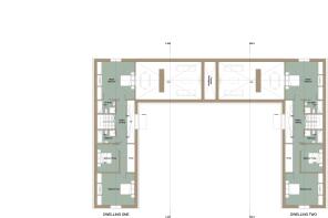
Planning permission has been granted for two detached homes, extending to a gross internal area of circa 2450 Sq.Ft set within spacious plots in this sought after village. These beautiful homes have been designed entirely for their views and offer contemporary living within a classic barn style construction.
Careful consideration has been given to the layout, which has been designed with family life, comfortable living and entertaining in mind. The ground floor proposed plans include an open plan, living space, comprising three areas including a sitting room, dining area and a magnificent, kitchen area with a separate large study/bedroom. Additionally, there will be a cloakroom, storage and a utility.
On the first floor there are three bedrooms. The principal bedroom has an en suite shower room and a series of built in wardrobes. Two further bedrooms share a family bathroom.
Planning Ref Number is Tewkesbury Borough Council 20/01111/FUL
Outside
Forming a quaint arrangement of two new build barn conversion within the idyllic grounds of a farmhouse, these lovely homes enjoy generous plots, beautiful level gardens and a broader countryside scene as the views and backdrop. Each house has a double carport and EV charging.
Situation
Twyning is a charming and lively village with a unique waterside setting and beautiful surrounding countryside. The distinctive and large village green is central to the community, as well as two good pubs, a well-stocked shop, the award-winning Twyning Primary school, and a glorious riverside backdrop with the River Avon running at the bottom of The Fleet inn. Conveniently located approximately a 10 minute drive from Tewkesbury and 20 minutes to Cheltenham, Twyning is situated in An Area of Outstanding Natural Beauty, tucked away in a beautiful corner of north Gloucestershire. Tewkesbury has a vibrant feel and a bustling high street scene with everything one needs for easy day to day living. From stunning scenery along the Severn to meandering boat trips on the Avon and an extraordinary choice of tourist attractions and shops, it has a full calendar of events, celebrations, and festivals. Schools within the local area, in both the state and private sector, are excellent with a highly rated secondary school within Tewkesbury itself, Kings School, Crypt and Denmark Road in Gloucester and the world famous schools within Cheltenham’s cultural centre, all of which are within a comfortable commute.
Hillend, Twyning, Tewkesbury, Gloucestershire, GL20
NEAREST STATIONS
Distances are straight line measurements from the centre of the postcode- Ashchurch for Tewkesbury Station3.1 miles
Notes
Disclaimer - Property reference CHL260004. The information displayed about this property comprises a property advertisement. Rightmove.co.uk makes no warranty as to the accuracy or completeness of the advertisement or any linked or associated information, and Rightmove has no control over the content. This property advertisement does not constitute property particulars. The information is provided and maintained by Kingsley Evans, Cheltenham. Please contact the selling agent or developer directly to obtain any information which may be available under the terms of The Energy Performance of Buildings (Certificates and Inspections) (England and Wales) Regulations 2007 or the Home Report if in relation to a residential property in Scotland.
Map data ©OpenStreetMap contributors.







