
1 bedroom apartment for rent
Luke House, 3 Abbey Orchard Street, Westminster, London, SW1P

Letting details
- Let available date:
- 07/03/2026
- Deposit:
- £3,173A deposit provides security for a landlord against damage, or unpaid rent by a tenant.Read more about deposit in our glossary page.
- Min. Tenancy:
- 12 months How long the landlord offers to let the property for.Read more about tenancy length in our glossary page.
- Let type:
- Long term
- Furnish type:
- Furnished
- Council Tax:
- Ask agent
- PROPERTY TYPE
Apartment
- BEDROOMS
1
- BATHROOMS
1
- SIZE
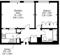
523 sq ft
49 sq m
Key features
- Impressive 1 bedroom apartment
- Enviable location
- Great views
- Separate modern kitchen
- Bathroom
- Furnished
- Excellent storage space
- 5th Floor (with lift)
- 0.2 miles (approx) to St James's Park Station (Circle and District Line)
- EPC Rating = C
Description
Description
This impressive apartment is well proportioned, presented in good condition throughout and is superbly located between Victoria, Westminster and St James's Park.
The apartment has a bright bedroom with a spacious reception area, plenty of storage space, fully fitted kitchen and a modern bathroom.
CPR (cladding): It’s been tested and there are no works required.
CPR (nearby building works): currently there are construction works taking place nearby, contact Savills for more information.
Utility charge: in addition to the rent, tenants will pay a fixed charge of £100/ month to cover heating, hot water and Wi-Fi charges.
Location
Centrally located in Westminster, just off Victoria Street, Luke House is within reach of the many amenities, restaurants, cafes and shops of Victoria, Westminster and Pimlico as well as giving easy access to the rest of the city.
0.2 miles (approx) to St James's Park Station (circle and district lines)
0.6 miles (approx) to Victoria station (underground and national rail services)
Square Footage: 523 sq ft
Additional Info
Holding deposit: £634.62
Deposit: £3,173.08
Rent due monthly in advance
Brochures
Web DetailsParticulars- COUNCIL TAXA payment made to your local authority in order to pay for local services like schools, libraries, and refuse collection. The amount you pay depends on the value of the property.Read more about council Tax in our glossary page.
- Band: E
- PARKINGDetails of how and where vehicles can be parked, and any associated costs.Read more about parking in our glossary page.
- Ask agent
- GARDENA property has access to an outdoor space, which could be private or shared.
- Ask agent
- ACCESSIBILITYHow a property has been adapted to meet the needs of vulnerable or disabled individuals.Read more about accessibility in our glossary page.
- Ask agent
Luke House, 3 Abbey Orchard Street, Westminster, London, SW1P
Add an important place to see how long it'd take to get there from our property listings.
__mins driving to your place
Notes
Staying secure when looking for property
Ensure you're up to date with our latest advice on how to avoid fraud or scams when looking for property online.
Visit our security centre to find out moreDisclaimer - Property reference WSL170167_L. The information displayed about this property comprises a property advertisement. Rightmove.co.uk makes no warranty as to the accuracy or completeness of the advertisement or any linked or associated information, and Rightmove has no control over the content. This property advertisement does not constitute property particulars. The information is provided and maintained by Savills Lettings, Westminster. Please contact the selling agent or developer directly to obtain any information which may be available under the terms of The Energy Performance of Buildings (Certificates and Inspections) (England and Wales) Regulations 2007 or the Home Report if in relation to a residential property in Scotland.
*This is the average speed from the provider with the fastest broadband package available at this postcode. The average speed displayed is based on the download speeds of at least 50% of customers at peak time (8pm to 10pm). Fibre/cable services at the postcode are subject to availability and may differ between properties within a postcode. Speeds can be affected by a range of technical and environmental factors. The speed at the property may be lower than that listed above. You can check the estimated speed and confirm availability to a property prior to purchasing on the broadband provider's website. Providers may increase charges. The information is provided and maintained by Decision Technologies Limited. **This is indicative only and based on a 2-person household with multiple devices and simultaneous usage. Broadband performance is affected by multiple factors including number of occupants and devices, simultaneous usage, router range etc. For more information speak to your broadband provider.
Map data ©OpenStreetMap contributors.





