Elburton Road, Stoke-On-Trent, Staffordshire, ST4

- PROPERTY TYPE
Detached Bungalow
- BEDROOMS
3
- BATHROOMS
1
- SIZE
700 sq ft
65 sq m
- TENUREDescribes how you own a property. There are different types of tenure - freehold, leasehold, and commonhold.Read more about tenure in our glossary page.
Freehold
Key features
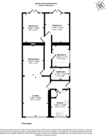
- Three bedroom bungalow
- Separate lounge and dining room
- Kitchen
- Family bathroom
- Driveway parking
- Rear garden space
- No chain
- Searches available upfront
Description
The property offers a comfortable lounge positioned to the front of the property, providing a generous main living space. To the rear, a separate dining room creates an ideal setting for family meals or entertaining, leading through to the kitchen which offers worktop space and storage. The layout provides clear separation between living and dining areas while remaining practical for everyday life.
There are three bedrooms, including two well-sized doubles and a third bedroom that could also be used as a home office or nursery.
Externally, the property benefits from driveway parking to the front, providing valuable off-road parking. To the rear, there is garden space offering scope for outdoor seating, gardening or further personalisation.
Elburton Road is well placed for access to local shops, schools and amenities, with good transport links nearby connecting to Stoke town centre and surrounding areas.
Key features:
Three bedroom bungalow
Separate lounge and dining room
Kitchen
Family bathroom
Driveway parking
Rear garden space
No chain
Searches available upfront
Making an offer through us:
We already have the title plan, register and searches. Request details to view this information. Having these documents upfront will save time and stress once your offer has been accepted.
- COUNCIL TAXA payment made to your local authority in order to pay for local services like schools, libraries, and refuse collection. The amount you pay depends on the value of the property.Read more about council Tax in our glossary page.
- Ask agent
- PARKINGDetails of how and where vehicles can be parked, and any associated costs.Read more about parking in our glossary page.
- Driveway
- GARDENA property has access to an outdoor space, which could be private or shared.
- Front garden,Back garden
- ACCESSIBILITYHow a property has been adapted to meet the needs of vulnerable or disabled individuals.Read more about accessibility in our glossary page.
- Ask agent
Elburton Road, Stoke-On-Trent, Staffordshire, ST4
Add an important place to see how long it'd take to get there from our property listings.
__mins driving to your place
Get an instant, personalised result:
- Show sellers you’re serious
- Secure viewings faster with agents
- No impact on your credit score
Your mortgage
Notes
Staying secure when looking for property
Ensure you're up to date with our latest advice on how to avoid fraud or scams when looking for property online.
Visit our security centre to find out moreDisclaimer - Property reference 2f0e63a3-49c1-48e3-b61a-88085a6ce393. The information displayed about this property comprises a property advertisement. Rightmove.co.uk makes no warranty as to the accuracy or completeness of the advertisement or any linked or associated information, and Rightmove has no control over the content. This property advertisement does not constitute property particulars. The information is provided and maintained by Sail Homes, Redcliffe. Please contact the selling agent or developer directly to obtain any information which may be available under the terms of The Energy Performance of Buildings (Certificates and Inspections) (England and Wales) Regulations 2007 or the Home Report if in relation to a residential property in Scotland.
*This is the average speed from the provider with the fastest broadband package available at this postcode. The average speed displayed is based on the download speeds of at least 50% of customers at peak time (8pm to 10pm). Fibre/cable services at the postcode are subject to availability and may differ between properties within a postcode. Speeds can be affected by a range of technical and environmental factors. The speed at the property may be lower than that listed above. You can check the estimated speed and confirm availability to a property prior to purchasing on the broadband provider's website. Providers may increase charges. The information is provided and maintained by Decision Technologies Limited. **This is indicative only and based on a 2-person household with multiple devices and simultaneous usage. Broadband performance is affected by multiple factors including number of occupants and devices, simultaneous usage, router range etc. For more information speak to your broadband provider.
Map data ©OpenStreetMap contributors.




