Whiteoak Avenue, Askern, Doncaster, South Yorkshire, DN6

- PROPERTY TYPE
End of Terrace
- BEDROOMS
2
- BATHROOMS
1
- SIZE
Ask agent
- TENUREDescribes how you own a property. There are different types of tenure - freehold, leasehold, and commonhold.Read more about tenure in our glossary page.
Freehold
Key features
- Superb Modern Home
- Two Double Bedrooms
- No Onward Chain
- Open Plan Ground Floor
- Epc Rating Grade B
- Modern Fitted Kitchen
- Lounge With French Doors To Rear Garden
- Gas Central Heating
- Double Glazing
- Bathroom/Wc
Description
Well presented modern home set in popular location close to amenities boasting two double bedrooms and spacious open plan ground floor living area with access to the rear garden. Only by a viewing can you fully appreciate this superb home.
IMPORTANT NOTE TO POTENTIAL PURCHASERS & TENANTS:
We endeavour to make our particulars accurate and reliable, however, they do not constitute or form part of an offer or any contract and none is to be relied upon as statements of representation or fact. The services, systems and appliances listed in this specification have not been tested by us and no guarantee as to their operating ability or efficiency is given. All photographs and measurements have been taken as a guide only and are not precise. Floor plans where included are not to scale and accuracy is not guaranteed. If you require clarification or further information on any points, please contact us, especially if you are traveling some distance to view. POTENTIAL PURCHASERS: Fixtures and fittings other than those mentioned are to be agreed with the seller. POTENTIAL TENANTS: All properties are available for a minimum length of time, with the exception of short term accommodation. Please contact the branch for details. A security deposit of at least one month’s rent is required. Rent is to be paid one month in advance. It is the tenant’s responsibility to insure any personal possessions. Payment of all utilities including water rates or metered supply and Council Tax is the responsibility of the tenant in most cases.
DON250751/2
Description
Fantastic modern home available with no onward chain, offering well presented modern living briefly comprising of, entrance lobby ground floor Wc, modern kitchen with integral appliances and superb open plan lounge with access to the rear garden. To the first floor is a spacious landing two double bedrooms and bathroom with modern white suite. The property has the added benefits of gas central heating, double glazing, well maintained gardens to both front & rear and off street parking. Epc rating grade B.
Location
The property resides within the village of Askern where many local amenities can be found, it is well positioned to give access to both Doncaster and Selby making this an ideal base for those commuting on a daily basis. There is easy access to the A1M & M62 close by.
Entrance Lobby
Cloakroom/Wc
Having front facing double glazed window, low level Wc, pedestal hand wash basin with tiled splashback and a central heating radiator.
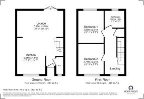
Kitchen/Diner
5.24m x 4.14m
Having front facing double glazed window, range of modern fitted units, work top surfaces inset stainless steel sink & drainer and mixer taps. Integral appliances include four ring gas hob with extractor over, single electric oven, fridge & freezer, dishwasher and washing machine. Part tiling to walls, stairs to first floor and a central heating radiator.
Lounge
5.26m x 3m
Having two central heating radiators and french doors giving access to the rear garden.
First Floor Landing
Having front facing double glazed window, useful built in cupboard and two central heating radiators.
Bedroom 1
2.91m x 3.68m
Having rear facing double glazed window and a central heating radiator.
Bedroom 2
2.91m x 3.74m
Having front facing double glazed window, access to loft space and a central heating radiator.
Bathroom/Wc
2.22m x 1.93m
Having rear facing double glazed window, three piece modern white suite comprising panelled bath with shower & screen over, pedestal hand wash basin and low level Wc. Part tiling to walls, extractor fan, central heating radiator and tiled floor.
Outside
Gardens
The property benefits from gardens to both front & rear, with a hedge enclosed lawned front garden with flagged path, hard standing for off street parking and side access to the rear. The rear garden is fence enclosed laid to lawn with patio area.
Tenure
Freehold
Local Authority
Doncaster Council
Council Tax Band
A
Brochures
Web DetailsFull Brochure PDF- COUNCIL TAXA payment made to your local authority in order to pay for local services like schools, libraries, and refuse collection. The amount you pay depends on the value of the property.Read more about council Tax in our glossary page.
- Band: A
- PARKINGDetails of how and where vehicles can be parked, and any associated costs.Read more about parking in our glossary page.
- Yes
- GARDENA property has access to an outdoor space, which could be private or shared.
- Yes
- ACCESSIBILITYHow a property has been adapted to meet the needs of vulnerable or disabled individuals.Read more about accessibility in our glossary page.
- Ask agent
Whiteoak Avenue, Askern, Doncaster, South Yorkshire, DN6
Add an important place to see how long it'd take to get there from our property listings.
__mins driving to your place
Get an instant, personalised result:
- Show sellers you’re serious
- Secure viewings faster with agents
- No impact on your credit score
Your mortgage
Notes
Staying secure when looking for property
Ensure you're up to date with our latest advice on how to avoid fraud or scams when looking for property online.
Visit our security centre to find out moreDisclaimer - Property reference DON250751. The information displayed about this property comprises a property advertisement. Rightmove.co.uk makes no warranty as to the accuracy or completeness of the advertisement or any linked or associated information, and Rightmove has no control over the content. This property advertisement does not constitute property particulars. The information is provided and maintained by Your Move, Doncaster. Please contact the selling agent or developer directly to obtain any information which may be available under the terms of The Energy Performance of Buildings (Certificates and Inspections) (England and Wales) Regulations 2007 or the Home Report if in relation to a residential property in Scotland.
*This is the average speed from the provider with the fastest broadband package available at this postcode. The average speed displayed is based on the download speeds of at least 50% of customers at peak time (8pm to 10pm). Fibre/cable services at the postcode are subject to availability and may differ between properties within a postcode. Speeds can be affected by a range of technical and environmental factors. The speed at the property may be lower than that listed above. You can check the estimated speed and confirm availability to a property prior to purchasing on the broadband provider's website. Providers may increase charges. The information is provided and maintained by Decision Technologies Limited. **This is indicative only and based on a 2-person household with multiple devices and simultaneous usage. Broadband performance is affected by multiple factors including number of occupants and devices, simultaneous usage, router range etc. For more information speak to your broadband provider.
Map data ©OpenStreetMap contributors.







