St Marys Avenue, BARNETBY

- PROPERTY TYPE
Terraced
- BEDROOMS
3
- BATHROOMS
1
- SIZE
Ask agent
- TENUREDescribes how you own a property. There are different types of tenure - freehold, leasehold, and commonhold.Read more about tenure in our glossary page.
Freehold
Key features
- Chain Free
- Central Village Location
- Dining Kitchen
- Three Good Sized Bedrooms
- Front & Rear Gardens
- uPVC double Glazing
- Gas Central Heating
- Council Tax Band A
Description
LOCATION
This well located village has the benefit of a Post Office, doctors surgery, and selection of shops and pubs together with a well regarded primary school. Excellent transport links include a railway station with links to the East Coast Mainline, the M180/A15/A180 interchange is close by and Humberside Airport is approximately 4 miles away with daily international links
PORCH & HALLWAY
Enter the property via a uPVC front door into a porch having an additional uPVC door into the hall with a pendant light to the ceiling, a uPVC double glazed window to the front, a central heating radiator and carpeted flooring.
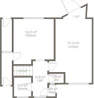
KITCHEN 3.54m (11' 7") x 3.79m (12' 5")
With plenty of space for a dining table this kitchen provides a range of wall and base units fitted with a complementary worktops with tiled splash backs and a stainless steel sink with chrome mixer tap. There are two light fittings to the ceiling, a uPVC double glazed window to the rear aspect, a central heating radiator and wood effect cushion flooring. The Alpha gas boiler is located here and there is a uPVC external door to the side entrance hallway.
SIDE HALL
With uPVC external doors to the front and rear, a light fitting to the ceiling and a store cupboard.
LOUNGE 6.10m (20' 0") x 3.00m (9' 10")
A spacious dual aspect reception room has a uPVC double glazed window to the front and door to the rear garden. There is an electric fire, a pendant light and coving to the ceiling, a central heating radiator and carpeted flooring.
SHOWER ROOM 1.54m (5' 1") x 1.40m (4' 7")
A wet room fitted with electric shower, a wall mounted wash basin with chrome mixer tap and a chrome central heated towel rail. There is a light fitting and roof scape access to the ceiling, a uPVC obscure double glazed window to the front.
WC
Having a low flush WC. There is a uPVC obscure double glazed window to the front aspect and light to the ceiling.
LANDING
The carpeted stairs lead to the first floor landing with a pendant light to the ceiling, a uPVC double glazed window to the front elevation and a built in cupboard housing the hot water tank.
BEDROOM ONE 4.33m (14' 2") x 2.84m (9' 4")
To the rear of the property with a uPVC double glazed window, a pendant light to the ceiling, a central heating radiator and carpeted flooring.
BEDROOM TWO 3.29m (10' 10") x 2.84m (9' 4")
Having a uPVC double glazed window to the rear elevation, a pendant light to the ceiling, a central heating radiator and carpeted flooring.
BEDROOM THREE 3.25m (10' 8") x 2.35m (7' 9")
With a uPVC double glazed window to the front elevation, a pendant light to the ceiling, a central heating radiator and carpeted flooring.
OUTSIDE
The front garden is enclosed via fencing with gavelled hand standing for low maintenance. The rear garden is also enclosed and private with a lawned area, patio area and timber sheds.
FIXTURES AND FITTINGS
All light fittings and floor coverings are to be included within the sale of the property.
SERVICES (not tested)
Mains gas, electricity, water and drainage are understood to be connected to the property.
COUNCIL TAX
The Council Tax Band for the property is Band A as confirmed by North Lincolnshire Council.
Brochures
PDF brochure- COUNCIL TAXA payment made to your local authority in order to pay for local services like schools, libraries, and refuse collection. The amount you pay depends on the value of the property.Read more about council Tax in our glossary page.
- Band: A
- PARKINGDetails of how and where vehicles can be parked, and any associated costs.Read more about parking in our glossary page.
- On street
- GARDENA property has access to an outdoor space, which could be private or shared.
- Yes
- ACCESSIBILITYHow a property has been adapted to meet the needs of vulnerable or disabled individuals.Read more about accessibility in our glossary page.
- Ask agent
St Marys Avenue, BARNETBY
Add an important place to see how long it'd take to get there from our property listings.
__mins driving to your place
Get an instant, personalised result:
- Show sellers you’re serious
- Secure viewings faster with agents
- No impact on your credit score
Your mortgage
Notes
Staying secure when looking for property
Ensure you're up to date with our latest advice on how to avoid fraud or scams when looking for property online.
Visit our security centre to find out moreDisclaimer - Property reference BWC1B2610. The information displayed about this property comprises a property advertisement. Rightmove.co.uk makes no warranty as to the accuracy or completeness of the advertisement or any linked or associated information, and Rightmove has no control over the content. This property advertisement does not constitute property particulars. The information is provided and maintained by Bell Watson & Co, Brigg. Please contact the selling agent or developer directly to obtain any information which may be available under the terms of The Energy Performance of Buildings (Certificates and Inspections) (England and Wales) Regulations 2007 or the Home Report if in relation to a residential property in Scotland.
*This is the average speed from the provider with the fastest broadband package available at this postcode. The average speed displayed is based on the download speeds of at least 50% of customers at peak time (8pm to 10pm). Fibre/cable services at the postcode are subject to availability and may differ between properties within a postcode. Speeds can be affected by a range of technical and environmental factors. The speed at the property may be lower than that listed above. You can check the estimated speed and confirm availability to a property prior to purchasing on the broadband provider's website. Providers may increase charges. The information is provided and maintained by Decision Technologies Limited. **This is indicative only and based on a 2-person household with multiple devices and simultaneous usage. Broadband performance is affected by multiple factors including number of occupants and devices, simultaneous usage, router range etc. For more information speak to your broadband provider.
Map data ©OpenStreetMap contributors.








