
Woodcote Way, Walton

- PROPERTY TYPE
Detached
- BEDROOMS
3
- BATHROOMS
2
- SIZE
Ask agent
- TENUREDescribes how you own a property. There are different types of tenure - freehold, leasehold, and commonhold.Read more about tenure in our glossary page.
Freehold
Key features
- Modern three-bedroom detached home in sought-after Walton
- Spacious lounge/diner and contemporary dining kitchen
- Separate utility room for added convenience
- Master bedroom with en-suite plus two good-size bedrooms
- Landscaped corner garden with pergola seating area
- Ample off-road parking with EV charging point, close to golf course and easy access to Chesterfield town centre
Description
Set on a desirable corner plot in the sought-after area of Walton, this beautifully presented modern three-bedroom detached home offers stylish interiors, landscaped gardens, and the rare advantage of being located right next to the golf course — all within easy reach of Chesterfield town centre.
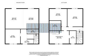
Designed for modern family living, the property boasts a spacious and versatile layout throughout.
The welcoming entrance leads into a larger-than-average lounge/diner, providing an ideal space for both relaxing evenings and entertaining guests. Flooded with natural light, this room offers flexibility for family life while maintaining a cosy yet contemporary feel.
At the heart of the home is the impressive dining kitchen, thoughtfully designed with ample worktop space and room for family dining — perfect for everyday living and social occasions alike.
A separate utility room adds practicality and convenience, keeping household tasks neatly tucked away.
Upstairs, you will find three generously sized bedrooms, all well-proportioned and tastefully presented. The master bedroom benefits from a private en-suite shower room, creating a comfortable retreat at the end of the day. A modern family bathroom serves the remaining bedrooms.
Externally, the property continues to impress.
Occupying a corner plot, the landscaped garden has been carefully designed to provide a private and inviting outdoor space. A stylish pergola seating area creates the perfect setting for outdoor dining, summer gatherings, or relaxing evenings.
The home also offers ample off-road parking, complete with an EV charging point, catering perfectly to modern lifestyles.
The location is equally appealing — positioned next to the golf course, close to well-regarded local amenities, schools, and transport links, and offering an easy commute to Chesterfield town centre.
This is a superb opportunity to secure a modern, move-in-ready detached home in one of Walton’s most desirable positions.
Early viewing is highly recommended to fully appreciate the space, setting, and lifestyle on offer.
Disclaimer
Haybrook Estate Agents also offer a professional, ARLA accredited Lettings and Management Service. If you are considering renting your property in order to purchase, are looking at buy to let or would like a free review of your current portfolio then please call the Lettings Branch Manager on the number shown above.
Haybrook Estate Agents is the seller's agent for this property. Your conveyancer is legally responsible for ensuring any purchase agreement fully protects your position. We make detailed enquiries of the seller to ensure the information provided is as accurate as possible. Please inform us if you become aware of any information being inaccurate.
Brochures
Material InformationBrochure- COUNCIL TAXA payment made to your local authority in order to pay for local services like schools, libraries, and refuse collection. The amount you pay depends on the value of the property.Read more about council Tax in our glossary page.
- Ask agent
- PARKINGDetails of how and where vehicles can be parked, and any associated costs.Read more about parking in our glossary page.
- Yes
- GARDENA property has access to an outdoor space, which could be private or shared.
- Yes
- ACCESSIBILITYHow a property has been adapted to meet the needs of vulnerable or disabled individuals.Read more about accessibility in our glossary page.
- Ask agent
Woodcote Way, Walton
Add an important place to see how long it'd take to get there from our property listings.
__mins driving to your place
Get an instant, personalised result:
- Show sellers you’re serious
- Secure viewings faster with agents
- No impact on your credit score
Your mortgage
Notes
Staying secure when looking for property
Ensure you're up to date with our latest advice on how to avoid fraud or scams when looking for property online.
Visit our security centre to find out moreDisclaimer - Property reference 0308_HAY030881287. The information displayed about this property comprises a property advertisement. Rightmove.co.uk makes no warranty as to the accuracy or completeness of the advertisement or any linked or associated information, and Rightmove has no control over the content. This property advertisement does not constitute property particulars. The information is provided and maintained by Haybrook, Crystal Peaks. Please contact the selling agent or developer directly to obtain any information which may be available under the terms of The Energy Performance of Buildings (Certificates and Inspections) (England and Wales) Regulations 2007 or the Home Report if in relation to a residential property in Scotland.
*This is the average speed from the provider with the fastest broadband package available at this postcode. The average speed displayed is based on the download speeds of at least 50% of customers at peak time (8pm to 10pm). Fibre/cable services at the postcode are subject to availability and may differ between properties within a postcode. Speeds can be affected by a range of technical and environmental factors. The speed at the property may be lower than that listed above. You can check the estimated speed and confirm availability to a property prior to purchasing on the broadband provider's website. Providers may increase charges. The information is provided and maintained by Decision Technologies Limited. **This is indicative only and based on a 2-person household with multiple devices and simultaneous usage. Broadband performance is affected by multiple factors including number of occupants and devices, simultaneous usage, router range etc. For more information speak to your broadband provider.
Map data ©OpenStreetMap contributors.






