HOUSE & BUILDING PLOT - Stroud Road, Patchway, Bristol

- PROPERTY TYPE
End of Terrace
- BEDROOMS
3
- SIZE
Ask agent
- TENUREDescribes how you own a property. There are different types of tenure - freehold, leasehold, and commonhold.Read more about tenure in our glossary page.
Freehold
Key features
- 19 March LIVE ONLINE AUCTION
- House & Building Plot
- Planning granted to 'brick-up' and extend the existing house
- Plus the addition of a new house on the land to the side
- GDV of circa £610,000
- Large gardens and consent granted for driveways to the front
- 8-week completion
Description
A three-bedroom end-of-terrace property on a generous plot, with full planning permission granted for an additional house to be erected on the land and a two-storey extension to the existing property.
The existing three-bedroom house is of non-traditional construction and benefits from consent for brick cladding and a two storey rear extension to create enhanced living space and a larger master bedroom with en-suite. The generous garden to the side will make way for a new end-of-terrace house with open-plan living accommodation on the ground floor and two double bedrooms and two bathrooms on the first floor.
Externally, the property benefits from large front and rear gardens, a garage and rear parking.
A superb opportunity for builders and developers to create two new homes in Patchway, with excellent access to local amenities, major employers, Bristol Parkway and the M4/M5, as well as Cribbs Causeway.
For Sale By Auction - This property is due to feature in our online auction on 19 March 2026 at 6.00pm. Bidding is via proxy, telephone or online remote bidding.
Viewings - By appointment.
Summary - HOUSE WITH FULL PLANNING FOR ADDITIONAL DWELLING AND TWO-STOREY EXTENSION
Description - A three-bedroom end-of-terrace property set on a generous plot, with full planning permission granted for an additional dwelling and extension. The existing three-bedroom house is of non-traditional construction and benefits from consent for brick cladding and a two storey rear extension to create an enlarged ground-floor living space and a significantly improved master bedroom with ensuite accommodation on the first floor. The generous garden to the side will make way for a new end-of-terrace house with open-plan living accommodation on the ground floor and two double bedrooms and two bathrooms on the first floor.
Externally, the property benefits from large front and rear gardens, together with a garage and rear parking. The approved planning consent also sees the addition of driveways to the front of both properties, providing further off-street parking.
A superb opportunity for builders and developers to create two new homes in Patchway, with excellent access to local amenities, major employers, Bristol Parkway and the M4/M5, as well as Cribbs Causeway.
Location - The property is located in Patchway, close to local shops, schools and amenities. It offers excellent access to major employers including Airbus, Rolls-Royce and the MOD, along with strong transport links via Bristol Parkway and the M4/M5. Cribbs Causeway is also nearby for extensive retail and leisure facilities.
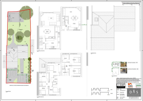
Planning - Full planning consent has been granted for the erection of 1 new dwelling and the brick cladding and extension of the existing dwelling - 81 Stroud Road (please see planning reference and details below).
PLANNING: Erection of 1 no. attached dwelling with associated works. Erection of single storey and two-storey rear extension to existing dwelling. Cladding of existing dwelling with red brick work (resubmission of P22/03828/F).
REFERENCE: P23/01869/F
GRANTED: 16 Nov 2023
LOCAL AUTHORITY: South Gloucestershire Council
Gross Development Value (Gdv) - We would anticipate resale values for each proposed house as below:
81 Stroud Road (3-Bedroom) - £335,000
81A Stroud Road (New Dwelling) - £275,000
GDV: £610,000
Tenure - Understood to be freehold. Please refer to the legal pack for confirmation.
Completion - Completion for this lot will be 8 weeks from exchange of contracts or sooner by mutual agreement.
Site Plan - The site plan is provided for indicative purposes only, please refer to the title plan within the legal pack for confirmation of the site boundaries.
Energy Performance Certificate (Epc) - Rating: E
Letting - What Can Maggs & Allen Achieve For You? - Maggs & Allen's experienced letting team are happy to discuss the rental of this property and can advise on maximising the investment. We offer Full Management, Let Only and Rent Collection Services. Contact Jessica Archer and her team on or email .
Auction Or Bridging Finance Required? - Do you need a mortgage or loan quickly? Maggs & Allen have specialist Independent Brokers who can arrange residential and commercial finance on all types of property. Contact the Auction Team today to be put through to our mortgage and loan experts on or email
Buyer's Premium - Please be advised that all purchasers are subject to a £1,800 plus VAT (£2,160 inc VAT) buyer’s premium payable upon exchange of contracts.
*Guide Price - Guide Prices are provided as an indication of each seller's minimum expectation. They are not necessarily figures which a property will sell for and may change at any time prior to the auction. Each property will be offered subject to Reserve Price (a figure below which the Auctioneer cannot sell the property during the auction) which we expect will be set within the Guide Range or no more than 10% above a single figure Guide.
Reserve Price - The seller's minimum acceptable price at auction and the figure below which the auctioneer cannot sell. The reserve price is not disclosed and remains confidential between the seller and the auctioneer. Both the guide price and the reserve price can be subject to change up to and including the day of the auction.
Proxy, Telephone & Online Remote Bidding - The auction will be held online via live video stream with buyers able to bid via telephone, online or by submitting a proxy bid. You will need to complete our remote bidding form, which is available to download from our website. The completed form, ID (driving licence or passport and a recent utility bill stating the home address of the purchaser) and a bank transfer for the Preliminary Deposit must be received no later than 24 hours before the date of the auction.
Preliminary Deposits - The Preliminary Deposit required for each lot you wish to bid for is £5,000.
If your bid is successful, the balance of the deposit monies and Buyer’s Premium (£1,800 plus VAT) must be transferred to our client account within 24 hours of the auction sale. If you are unsuccessful at the auction, your Preliminary Deposit will be returned to you within 5 working days.
Rental Estimates - All rental estimates are provided in good faith. They should be verified by your own professional advisors prior to a commitment to purchase.
Brochures
HOUSE & BUILDING PLOT - Stroud Road, Patchway, Bri- COUNCIL TAXA payment made to your local authority in order to pay for local services like schools, libraries, and refuse collection. The amount you pay depends on the value of the property.Read more about council Tax in our glossary page.
- Ask agent
- PARKINGDetails of how and where vehicles can be parked, and any associated costs.Read more about parking in our glossary page.
- Yes
- GARDENA property has access to an outdoor space, which could be private or shared.
- Yes
- ACCESSIBILITYHow a property has been adapted to meet the needs of vulnerable or disabled individuals.Read more about accessibility in our glossary page.
- Ask agent
Energy performance certificate - ask agent
HOUSE & BUILDING PLOT - Stroud Road, Patchway, Bristol
Add an important place to see how long it'd take to get there from our property listings.
__mins driving to your place
Get an instant, personalised result:
- Show sellers you’re serious
- Secure viewings faster with agents
- No impact on your credit score
About Maggs & Allen, Auction, Commercial & Investment
60 Northumbria Drive, Henleaze, Bristol, BS9 4HW



Your mortgage
Notes
Staying secure when looking for property
Ensure you're up to date with our latest advice on how to avoid fraud or scams when looking for property online.
Visit our security centre to find out moreDisclaimer - Property reference 34474882. The information displayed about this property comprises a property advertisement. Rightmove.co.uk makes no warranty as to the accuracy or completeness of the advertisement or any linked or associated information, and Rightmove has no control over the content. This property advertisement does not constitute property particulars. The information is provided and maintained by Maggs & Allen, Auction, Commercial & Investment. Please contact the selling agent or developer directly to obtain any information which may be available under the terms of The Energy Performance of Buildings (Certificates and Inspections) (England and Wales) Regulations 2007 or the Home Report if in relation to a residential property in Scotland.
Auction Fees: The purchase of this property may include associated fees not listed here, as it is to be sold via auction. To find out more about the fees associated with this property please call Maggs & Allen, Auction, Commercial & Investment on 0117 463 0249.
*Guide Price: An indication of a seller's minimum expectation at auction and given as a Guide Price or a range of Guide Prices. This is not necessarily the figure a property will sell for and is subject to change prior to the auction.
Reserve Price: Each auction property will be subject to a Reserve Price below which the property cannot be sold at auction. Normally the Reserve Price will be set within the range of Guide Prices or no more than 10% above a single Guide Price.
*This is the average speed from the provider with the fastest broadband package available at this postcode. The average speed displayed is based on the download speeds of at least 50% of customers at peak time (8pm to 10pm). Fibre/cable services at the postcode are subject to availability and may differ between properties within a postcode. Speeds can be affected by a range of technical and environmental factors. The speed at the property may be lower than that listed above. You can check the estimated speed and confirm availability to a property prior to purchasing on the broadband provider's website. Providers may increase charges. The information is provided and maintained by Decision Technologies Limited. **This is indicative only and based on a 2-person household with multiple devices and simultaneous usage. Broadband performance is affected by multiple factors including number of occupants and devices, simultaneous usage, router range etc. For more information speak to your broadband provider.
Map data ©OpenStreetMap contributors.





