High Street, CHATHAM
- PROPERTY TYPE
Land
- SIZE
Ask agent
Key features
- AUCTION SALE
- 10 March 2026
- EPC Rating - n/a
- To view: By application to site during daylight hours.
Description
SUMMARY
AUCTION SALE 10 March 2026 - Freehold site with planning permission (now lapsed) granted for construction of a five floor building providing 4 self-contained flats (1x3 bedroom flat and 3x1 bedroom flats)
Full vacant possession
DESCRIPTION
Freehold site with planning permission (now lapsed) granted for construction of a five floor building providing 4 self-contained flats (1x3 bedroom flat and 3x1 bedroom flats)
Full vacant possession
Location:
The site is situated on the north side of the High Street, to the west side of 63 High Street, between its junctions with Medway Street and Hamond Hill. Public transport links include Chatham mainline rail station together with a network of local bus services serving the surrounding vicinity. Road links include the A2, M2 and M20. An extensive range of shopping amenities, cafes, bars and restaurants can be found locally in Chatham and Rochester. Recreational pursuits can be found locally at the open spaces of Victoria Gardens, Jackson’s Field and along the River Thames.
Description:
Freehold site with planning permission granted (now lapsed) for construction of a five floor building providing 4 self-contained flats (1x3 bedroom flat and 3x1 bedroom flats).
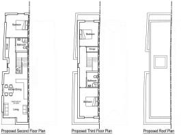
Proposed accommodation:
Flat 4:
Third floor: Two bedrooms, shower room/WC
Second floor: One bedroom, open plan reception room/kitchen, shower room/WC
Flat 3:
First floor: One bedroom, open plan reception room/kitchen, shower room/WC
Flat 2:
Ground floor: One bedroom, shower room/WC
Lower ground floor: Open plan reception room/kitchen
Flat 1:
Ground floor: Reception room
Lower ground floor: One bedroom, kitchen/diner, shower room/WC
Planning: Planning permission was granted (now lapsed) by Medway Council on 28th May 2019 under planning application reference MC/19/0616 for Construction of a residential three storey building with basement and roof storey for 2No. x 1-bed maisonettes, 1No. x 1-bed flat and 1No. 3-bed flat. Existing retaining walls, basement slab and footings to be demolished.
Planning link:
Discharge of Conditions:
Discharge of Conditions was granted by Medway Council on 13th December 2021 under reference MC/21/2778 for Details pursuant to condition 5 (Materials) on planning application MC/19/0616 for Construction of a residential three storey building with basement and roof storey for 2No. x 1-bed maisonettes, 1No. x 1-bed flat and 1No. 3-bed flat., Existing retaining walls, basement slab and footings to be demolished.
Planning link:
To view: By application to the site within daylight hours.
Important Notice:
For each Lot, a contract documentation fee of £1,800 (inclusive of VAT) is payable to Barnard Marcus Auctions by the buyer. The seller may charge additional fees payable upon completion. If applicable, such fees are detailed within the Special Conditions of Sale. Buyers are deemed to bid in full knowledge of this.
The Guide Price quoted must not be relied upon by prospective purchasers as a valuation or assessment of value of the property. It is intended to provide purchasers with an indication of the region at which the reserve may be set at the time of going to press. The guide price may be subject to variation and interested parties are advised to make regular checks for variations and should be aware that the reserve price may be either below or above the quoted guide price.
Prospective purchasers should also be aware that the eventual sale price may be above or below the guide level dependent upon competition, and should therefore not presume the guide to be indicative of the final expected sale price or the price the property is available at.
When setting the guide price, the auctioneers have given consideration to the seller’s instructions in respect of their indicated reserve price at the time of instruction. The reserve price, (the level below which the property will not be sold), remains confidential between the seller and the auctioneer. The guide price therefore, is intended to indicate the region at which the reserve price is intended to be set. The seller will confirm their final reserve price close to the auction date and if appropriate the auctioneers may adjust the guide price to reflect this.
Whilst Barnard Marcus make every effort to ensure the safety and security of viewers at properties, we have not carried out a detailed Health & Safety inspection of properties in our auctions and cannot therefore guarantee the safety and security of viewers.
Prospective purchasers and bidders attend properties entirely at their own risk. Particular care should be taken when accessing cellars, attics, exterior grounds and outbuildings and boundaries. All non-conducted inspections of vacant sites should be made in daylight hours only and entry into such sites is entirely at the viewers risk.
1. MONEY LAUNDERING REGULATIONS: Intending purchasers will be asked to produce identification documentation at a later stage and we would ask for your co-operation in order that there will be no delay in agreeing the sale.
2. General: While we endeavour to make our sales particulars fair, accurate and reliable, they are only a general guide to the property and, accordingly, if there is any point which is of particular importance to you, please contact the office and we will be pleased to check the position for you, especially if you are contemplating travelling some distance to view the property.
3. Photographs and Measurements: Some images may have been taken by a wide angled lens camera. These approximate room sizes are only intended as general guidance. You must verify the dimensions carefully before ordering carpets or any built-in furniture.
4. Services: Please note we have not tested the services or any of the equipment or appliances in this property, accordingly we strongly advise prospective buyers to commission their own survey or service reports before finalising their offer to purchase.
5. THESE PARTICULARS ARE ISSUED IN GOOD FAITH BUT DO NOT CONSTITUTE REPRESENTATIONS OF FACT OR FORM PART OF ANY OFFER OR CONTRACT. THE MATTERS REFERRED TO IN THESE PARTICULARS SHOULD BE INDEPENDENTLY VERIFIED BY PROSPECTIVE BUYERS OR TENANTS. NEITHER SEQUENCE (UK) LIMITED NOR ANY OF ITS EMPLOYEES OR AGENTS HAS ANY AUTHORITY TO MAKE OR GIVE ANY REPRESENTATION OR WARRANTY WHATEVER IN RELATION TO THIS PROPERTY.
1. MONEY LAUNDERING REGULATIONS: Intending purchasers will be asked to produce identification documentation at a later stage and we would ask for your co-operation in order that there will be no delay in agreeing the sale.
2. General: While we endeavour to make our sales particulars fair, accurate and reliable, they are only a general guide to the property and, accordingly, if there is any point which is of particular importance to you, please contact the office and we will be pleased to check the position for you, especially if you are contemplating travelling some distance to view the property.
3. Photographs and Measurements: Some images may have been taken by a wide angled lens camera. These approximate room sizes are only intended as general guidance. You must verify the dimensions carefully before ordering carpets or any built-in furniture.
4. Services: Please note we have not tested the services or any of the equipment or appliances in this property, accordingly we strongly advise prospective buyers to commission their own survey or service reports before finalising their offer to purchase.
5. THESE PARTICULARS ARE ISSUED IN GOOD FAITH BUT DO NOT CONSTITUTE REPRESENTATIONS OF FACT OR FORM PART OF ANY OFFER OR CONTRACT. THE MATTERS REFERRED TO IN THESE PARTICULARS SHOULD BE INDEPENDENTLY VERIFIED BY PROSPECTIVE BUYERS OR TENANTS. NEITHER SEQUENCE (UK) LIMITED NOR ANY OF ITS EMPLOYEES OR AGENTS HAS ANY AUTHORITY TO MAKE OR GIVE ANY REPRESENTATION OR WARRANTY WHATEVER IN RELATION TO THIS PROPERTY.
Brochures
Full DetailsHigh Street, CHATHAM
NEAREST STATIONS
Distances are straight line measurements from the centre of the postcode- Chatham Station0.2 miles
- Rochester Station0.7 miles
- Strood Station1.3 miles
About Barnard Marcus, Hammersmith Auctions
Sovereign House, 361 King Street Hammersmith London W6 9NA



Notes
Disclaimer - Property reference AUC0050664. The information displayed about this property comprises a property advertisement. Rightmove.co.uk makes no warranty as to the accuracy or completeness of the advertisement or any linked or associated information, and Rightmove has no control over the content. This property advertisement does not constitute property particulars. The information is provided and maintained by Barnard Marcus, Hammersmith Auctions. Please contact the selling agent or developer directly to obtain any information which may be available under the terms of The Energy Performance of Buildings (Certificates and Inspections) (England and Wales) Regulations 2007 or the Home Report if in relation to a residential property in Scotland.
Auction Fees: The purchase of this property may include associated fees not listed here, as it is to be sold via auction. To find out more about the fees associated with this property please call Barnard Marcus, Hammersmith Auctions on 020 3866 9305.
*Guide Price: An indication of a seller's minimum expectation at auction and given as a Guide Price or a range of Guide Prices. This is not necessarily the figure a property will sell for and is subject to change prior to the auction.
Reserve Price: Each auction property will be subject to a Reserve Price below which the property cannot be sold at auction. Normally the Reserve Price will be set within the range of Guide Prices or no more than 10% above a single Guide Price.
Map data ©OpenStreetMap contributors.




