Moss Lane, Pinner Village, HA5

- PROPERTY TYPE
Cottage
- BEDROOMS
3
- BATHROOMS
3
- SIZE
Ask agent
- TENUREDescribes how you own a property. There are different types of tenure - freehold, leasehold, and commonhold.Read more about tenure in our glossary page.
Freehold
Key features
- Grade II Listed
- Historic Medieval Property
- Original Period Features
- Two Reception Rooms
- Updated Kitchen
- Three / Four Bedrooms
- Three Bath/Shower Rooms
- Wrap Around Garden with Summer House
- Pinner Village Location
Description
Available to the market for the first time in over two decades, offering a rare opportunity to acquire a unique and utterly charming historical property. Dating back to the 15th century, the property was originally built as an open-hall house and later transformed in the 17th century with the addition of the first floor. The Grade II-listed cottage boasts an abundance of character with its original period features, such as a latticed balustrade and a rare 17th century hunting scene hand-painted in the dining room. Nestled in the heart of Pinner Village, the cottage enjoys an idyllic and tranquil setting, whilst only being a short walk from local amenities and Pinner Train Station (Metropolitan Line).
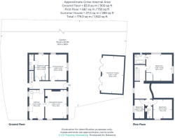
Alongside its charm and rustic ambiance, the cottage comprises two reception rooms that overlook the surrounding garden, an updated kitchen, three / four bedrooms (one currently utilised as an office), and three bath/shower rooms.
The wrap-around garden enhances the peaceful and idyllic setting, and provides plenty of outdoor space for you to enjoy. In addition, there is a large summer house and a covered pergola, allowing you to enjoy the garden all year round.
Set back from Moss Lane, this property enjoys a peaceful setting on one of Pinner's most sought-after roads, just moments from a variety of shopping facilities, restaurants, coffee houses and popular supermarkets. For commuters, Pinner Station is a short walk away and offers a frequent service into London via the Metropolitan Line, with the Overground available at nearby Hatch End station. The area is well served by primary and secondary schooling, children's parks / playgrounds and recreational facilities.
Brochures
Brochure 1- COUNCIL TAXA payment made to your local authority in order to pay for local services like schools, libraries, and refuse collection. The amount you pay depends on the value of the property.Read more about council Tax in our glossary page.
- Band: F
- PARKINGDetails of how and where vehicles can be parked, and any associated costs.Read more about parking in our glossary page.
- Ask agent
- GARDENA property has access to an outdoor space, which could be private or shared.
- Yes
- ACCESSIBILITYHow a property has been adapted to meet the needs of vulnerable or disabled individuals.Read more about accessibility in our glossary page.
- Ask agent
Energy performance certificate - ask agent
Moss Lane, Pinner Village, HA5
Add an important place to see how long it'd take to get there from our property listings.
__mins driving to your place
Get an instant, personalised result:
- Show sellers you’re serious
- Secure viewings faster with agents
- No impact on your credit score
Your mortgage
Notes
Staying secure when looking for property
Ensure you're up to date with our latest advice on how to avoid fraud or scams when looking for property online.
Visit our security centre to find out moreDisclaimer - Property reference S1606378. The information displayed about this property comprises a property advertisement. Rightmove.co.uk makes no warranty as to the accuracy or completeness of the advertisement or any linked or associated information, and Rightmove has no control over the content. This property advertisement does not constitute property particulars. The information is provided and maintained by Robsons, Pinner. Please contact the selling agent or developer directly to obtain any information which may be available under the terms of The Energy Performance of Buildings (Certificates and Inspections) (England and Wales) Regulations 2007 or the Home Report if in relation to a residential property in Scotland.
*This is the average speed from the provider with the fastest broadband package available at this postcode. The average speed displayed is based on the download speeds of at least 50% of customers at peak time (8pm to 10pm). Fibre/cable services at the postcode are subject to availability and may differ between properties within a postcode. Speeds can be affected by a range of technical and environmental factors. The speed at the property may be lower than that listed above. You can check the estimated speed and confirm availability to a property prior to purchasing on the broadband provider's website. Providers may increase charges. The information is provided and maintained by Decision Technologies Limited. **This is indicative only and based on a 2-person household with multiple devices and simultaneous usage. Broadband performance is affected by multiple factors including number of occupants and devices, simultaneous usage, router range etc. For more information speak to your broadband provider.
Map data ©OpenStreetMap contributors.







