Selden Parade, 4 Salvington Road, Worthing, West Sussex, BN13 2HL
- SIZE AVAILABLE
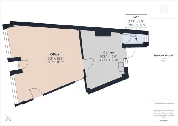
432 sq ft
40 sq m
- SECTOR
Mixed use property for sale
Key features
- 100% Rate Relief (STS)
- Forecourt Parking
- Busy Thoroughfare
Description
The property is situated on the edge of Salvington along popular Selden Parade. Close to bus stops and easy access to main A27 & A24 roads. Worthing Town Centre with its comprehensive shopping amenities, restaurants, pubs, cinemas, theatres and leisure facilities are approximately 2.5 miles away. The nearest train station is West Worthing which is just over a mile away.
Description
A mixed-use freehold property situated in a prominent position along a popular secondary parade in Salvington, Worthing. It comprises a ground floor commercial premises and self-contained one-bedroom flat.
The ground floor commercial unit features a double-fronted shopfront with a recessed entrance. Internally, the layout includes open plan area to the front with the addition of a rear kitchen/storage area, WC and rear access.
The flat is accessed independently from the front of the property and comprises lounge, kitchen and bedroom.
Above the commercial premises is a self-contained one-bedroom flat, currently let at £800 per calendar month. The property is income producing and generating a rental income of £16,100 per annum, with the commercial unit producing £6,500 annually, with scope for uplift.
Price
Offers are invited in the region of £250,000 for the freehold interest.
Tenure Comments
Freehold
EPC
The first floor flat has an EPC rating of E - 39.
An EPC has been requested for the ground floor premises.
VAT
We are informed that VAT is not applicable on the terms quoted.
Legal Fees
Each party is responsible for their own legal fees in this transaction.
Viewing
Strictly by appointment with Sole Agents,
Jacobs Steel.
Energy Performance Certificates
EPC CertificateBrochures
Selden Parade, 4 Salvington Road, Worthing, West Sussex, BN13 2HL
NEAREST STATIONS
Distances are straight line measurements from the centre of the postcode- West Worthing Station1.2 miles
- Durrington-on-Sea Station1.3 miles
- Worthing Station1.5 miles
Notes
Disclaimer - Property reference 1326FH. The information displayed about this property comprises a property advertisement. Rightmove.co.uk makes no warranty as to the accuracy or completeness of the advertisement or any linked or associated information, and Rightmove has no control over the content. This property advertisement does not constitute property particulars. The information is provided and maintained by Jacobs Steel, Jacobs Steel Commercial, Worthing. Please contact the selling agent or developer directly to obtain any information which may be available under the terms of The Energy Performance of Buildings (Certificates and Inspections) (England and Wales) Regulations 2007 or the Home Report if in relation to a residential property in Scotland.
Map data ©OpenStreetMap contributors.





