The Limes, South Cerney

- PROPERTY TYPE
Detached
- BEDROOMS
5
- BATHROOMS
3
- SIZE
2,347-2,594 sq ft
218-241 sq m
- TENUREDescribes how you own a property. There are different types of tenure - freehold, leasehold, and commonhold.Read more about tenure in our glossary page.
Freehold
Key features
- Extended Family Home
- 5 Double Bedrooms
- South Facing Garden
- Home Office/Gym
- 4 Reception Rooms
- Garage & Driveway Parking
- 3 Bathrooms
- Downstairs WC & Utility Room
Description
Extended | 5 Double Bedrooms | 3 Storey Living | 2,495 sq ft Total | South Facing Garden | Parking for 3 cars| Double Garage + Gym/Office
The Home
Tucked into a central position within the heart of South Cerney, this beautifully extended Cotswold stone home offers substantial and versatile accommodation across three floors — combining character, light-filled modern living and exceptional practicality.
With almost 2,500 sq ft in total (including the garage and home gym/office), this is a home designed for growing families who value space, flexibility and village convenience.
Ground Floor – Character Meets Contemporary Living
The main living room is warm and inviting, centred around a contemporary gas fire with feature wall detailing and built-in log storage — the perfect cosy retreat in winter.
To the rear, the home truly opens up.
The extended family/sun room, with underfloor heating, is flooded with natural light from skylights and wide French doors, seamlessly connecting the indoors to the south-facing courtyard garden. Exposed Cotswold stone, high-level feature windows and tiled flooring create a stylish yet relaxed space ideal for entertaining, music, reading or simply enjoying the garden views.
The kitchen dining room, designed by the Shaker Workshop in Cirencester, is beautifully appointed with shaker-style cabinetry, granite worktops and a central island — the true heart of the home. There's excellent storage, generous preparation space and room for everyday family dining.
Off to the side of the kitchen is a utility room and in the entrance hall you will also find a downstairs WC.
A separate snug provides an additional reception room — perfect as a children's play room or a place to hide away to get your work done in some peace and quiet.
First & Second Floors – Five Genuine Double Bedrooms
Across the upper floors, the sense of space continues with wide landing areas and well-balanced proportions throughout.
All five bedrooms are comfortable doubles.
The principal suite enjoys its own dressing area and modern en-suite shower room, creating a private retreat away from the rest of the house.
The remaining bedrooms are served by a stylish family bathroom, while the top floor provides excellent additional space ideal for teenagers, guests or multi-generational living with a Jack & Jill bathroom
Outside – Low Maintenance & Private
The south-facing rear garden has been designed for ease and enjoyment. A generous paved terrace creates a wonderful outdoor entertaining space, framed by traditional Cotswold stone walling for privacy and character.
To the rear of the property:
Driveway parking for up to four vehicles
Two garages; One garage has been professionally converted internally into a gym/home office with access to the garden.
EV charging point installed
The Setting: South Cerney
South Cerney is one of the most desirable villages in the southern Cotswolds. Known for its strong community, welcoming pubs, local shops and quick access to Cirencester and Cheltenham, it offers the perfect balance of village charm and modern convenience.
The lakes surrounding the village provide endless opportunities for paddleboarding, walking, cycling and watersports. This area appeals to families, commuters, second-home owners and nature lovers alike.
Schools are a major attraction. The village's primary, Ann Edwards Church of England Primary School, is highly regarded. Cirencester offers excellent secondary options, including Deer Park and Kingshill. Grammar schools can be found at Stroud High, Marlin College, Pates and Ribston Hall, to name but a few. For independent education, Westonbirt School, Hatherop Castle, Beaudesert Park and several Cheltenham schools are all within easy reach. All of the aforementioned options are serviced by buses from the village.
Transport links are excellent. Kemble Station, around 12 minutes away, provides direct trains to London Paddington in just over an hour. The A419 and M4 offer convenient routes toward Swindon, Bristol and the Midlands.
In Summary
Extended, flexible and beautifully presented, this substantial five-bedroom home offers the space families need, the warmth buyers want and the location everyone asks for.
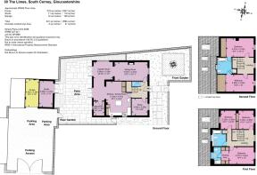
Entrance Hall
Downstairs Cloakroom
Snug
3.03m x 2.9m - 9'11" x 9'6"
Living Room
5.88m x 3.33m - 19'3" x 10'11"
Sun Room
6.99m x 3.38m - 22'11" x 11'1"
Utility Room
2.53m x 1.97m - 8'4" x 6'6"
Kitchen / Dining Room
6.08m x 4.38m - 19'11" x 14'4"
Bedroom (Double) with Ensuite
4.37m x 3.05m - 14'4" x 10'0"
Bedroom 4
3.35m x 2.69m - 10'12" x 8'10"
Bedroom 5
3.33m x 2.68m - 10'11" x 8'10"
Family Bathroom
Bedroom 2
4.89m x 3.32m - 16'1" x 10'11"
Bedroom 3
4.89m x 3.06m - 16'1" x 10'0"
Bathroom
- COUNCIL TAXA payment made to your local authority in order to pay for local services like schools, libraries, and refuse collection. The amount you pay depends on the value of the property.Read more about council Tax in our glossary page.
- Band: F
- PARKINGDetails of how and where vehicles can be parked, and any associated costs.Read more about parking in our glossary page.
- Yes
- GARDENA property has access to an outdoor space, which could be private or shared.
- Yes
- ACCESSIBILITYHow a property has been adapted to meet the needs of vulnerable or disabled individuals.Read more about accessibility in our glossary page.
- Ask agent
The Limes, South Cerney
Add an important place to see how long it'd take to get there from our property listings.
__mins driving to your place
Get an instant, personalised result:
- Show sellers you’re serious
- Secure viewings faster with agents
- No impact on your credit score
Affordability
Notes
Staying secure when looking for property
Ensure you're up to date with our latest advice on how to avoid fraud or scams when looking for property online.
Visit our security centre to find out moreDisclaimer - Property reference 10744457. The information displayed about this property comprises a property advertisement. Rightmove.co.uk makes no warranty as to the accuracy or completeness of the advertisement or any linked or associated information, and Rightmove has no control over the content. This property advertisement does not constitute property particulars. The information is provided and maintained by EweMove, Covering Cirencester, Swindon & Malmesbury. Please contact the selling agent or developer directly to obtain any information which may be available under the terms of The Energy Performance of Buildings (Certificates and Inspections) (England and Wales) Regulations 2007 or the Home Report if in relation to a residential property in Scotland.
*This is the average speed from the provider with the fastest broadband package available at this postcode. The average speed displayed is based on the download speeds of at least 50% of customers at peak time (8pm to 10pm). Fibre/cable services at the postcode are subject to availability and may differ between properties within a postcode. Speeds can be affected by a range of technical and environmental factors. The speed at the property may be lower than that listed above. You can check the estimated speed and confirm availability to a property prior to purchasing on the broadband provider's website. Providers may increase charges. The information is provided and maintained by Decision Technologies Limited. **This is indicative only and based on a 2-person household with multiple devices and simultaneous usage. Broadband performance is affected by multiple factors including number of occupants and devices, simultaneous usage, router range etc. For more information speak to your broadband provider.
Map data ©OpenStreetMap contributors.




