Plot 301, Orchid Park, Plean, Stirling, Stirlingshire, FK7

- PROPERTY TYPE
Detached
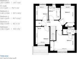
- BEDROOMS
4
- BATHROOMS
3
- SIZE
1,052 sq ft
98 sq m
- TENUREDescribes how you own a property. There are different types of tenure - freehold, leasehold, and commonhold.Read more about tenure in our glossary page.
Freehold
Description
The property comprises a spacious lounge and a modern kitchen and dining room with French doors opening onto the rear garden, along with a separate utility room and a convenient downstairs WC. Upstairs, there is a main bathroom and a generous master bedroom featuring an en-suite and built-in wardrobe. The home also benefits from a single integral garage.
The homes offer a stylish and practical specification throughout. Bathroom areas include a 9KW electric shower where there is no en-suite, a choice of coordinating ceramic wall tiles, chrome taps, contemporary white sanitary ware, fitted vanity units, and a shaver point to the en-suite or main bathroom. En-suites, where applicable, also feature a thermostatic shower.
Externally, properties benefit from paved footpaths and patios, sensor lights to the front and rear where applicable, turf to front gardens where provided, and durable UPVC soffits and fascias. General features include an 'A' rated energy-efficient boiler, photovoltaic solar panels, a 10-year new home warranty, contemporary chrome ironmongery, internal white panelled doors, white gloss skirtings and facings, smooth ceiling finishes, thermostatically controlled radiators, and a multi-point locking system to the front and rear doors where applicable. There is also a TV/FM/SAT and BT point in the lounge to allow for future satellite installation.
The kitchen includes a wide selection of units, a stainless steel oven, coloured glass splashback at the hob, a single or 1½ bowl stainless steel sink with chrome fittings, and an integrated fridge freezer where applicable. The utility room is fitted with a single bowl stainless steel sink with chrome fittings.
Brochures
Brochure 1- COUNCIL TAXA payment made to your local authority in order to pay for local services like schools, libraries, and refuse collection. The amount you pay depends on the value of the property.Read more about council Tax in our glossary page.
- Ask agent
- PARKINGDetails of how and where vehicles can be parked, and any associated costs.Read more about parking in our glossary page.
- Garage,Driveway
- GARDENA property has access to an outdoor space, which could be private or shared.
- Private garden
- ACCESSIBILITYHow a property has been adapted to meet the needs of vulnerable or disabled individuals.Read more about accessibility in our glossary page.
- Level access
Energy performance certificate - ask agent
Plot 301, Orchid Park, Plean, Stirling, Stirlingshire, FK7
Add an important place to see how long it'd take to get there from our property listings.
__mins driving to your place
Affordability
Get an instant, personalised result:
- Show sellers you’re serious
- Secure viewings faster with agents
- No impact on your credit score
Notes
Staying secure when looking for property
Ensure you're up to date with our latest advice on how to avoid fraud or scams when looking for property online.
Visit our security centre to find out moreDisclaimer - Property reference FK78FE. The information displayed about this property comprises a property advertisement. Rightmove.co.uk makes no warranty as to the accuracy or completeness of the advertisement or any linked or associated information, and Rightmove has no control over the content. This property advertisement does not constitute property particulars. The information is provided and maintained by Monarch Legal, Edinburgh. Please contact the selling agent or developer directly to obtain any information which may be available under the terms of The Energy Performance of Buildings (Certificates and Inspections) (England and Wales) Regulations 2007 or the Home Report if in relation to a residential property in Scotland.
*This is the average speed from the provider with the fastest broadband package available at this postcode. The average speed displayed is based on the download speeds of at least 50% of customers at peak time (8pm to 10pm). Fibre/cable services at the postcode are subject to availability and may differ between properties within a postcode. Speeds can be affected by a range of technical and environmental factors. The speed at the property may be lower than that listed above. You can check the estimated speed and confirm availability to a property prior to purchasing on the broadband provider's website. Providers may increase charges. The information is provided and maintained by Decision Technologies Limited. **This is indicative only and based on a 2-person household with multiple devices and simultaneous usage. Broadband performance is affected by multiple factors including number of occupants and devices, simultaneous usage, router range etc. For more information speak to your broadband provider.
Map data ©OpenStreetMap contributors.





