Denham Way, Maple Cross, Rickmansworth, WD3

- PROPERTY TYPE
Detached
- BEDROOMS
3
- BATHROOMS
1
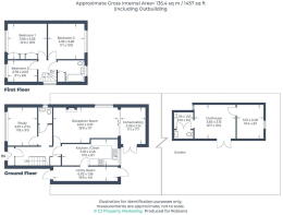
- SIZE
Ask agent
- TENUREDescribes how you own a property. There are different types of tenure - freehold, leasehold, and commonhold.Read more about tenure in our glossary page.
Freehold
Key features
- DETACHED
- THREE BEDROOMS
- SPACIOUS LIVING ROOM
- CONSERVATORY
- STUDY
- KITCHEN
- DOWNSTAIRS W/C
- FAMILY BATHROOM
- OUTHOUSE
- DRIVEWAY PARKING
Description
A fantastic three-bedroom detached family home which presents an exciting opportunity for buyers looking to modernise and make a home their own. Set on a generously sized plot, the property offers ample space both inside and out, with the potential to extend STPP.
The ground floor comprises a welcoming entrance hallway leading to a separate study, a spacious main reception room with sliding doors opening into a bright conservatory, a fitted kitchen, practical utility room, and a downstairs WC.
To the first floor are three bedrooms, two of which are well-proportioned double bedrooms and a family bathroom.
To the rear is a secluded woodland wildlife garden, a peaceful and private area to relax in. The garden also features a substantial outhouse complete with a w/c and two additional versatile reception rooms, perfect for use as a home office, gym, studio, or guest accommodation.
This home offers plenty of potential and is perfectly positioned for those seeking space, privacy, and the chance to create their dream family home.
The property is situated in Maple Cross, close to the village of Harefield which is surrounded by some beautiful countryside along the Grand Union Canal. The local area also has good sporting facilities which include golf, cricket and football clubs. Rickmansworth caters for specialist and daily shopping requirements to include the food halls of Marks & Spencer, Waitrose and Tesco. More extensive shopping facilities are available in the larger towns of Watford and Uxbridge. At Denham is the Chiltern Line to Marylebone whilst at Rickmansworth there is the Chiltern Line and Metropolitan railways to London Marylebone and Baker Street. The M25 motorway is available at junction 17 connecting you to the national motorway network. The area is well served for good quality private and state schools for all ages.
Tenure: Freehold
Local Authority: Three Rivers
Council Tax Band: E
Energy Efficiency Rating: D
Brochures
Brochure 1- COUNCIL TAXA payment made to your local authority in order to pay for local services like schools, libraries, and refuse collection. The amount you pay depends on the value of the property.Read more about council Tax in our glossary page.
- Band: E
- PARKINGDetails of how and where vehicles can be parked, and any associated costs.Read more about parking in our glossary page.
- Yes
- GARDENA property has access to an outdoor space, which could be private or shared.
- Yes
- ACCESSIBILITYHow a property has been adapted to meet the needs of vulnerable or disabled individuals.Read more about accessibility in our glossary page.
- Ask agent
Denham Way, Maple Cross, Rickmansworth, WD3
Add an important place to see how long it'd take to get there from our property listings.
__mins driving to your place
Get an instant, personalised result:
- Show sellers you’re serious
- Secure viewings faster with agents
- No impact on your credit score
Your mortgage
Notes
Staying secure when looking for property
Ensure you're up to date with our latest advice on how to avoid fraud or scams when looking for property online.
Visit our security centre to find out moreDisclaimer - Property reference S1621234. The information displayed about this property comprises a property advertisement. Rightmove.co.uk makes no warranty as to the accuracy or completeness of the advertisement or any linked or associated information, and Rightmove has no control over the content. This property advertisement does not constitute property particulars. The information is provided and maintained by Robsons, Rickmansworth. Please contact the selling agent or developer directly to obtain any information which may be available under the terms of The Energy Performance of Buildings (Certificates and Inspections) (England and Wales) Regulations 2007 or the Home Report if in relation to a residential property in Scotland.
*This is the average speed from the provider with the fastest broadband package available at this postcode. The average speed displayed is based on the download speeds of at least 50% of customers at peak time (8pm to 10pm). Fibre/cable services at the postcode are subject to availability and may differ between properties within a postcode. Speeds can be affected by a range of technical and environmental factors. The speed at the property may be lower than that listed above. You can check the estimated speed and confirm availability to a property prior to purchasing on the broadband provider's website. Providers may increase charges. The information is provided and maintained by Decision Technologies Limited. **This is indicative only and based on a 2-person household with multiple devices and simultaneous usage. Broadband performance is affected by multiple factors including number of occupants and devices, simultaneous usage, router range etc. For more information speak to your broadband provider.
Map data ©OpenStreetMap contributors.




