Line Way, Earls Barton, Northampton

- PROPERTY TYPE
Detached
- BEDROOMS
5
- BATHROOMS
3
- SIZE
Ask agent
- TENUREDescribes how you own a property. There are different types of tenure - freehold, leasehold, and commonhold.Read more about tenure in our glossary page.
Freehold
Key features
- Five Bed Detached Home
- Village Location
- Large Kitchen/Diner & Family Room
- Study/Office Room
- En-suite To Principle Bedroom
- Double Garage & Off Road Parking
Description
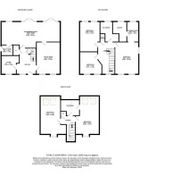
Upon entering, you are greeted by a welcoming entrance hall that leads to a cloakroom w/c and provides access to all main rooms. The ground floor comprises two reception rooms, including a separate lounge and a versatile home office, perfect for remote working or study. The heart of the home is undoubtedly the expansive kitchen/dining/family room, designed for both entertaining and everyday living. This delightful space is enhanced by French doors that open onto the beautifully landscaped rear garden, seamlessly blending indoor and outdoor living.
The fully fitted kitchen is equipped with integral appliances and offers plenty of cupboard space, while a separate utility room adds convenience with direct access to the driveway and double garage. The first floor hosts three double bedrooms, including a principal suite with a walk-in dressing area and an ensuite bathroom. A further double bedroom enjoys picturesque views over the countryside and has access to a well-appointed family bathroom featuring a four-piece suite.
The second floor reveals two additional double bedrooms, complemented by a shower room, providing privacy and comfort for family members or guests. Outside, the property is surrounded by landscaped gardens, with off-road parking for several vehicles leading to the double garage.
This exceptional home is not only a testament to modern design but also offers a lifestyle of convenience and elegance. Viewing is highly recommended to fully appreciate all that this property has to offer.
Brochures
Line Way, Earls Barton, Northampton- COUNCIL TAXA payment made to your local authority in order to pay for local services like schools, libraries, and refuse collection. The amount you pay depends on the value of the property.Read more about council Tax in our glossary page.
- Ask agent
- PARKINGDetails of how and where vehicles can be parked, and any associated costs.Read more about parking in our glossary page.
- Yes
- GARDENA property has access to an outdoor space, which could be private or shared.
- Yes
- ACCESSIBILITYHow a property has been adapted to meet the needs of vulnerable or disabled individuals.Read more about accessibility in our glossary page.
- Ask agent
Energy performance certificate - ask agent
Line Way, Earls Barton, Northampton
Add an important place to see how long it'd take to get there from our property listings.
__mins driving to your place
Get an instant, personalised result:
- Show sellers you’re serious
- Secure viewings faster with agents
- No impact on your credit score
Your mortgage
Notes
Staying secure when looking for property
Ensure you're up to date with our latest advice on how to avoid fraud or scams when looking for property online.
Visit our security centre to find out moreDisclaimer - Property reference 34477834. The information displayed about this property comprises a property advertisement. Rightmove.co.uk makes no warranty as to the accuracy or completeness of the advertisement or any linked or associated information, and Rightmove has no control over the content. This property advertisement does not constitute property particulars. The information is provided and maintained by Oscar James, Wellingborough. Please contact the selling agent or developer directly to obtain any information which may be available under the terms of The Energy Performance of Buildings (Certificates and Inspections) (England and Wales) Regulations 2007 or the Home Report if in relation to a residential property in Scotland.
*This is the average speed from the provider with the fastest broadband package available at this postcode. The average speed displayed is based on the download speeds of at least 50% of customers at peak time (8pm to 10pm). Fibre/cable services at the postcode are subject to availability and may differ between properties within a postcode. Speeds can be affected by a range of technical and environmental factors. The speed at the property may be lower than that listed above. You can check the estimated speed and confirm availability to a property prior to purchasing on the broadband provider's website. Providers may increase charges. The information is provided and maintained by Decision Technologies Limited. **This is indicative only and based on a 2-person household with multiple devices and simultaneous usage. Broadband performance is affected by multiple factors including number of occupants and devices, simultaneous usage, router range etc. For more information speak to your broadband provider.
Map data ©OpenStreetMap contributors.




